Bildegalleri

Velkommen Madlastokken 22
Attraktiv leilighet i Madlakrossen. 2 soverom, heis og parkering i lukket anlegg.
Prisantydning3 650 000 kr
Nøkkelinfo
- Boligtype
- Leilighet
- Eieform
- Eier (Selveier)
- Soverom
- 2
- Internt bruksareal
- 76 m² (BRA-i)
- Bruksareal
- 81 m²
- Eksternt bruksareal
- 5 m² (BRA-e)
- Balkong/Terrasse
- 10 m² (TBA)
- Etasje
- 3
- Byggeår
- 1983
- Energimerking
- Rom
- 3
- Tomteareal
- 8 823 m² (eiet)
Fasiliteter
Balkong/Terrasse
Barnevennlig
Garasje/P-plass
Heis
Rolig
Turterreng
Visning
mandag, 23. mars
16:00 – 17:00
Ønsker du å delta på visningen ber vi deg melde deg på slik at vi vet at du kommer. Da kan vi bistå alle best mulig og gi deg tiden du trenger på visningen. Kontakt gjerne megler før visning hvis du har spørsmål. Visningen avholdes bare dersom det er påmeldte. Hvis det ikke er oppsatt visningstidspunkt eller tidspunkt ikke passer, kontakt megler.
VisningspåmeldingOm boligen
Madlastokken 22 er en kjekk selveierleilighet i attraktivt sameie, sentralt plassert på Madla med gangavstand til alt av servicetilbud.
I umiddelbar nærhet finnes et rikt servicetilbud med butikker i Amfi Madla, lege og tannlegekontor. Tursti rett utenfor som går til bl.a. Stokkavannet og Møllebukta
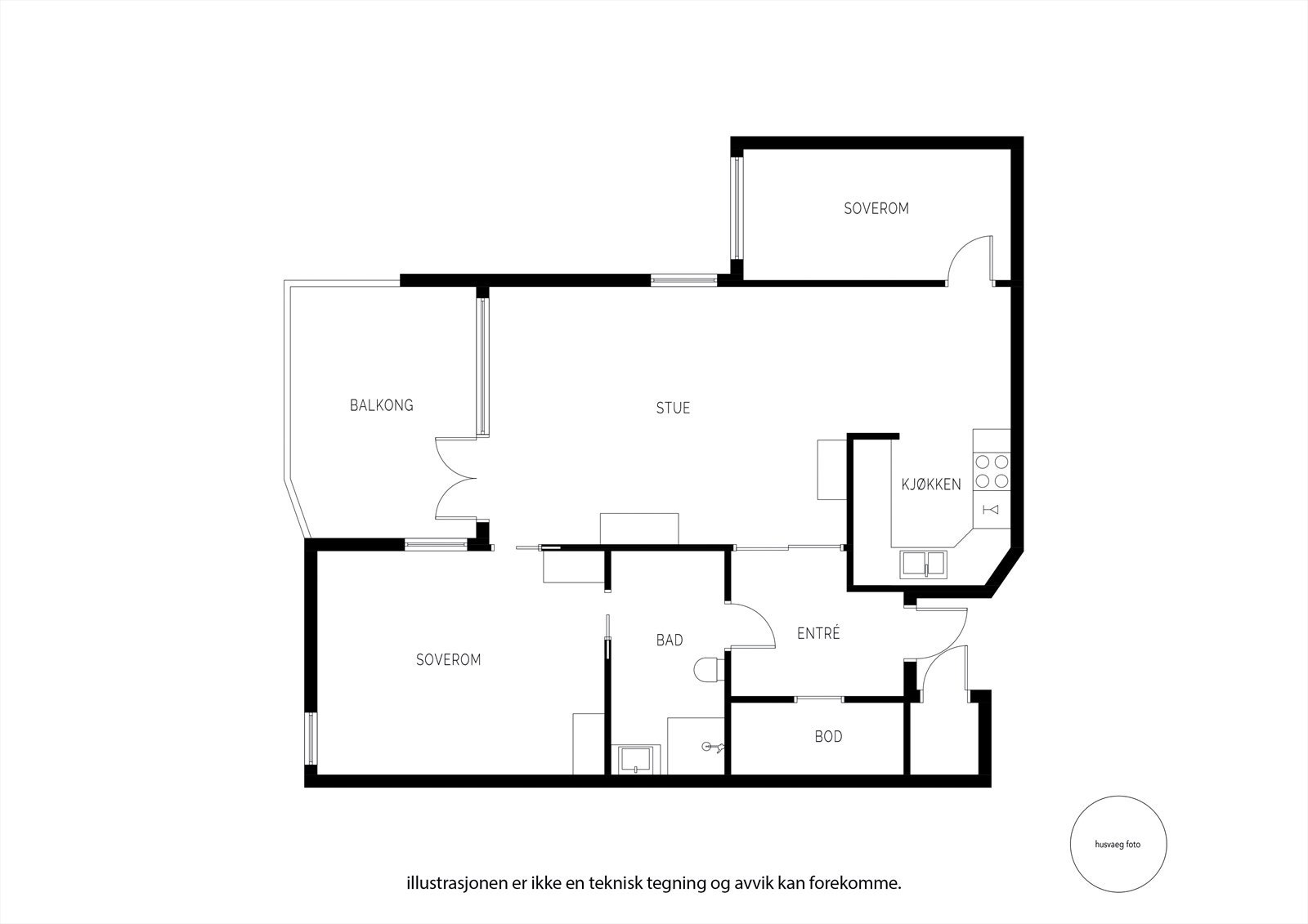
Leiligheten ligger i 3. etasje og har en praktisk planløsning samt en vestvendt balkong.
- Innbydende entré med innvendig bod
- Romslig stue med god plass til både sofagruppe og stort spisebord
- Utgang til vestvendt balkong med gode solforhold
- Kjøkken med god skap- og benkeplass
- Kombinert bad og vaskerom
- 2 gode soverom
- Bod i fellesareal
- En fast parkeringsplass i lukket garasjeanlegg. Adkomst i samme etasje.
- Utleiehybler
- Selskapslokale
Noe oppussing bør påregnes
I umiddelbar nærhet finnes et rikt servicetilbud med butikker i Amfi Madla, lege og tannlegekontor. Tursti rett utenfor som går til bl.a. Stokkavannet og Møllebukta
Leiligheten ligger i 3. etasje og har en praktisk planløsning samt en vestvendt balkong.
- Innbydende entré med innvendig bod
- Romslig stue med god plass til både sofagruppe og stort spisebord
- Utgang til vestvendt balkong med gode solforhold
- Kjøkken med god skap- og benkeplass
- Kombinert bad og vaskerom
- 2 gode soverom
- Bod i fellesareal
- En fast parkeringsplass i lukket garasjeanlegg. Adkomst i samme etasje.
- Utleiehybler
- Selskapslokale
Noe oppussing bør påregnes
NB: Knappen for å vise hele beskrivelsen har kun en visuell effekt.
NB: Knappen for å vise hele beskrivelsen har kun en visuell effekt.
Salgsoppgaven beskriver vesentlig og lovpålagt informasjon om eiendommen
Se komplett salgsoppgaveNyttige lenker
Nærområdet
EiendomsMegler 1 Madla
En del av Sparebank 1 Sør-Norge
Annonseinformasjon
| FINN-kode | 455200742 |
|---|---|
| Sist endret | 13. mars 2026 08:13 |
| Referanse | 2205260087 |
Annonsene kan være mangelfulle i forhold til lovpålagt opplysningsplikt. Før bindende avtale inngås oppfordres interessenter til å innhente komplett informasjon fra meglerforetaket, selger eller utleier.





























