Bildegalleri

EiendomsMegler1 v/Karen Heggset Monge har gleden av å presentere Kongsveien 14
Arkitekttegnet enebolig m/anneks, snekkerbod og garasje m/flott beliggenhet og utsikt
Prisantydning3 590 000 kr
Nøkkelinfo
- Boligtype
- Enebolig
- Eieform
- Eier (Selveier)
- Soverom
- 3
- Internt bruksareal
- 190 m² (BRA-i)
- Bruksareal
- 282 m²
- Eksternt bruksareal
- 92 m² (BRA-e)
- Balkong/Terrasse
- 23 m² (TBA)
- Byggeår
- 1972
- Energimerking
- D - Gul
- Rom
- 4
- Tomteareal
- 1 420 m² (eiet)
Fasiliteter
Barnevennlig
Balkong/Terrasse
Garasje/P-plass
Peis/Ildsted
Turterreng
Utsikt
Rolig
Visning
mandag, 23. mars
17:00 – 17:45
Våre visninger har påmelding. Dette gjør vi for å kunne yte bedre service for våre kunder. Verdifullt for boligkjøper og for oss. Vi anbefaler at salgsoppgaven lastes ned digitalt før visning, og ring oss gjerne på forhånd for spørsmål om boligen. Passer ikke angitt tidspunkt, ta kontakt så finner vi en løsning. Skulle det mot formodning ikke være påmeldte til angitt visningstidspunkt vil ikke visning bli gjennomført.
Om boligen
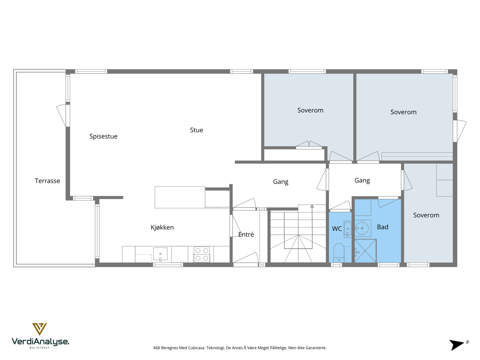
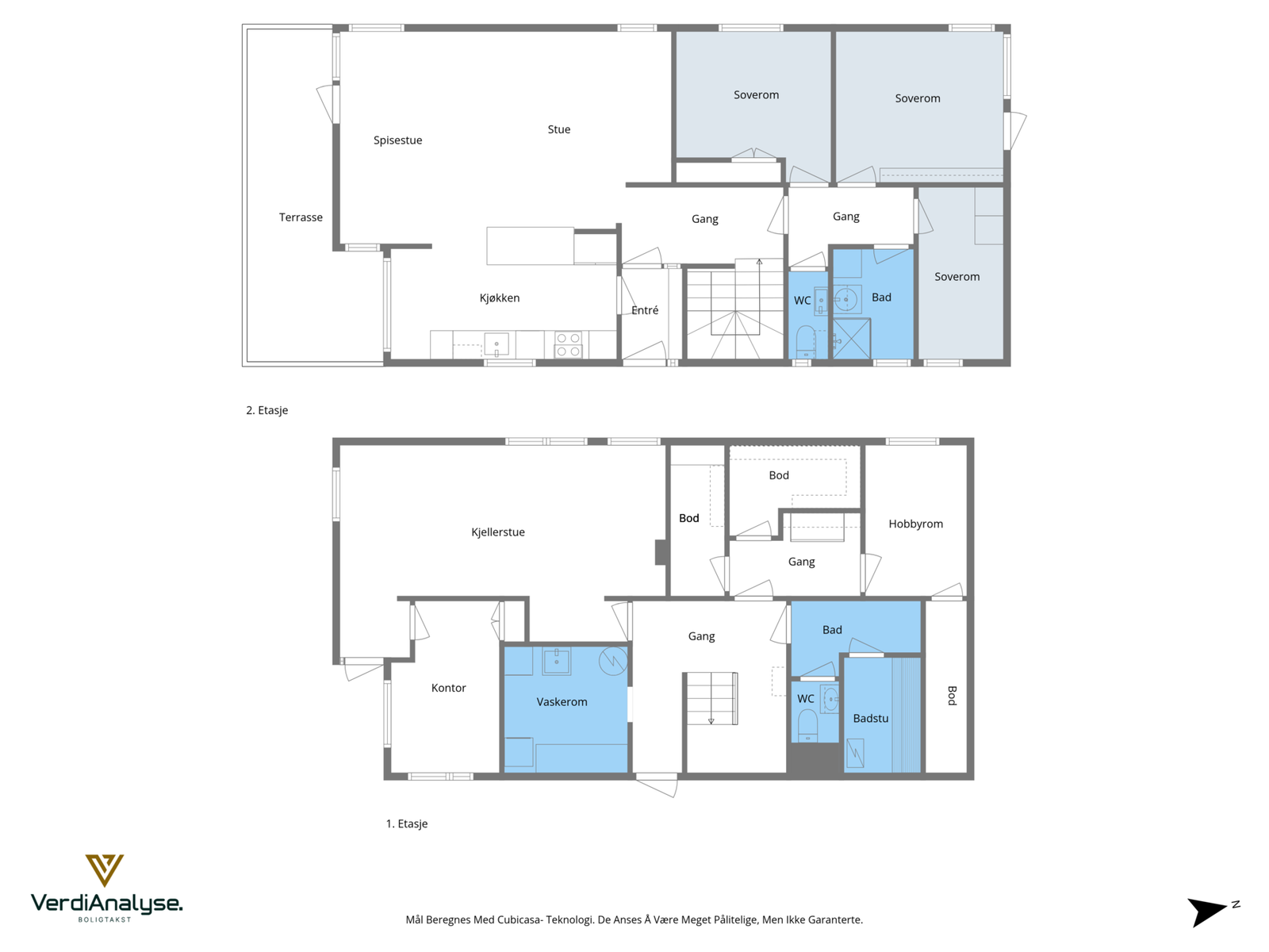
EiendomsMegler1 v/Karen Heggset Monge har gleden av å presentere Kongsveien 14. Enebolig over 2 plan som inneholder bl.a entre, 3 soverom, stue med åpen løsning til kjøkken, 2 bad, 2 toalettrom, badstue, vaskerom, kontor, hobbyrom, kjellerstue og diverse boder.
Det er også garasje, utebod, snekkerbod og anneks.
Område rundt boligen er opparbeidet med betongheller, støpte overflater, plen og beplantninger.
Eiendommen ligger fint og landlig til med flott utsikt mot fjorden. Kort vei til badestrand, butikk, barneskole og barnehage samt fine turområder i umiddelbar nærhet!
Velkommen til visning!
Det er også garasje, utebod, snekkerbod og anneks.
Område rundt boligen er opparbeidet med betongheller, støpte overflater, plen og beplantninger.
Eiendommen ligger fint og landlig til med flott utsikt mot fjorden. Kort vei til badestrand, butikk, barneskole og barnehage samt fine turområder i umiddelbar nærhet!
Velkommen til visning!
NB: Knappen for å vise hele beskrivelsen har kun en visuell effekt.
NB: Knappen for å vise hele beskrivelsen har kun en visuell effekt.
Salgsoppgaven beskriver vesentlig og lovpålagt informasjon om eiendommen
Se komplett salgsoppgaveNyttige lenker
Nærområdet
EiendomsMegler 1 Kristiansund
Vi loser deg trygt gjennom hele boligsalget
Annonseinformasjon
| FINN-kode | 455197255 |
|---|---|
| Sist endret | 13. mars 2026 07:51 |
| Referanse | 17260079 |
Annonsene kan være mangelfulle i forhold til lovpålagt opplysningsplikt. Før bindende avtale inngås oppfordres interessenter til å innhente komplett informasjon fra meglerforetaket, selger eller utleier.





























