Bildegalleri

Velkommen til et fint førstegangskjøp i Christen Smiths gate 12A i sentrale Drammen, med gangavstand til "alt". Utleie er tillatt. (Digital styling)
Strømsø - Marienlyst Park
Perfekt førstegangskjøp - Sentral og gjennomgående 2-roms med gangavstand til "alt". Gasspeis. Garasjeplass, bod og heis
Prisantydning3 090 000 kr
Nøkkelinfo
- Boligtype
- Leilighet
- Eieform
- Eier (Selveier)
- Soverom
- 1
- Internt bruksareal
- 33 m² (BRA-i)
- Bruksareal
- 38 m²
- Eksternt bruksareal
- 5 m² (BRA-e)
- Balkong/Terrasse
- 7 m² (TBA)
- Etasje
- 1
- Byggeår
- 2007
- Energimerking
- Rom
- 2
- Tomteareal
- 5 365 m² (eiet)
Fasiliteter
Alpinanlegg
Balkong/Terrasse
Bredbåndstilknytning
Garasje/P-plass
Heis
Kabel-TV
Offentlig vann/kloakk
Parkett
Peis/Ildsted
Sentralt
Bademulighet
Turterreng
Lademulighet
Visning
tirsdag, 24. mars
16:30 – 17:15
For at vår megler og selger skal kunne gi deg den beste oppfølgingen og kjøpsopplevelsen er det obligatorisk påmelding til alle våre visninger. Dersom ditt reserverte tidspunkt likevel ikke kan benyttes trenger vi beskjed så tidlig som mulig sånn at vi kan finne en alternativ løsning. Vi har alltid tid til deg. Visninger uten påmeldte deltagere avlyses.
VisningspåmeldingOm boligen
Christen Smiths gate 12A er et flott førstegangskjøp som ligger meget sentralt i Drammen, og likevel tilbaketrukket fra bysentrum. Leiligheten ligger like ved Museumsparken og Strømsø Torg. Her har du alt av moderne servicefasiliteter rett utenfor døren, inkludert toget som tar deg inn til Oslo på ca. 30 min. Like ved finner du også parker, turområder, Drammensbadet og Marienlyst stadion for å nevne noe.
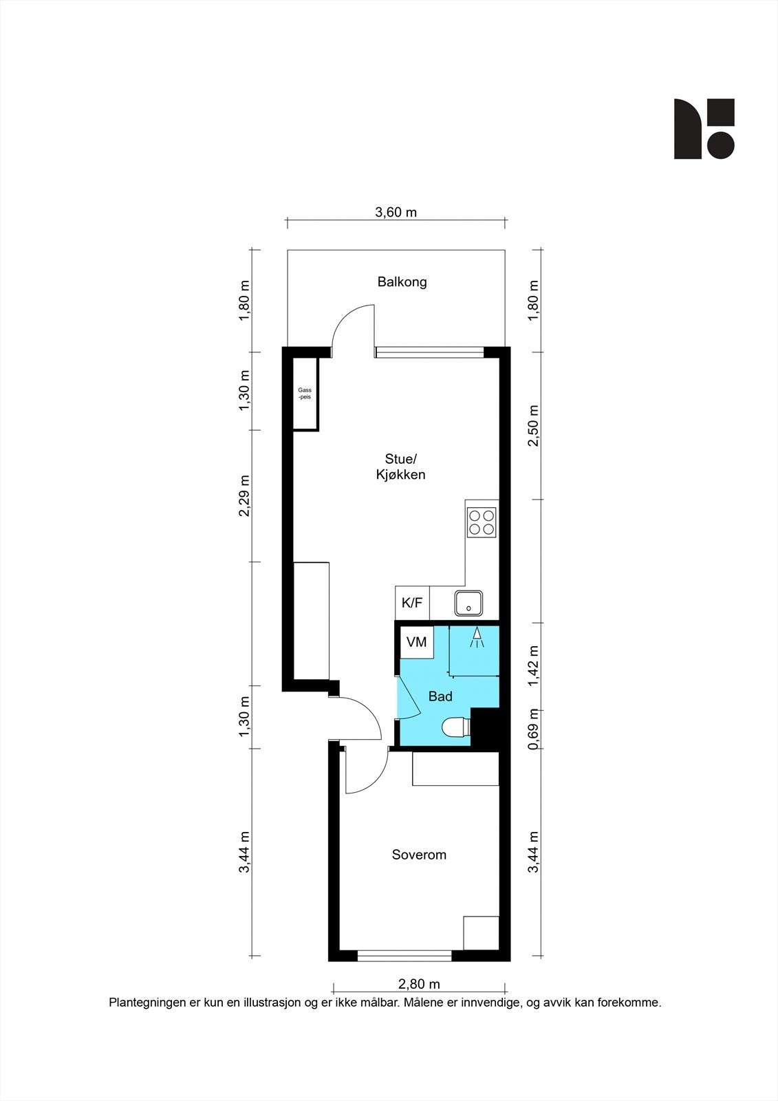
Denne leiligheten ligger i 1. etasje og har trinnfri adkomst, 6,5 kvm balkong, garasjeplass i kjeller, heis og bruksrett til bod. Standard fra 2007 og arealeffektiv planløsning bestående av entré, stue/kjøkken i åpen løsning med gasspeis, flislagt bad med opplegg for vaskemaskin, samt soverom med garderobe vendt inn mot rolig fellesområde.
- A konto fjernvarme inkl.
- Utleie tillatt.
Denne leiligheten ligger i 1. etasje og har trinnfri adkomst, 6,5 kvm balkong, garasjeplass i kjeller, heis og bruksrett til bod. Standard fra 2007 og arealeffektiv planløsning bestående av entré, stue/kjøkken i åpen løsning med gasspeis, flislagt bad med opplegg for vaskemaskin, samt soverom med garderobe vendt inn mot rolig fellesområde.
- A konto fjernvarme inkl.
- Utleie tillatt.
NB: Knappen for å vise hele beskrivelsen har kun en visuell effekt.
NB: Knappen for å vise hele beskrivelsen har kun en visuell effekt.
Salgsoppgaven beskriver vesentlig og lovpålagt informasjon om eiendommen
Se komplett salgsoppgaveNyttige lenker
Nærområdet
Proaktiv Eiendomsmegling Drammen, Lier & Holmestrand
Alltid tid til deg
Annonseinformasjon
| FINN-kode | 455179979 |
|---|---|
| Sist endret | 17. mars 2026 04:00 |
| Referanse | 1600260081 |
Annonsene kan være mangelfulle i forhold til lovpålagt opplysningsplikt. Før bindende avtale inngås oppfordres interessenter til å innhente komplett informasjon fra meglerforetaket, selger eller utleier.

























