Bildegalleri

Hjertelig velkommen til Jorine Edlands veg 69!
Orstad
Flott selveierleilighet med høy standard i populært område | Balkong og heis | Fast parkering med el-billader
Prisantydning2 690 000 kr
Nøkkelinfo
- Boligtype
- Leilighet
- Eieform
- Eier (Selveier)
- Soverom
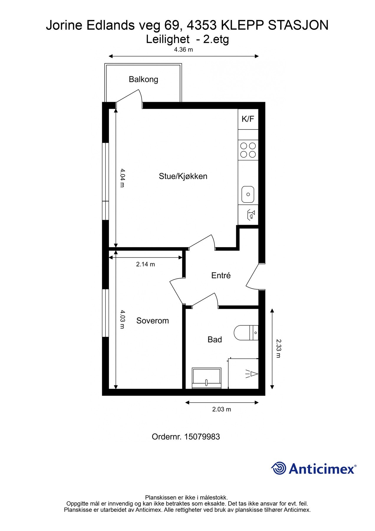
- 1
- Internt bruksareal
- 36 m² (BRA-i)
- Bruksareal
- 39 m²
- Eksternt bruksareal
- 3 m² (BRA-e)
- Balkong/Terrasse
- 4 m² (TBA)
- Etasje
- 2
- Byggeår
- 2024
- Energimerking
- C - Lysegrønn
- Rom
- 2
- Tomteareal
- 1 482 m² (eiet)
Fasiliteter
Barnevennlig
Balkong/Terrasse
Garasje/P-plass
Kabel-TV
Heis
Offentlig vann/kloakk
Ingen gjenboere
Parkett
Turterreng
Utsikt
Vaktmester-/vektertjeneste
Sentralt
Bredbåndstilknytning
Moderne
Rolig
Lademulighet
Balansert ventilasjon
Visning
søndag, 22. mars
14:00 – 15:00
Meld deg på visning eller kontakt eiendomsmegler for privatvisning.
Visning blir ikke gjennomført uten påmeldte.
Om boligen
Velkommen til Jorine Edlands veg 69!
En flott, innbydende og nyoppført selveierleilighet med gjennomgående høy standard, beliggende i et attraktivt område på Orstad.
Leiligheten har trestavs parkett på alle rom foruten bad, og et moderne kjøkken med integrerte hvitevarer.
Jorine Edlands veg har en flott beliggenhet i et nyetablert boligområde. Orstad passer perfekt for deg som ønsker å bo landlig, og samtidig være nær urbane strøk som Bryne, Sandnes og Stavanger.
Leiligheten ligger i andre etasje i et med heis, og byr på en lys og åpen stue- og kjøkkenløsning med gode vindusflater og utgang til balkong.
Kort oppsummert om boligen:
-Lys 2-roms i andre etasje med balkong
-Hvitlasert parkett og integrerte hvitevarer
-Vannbåren oppvarming og balansert ventilasjon
-Fast utvendig parkering med mulighet for elbillader
-Sportsbod i garasjeanlegg
-Gåavstand til togstasjon og kollektivtilbud
-Attraktivt utleieobjekt i populært område
Alt i alt en leilighet du ikke vil gå glipp av!
En flott, innbydende og nyoppført selveierleilighet med gjennomgående høy standard, beliggende i et attraktivt område på Orstad.
Leiligheten har trestavs parkett på alle rom foruten bad, og et moderne kjøkken med integrerte hvitevarer.
Jorine Edlands veg har en flott beliggenhet i et nyetablert boligområde. Orstad passer perfekt for deg som ønsker å bo landlig, og samtidig være nær urbane strøk som Bryne, Sandnes og Stavanger.
Leiligheten ligger i andre etasje i et med heis, og byr på en lys og åpen stue- og kjøkkenløsning med gode vindusflater og utgang til balkong.
Kort oppsummert om boligen:
-Lys 2-roms i andre etasje med balkong
-Hvitlasert parkett og integrerte hvitevarer
-Vannbåren oppvarming og balansert ventilasjon
-Fast utvendig parkering med mulighet for elbillader
-Sportsbod i garasjeanlegg
-Gåavstand til togstasjon og kollektivtilbud
-Attraktivt utleieobjekt i populært område
Alt i alt en leilighet du ikke vil gå glipp av!
NB: Knappen for å vise hele beskrivelsen har kun en visuell effekt.
NB: Knappen for å vise hele beskrivelsen har kun en visuell effekt.
Salgsoppgaven beskriver vesentlig og lovpålagt informasjon om eiendommen
Se komplett salgsoppgaveNyttige lenker
Nærområdet
Verdi &Partners Sandnes
Verdien av lokalkunnskap
Annonseinformasjon
| FINN-kode | 455176117 |
|---|---|
| Sist endret | 13. mars 2026 17:37 |
| Referanse | 203260041 |
Annonsene kan være mangelfulle i forhold til lovpålagt opplysningsplikt. Før bindende avtale inngås oppfordres interessenter til å innhente komplett informasjon fra meglerforetaket, selger eller utleier.


















