Bildegalleri

Velkommen til panoramautsikt på Melløs!
Leilighet med panoramautsikt! To p-plasser og to store balkonger hvor én er innglasset. VIP-følelse året rundt.
Prisantydning10 990 000 kr
Nøkkelinfo
- Boligtype
- Leilighet
- Eieform
- Eier (Selveier)
- Soverom
- 3
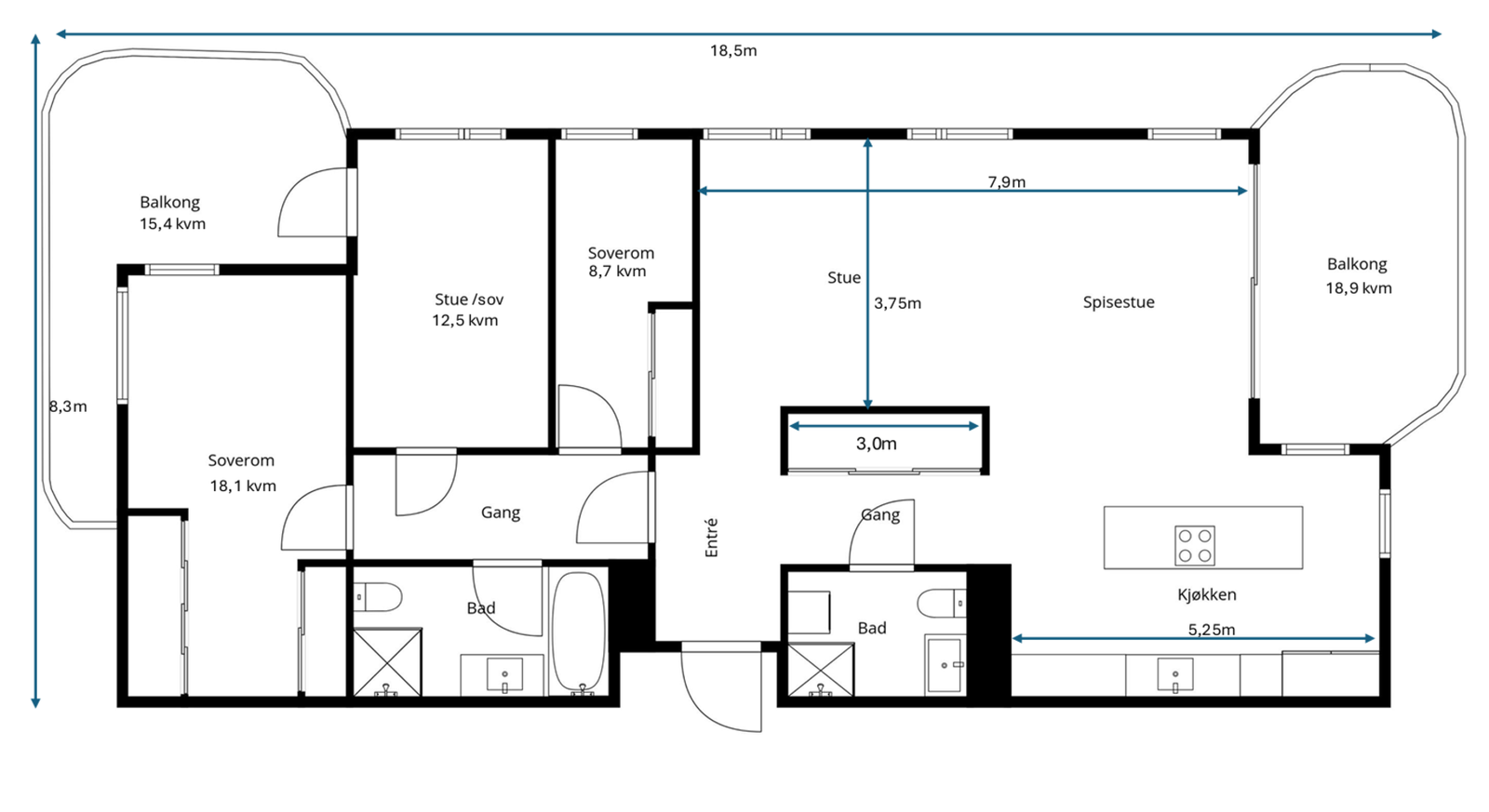
- Internt bruksareal
- 128 m² (BRA-i)
- Bruksareal
- 164 m²
- Eksternt bruksareal
- 21 m² (BRA-e)
- Innglasset balkong
- 15 m² (BRA-b)
- Balkong/Terrasse
- 16 m² (TBA)
- Etasje
- 7
- Byggeår
- 2023
- Energimerking
- A - Mørkegrønn
- Rom
- 4
- Tomteareal
- 14 302 m² (eiet)
Fasiliteter
Balkong/Terrasse
Garasje/P-plass
Heis
Utsikt
Sentralt
Moderne
Lademulighet
Om boligen
Drømmer du om å bo høyt , med utsikt som tar pusten fra deg?
I 7. etasje på Tribunen på Melløs får du en sjelden kombinasjon av spektakulær beliggenhet, moderne komfort og ekte stadionstemning.
Her bor du med fantastisk utsikt over Moss og utover Oslofjorden, med solnedganger som maler himmelen i gul og rød. Og som en unik bonus: Du har beste plassering for å følge Moss sine fotballkamper - direkte fra egen leilighet.
Leiligheten på hele 126 kvm har tre soverom av god størrelse, to stilrene bad, oppgradert kjøkken. Boligen er betydelig oppgradert sammenlignet med standard leveranse, og fremstår som moderne, helhetlig og gjennomført. Boligen har to boder hvor den ene er oppvarmet og på hele 16 kvm.
Tribunen på Melløs er for deg som ønsker noe ekstra.
Dette er ikke bare en leilighet. Det er den beste plassen i Moss. Velkommen til visning!
I 7. etasje på Tribunen på Melløs får du en sjelden kombinasjon av spektakulær beliggenhet, moderne komfort og ekte stadionstemning.
Her bor du med fantastisk utsikt over Moss og utover Oslofjorden, med solnedganger som maler himmelen i gul og rød. Og som en unik bonus: Du har beste plassering for å følge Moss sine fotballkamper - direkte fra egen leilighet.
Leiligheten på hele 126 kvm har tre soverom av god størrelse, to stilrene bad, oppgradert kjøkken. Boligen er betydelig oppgradert sammenlignet med standard leveranse, og fremstår som moderne, helhetlig og gjennomført. Boligen har to boder hvor den ene er oppvarmet og på hele 16 kvm.
Tribunen på Melløs er for deg som ønsker noe ekstra.
Dette er ikke bare en leilighet. Det er den beste plassen i Moss. Velkommen til visning!
NB: Knappen for å vise hele beskrivelsen har kun en visuell effekt.
NB: Knappen for å vise hele beskrivelsen har kun en visuell effekt.
Salgsoppgaven beskriver vesentlig og lovpålagt informasjon om eiendommen
Se komplett salgsoppgaveNyttige lenker
Nærområdet

PrivatMegleren Fredrikstad
Kun det beste på dine vegne
Annonseinformasjon
| FINN-kode | 455164413 |
|---|---|
| Sist endret | 12. mars 2026 20:32 |
| Referanse | 108260031 |
Annonsene kan være mangelfulle i forhold til lovpålagt opplysningsplikt. Før bindende avtale inngås oppfordres interessenter til å innhente komplett informasjon fra meglerforetaket, selger eller utleier.

































