Bildegalleri

Velkommen til Badstuveien 34B!
DIKEMARK / ASKER
Sjarmerende og familievennlig 4-roms rekkehus i naturskjønne omgivelser | Inkludert varmtvann og varme | Usjenert terras
Prisantydning3 380 000 kr
Nøkkelinfo
- Boligtype
- Rekkehus
- Eieform
- Andel
- Soverom
- 3
- Internt bruksareal
- 87 m² (BRA-i)
- Bruksareal
- 91 m²
- Eksternt bruksareal
- 4 m² (BRA-e)
- Balkong/Terrasse
- 15 m² (TBA)
- Etasje
- 3
- Byggeår
- 1952
- Energimerking
- G - Rød
- Tomteareal
- 1 809 m² (eiet)
Fasiliteter
Balkong/Terrasse
Barnevennlig
Garasje/P-plass
Hage
Kjæledyr tillatt
Parkett
Rolig
Utsikt
Bademulighet
Turterreng
Lademulighet
Om boligen
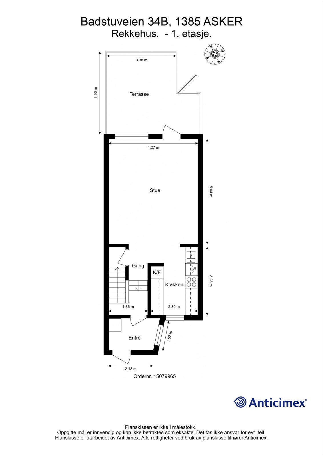
Velkommen til Badstuveien 34B! Et innholdsrikt og sjarmerende rekkehus med en flott beliggenhet i naturskjønne omgivelser.
Her bor du i landlige og trygge omgivelser, med kun 200 meter til bade- og fiskeplasser. Dette er en ideell bolig for familier og etablerere som verdsetter nærhet til naturen, samtidig som det er kort vei til buss og servicetilbud. Første etasje har en sosial åpen løsning mellom stue og kjøkken, med direkte utgang til en stor terrasse.
Høydepunkter:
Her bor du i landlige og trygge omgivelser, med kun 200 meter til bade- og fiskeplasser. Dette er en ideell bolig for familier og etablerere som verdsetter nærhet til naturen, samtidig som det er kort vei til buss og servicetilbud. Første etasje har en sosial åpen løsning mellom stue og kjøkken, med direkte utgang til en stor terrasse.
Høydepunkter:
- Tre soverom samlet i 2. etasje
- Stor terrasse på 15 m²
- Åpen stue- og kjøkkenløsning
- Parkering på felles biloppstillingsplass
- Kort gangavstand til buss (ca. 3 min)
- Barnevennlig
- Inkludert varme og varmtvann i felleskostnader
Velkommen til visning!
NB: Knappen for å vise hele beskrivelsen har kun en visuell effekt.
NB: Knappen for å vise hele beskrivelsen har kun en visuell effekt.
Salgsoppgaven beskriver vesentlig og lovpålagt informasjon om eiendommen
Se komplett salgsoppgaveNyttige lenker
Nærområdet
Krogsveen Bærum
Verdien av en god megler.
Annonseinformasjon
| FINN-kode | 455119642 |
|---|---|
| Sist endret | 13. mars 2026 07:38 |
| Referanse | KR10.25267 |
Annonsene kan være mangelfulle i forhold til lovpålagt opplysningsplikt. Før bindende avtale inngås oppfordres interessenter til å innhente komplett informasjon fra meglerforetaket, selger eller utleier.









































