Bildegalleri

Camilla Bjerke Olsen i Nordvik ønsker velkommen til Eikskollen 13E! Foto: Natalie Harila
Eiksmarka
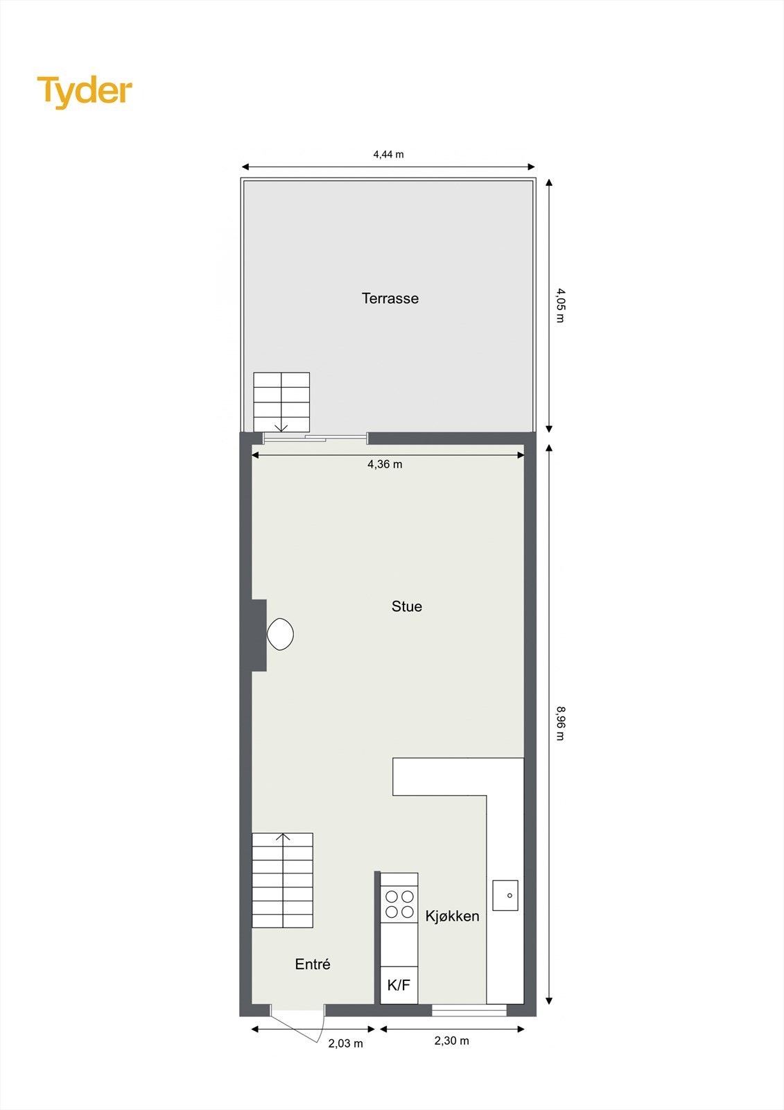
Oppusset 3-roms over to plan. Egen inngang. 18 kvm vestvendt terrasse mot grøntområde. P-plass m/lader. Rolig blindvei.
Prisantydning7 100 000 kr
Nøkkelinfo
- Boligtype
- Leilighet
- Eieform
- Eier (Selveier)
- Soverom
- 2
- Internt bruksareal
- 76 m² (BRA-i)
- Bruksareal
- 80 m²
- Eksternt bruksareal
- 4 m² (BRA-e)
- Balkong/Terrasse
- 18 m² (TBA)
- Etasje
- 1
- Byggeår
- 1953
- Energimerking
- Rom
- 4
- Tomteareal
- 4 067 m² (eiet)
Fasiliteter
Balkong/Terrasse
Barnevennlig
Bredbåndstilknytning
Garasje/P-plass
Kj æledyr tillatt
Ingen gjenboere
Kabel-TV
Offentlig vann/kloakk
Parkett
Peis/Ildsted
Rolig
Sentralt
Turterreng
Lademulighet
Visning
søndag, 22. mars
14:00 – 14:45
Meld deg på visning ved å trykke på lenken visningspåmelding.
VisningspåmeldingOm boligen
Velkommen til Eikskollen13 E!
En lys og gjennomgående 3-roms leilighet over to plan med romslig vestvendt terrasse og utsyn mot grønne omgivelser. Boligen ligger rolig til i enden av en blindvei uten innsyn og oppleves både privat og luftig.
Leiligheten er omfattende oppusset i 2025/2026 og fremstår moderne og gjennomført. Det er blant annet installert nytt kjøkken, lagt nytt gulv og oppgradert elektrisk anlegg med gulvvarme i første etasje samt Plejd-styring av belysningen.
På attraktive Eikskollen bor du i rolige omgivelser med kort vei til både natur og byliv. T-banen fra Østerås tar deg til Majorstuen på ca. 15 minutter, og både Østerås og Eiksmarka senter ligger i gangavstand. I nærområdet finner du flotte turmuligheter ved Østernvann og langs Lysakerelven samt barnehager og skoler.
En lys og gjennomgående 3-roms leilighet over to plan med romslig vestvendt terrasse og utsyn mot grønne omgivelser. Boligen ligger rolig til i enden av en blindvei uten innsyn og oppleves både privat og luftig.
Leiligheten er omfattende oppusset i 2025/2026 og fremstår moderne og gjennomført. Det er blant annet installert nytt kjøkken, lagt nytt gulv og oppgradert elektrisk anlegg med gulvvarme i første etasje samt Plejd-styring av belysningen.
På attraktive Eikskollen bor du i rolige omgivelser med kort vei til både natur og byliv. T-banen fra Østerås tar deg til Majorstuen på ca. 15 minutter, og både Østerås og Eiksmarka senter ligger i gangavstand. I nærområdet finner du flotte turmuligheter ved Østernvann og langs Lysakerelven samt barnehager og skoler.
NB: Knappen for å vise hele beskrivelsen har kun en visuell effekt.
NB: Knappen for å vise hele beskrivelsen har kun en visuell effekt.
Salgsoppgaven beskriver vesentlig og lovpålagt informasjon om eiendommen
Se komplett salgsoppgaveNyttige lenker
Nærområdet
Nordvik Sandvika
Vi vet hva det er verdt
Annonseinformasjon
| FINN-kode | 455114396 |
|---|---|
| Sist endret | 15. mars 2026 08:08 |
| Referanse | 45-0035/26 |
Annonsene kan være mangelfulle i forhold til lovpålagt opplysningsplikt. Før bindende avtale inngås oppfordres interessenter til å innhente komplett informasjon fra meglerforetaket, selger eller utleier.



































