Bildegalleri

Velkommen Fjellhamarveien 58, presentert av Sebastian Chodkowski og Kordian Zuraw i Nordvik Bolig! Foto: Stefan Borup.
FJELLHAMAR
Lys og moderne 3-roms m/balkong på 16 m² - Heis - Garasjeplass - Sentral beliggenhet - Veldrevet sameie
Prisantydning5 490 000 kr
Nøkkelinfo
- Boligtype
- Leilighet
- Eieform
- Eier (Selveier)
- Soverom
- 2
- Internt bruksareal
- 84 m² (BRA-i)
- Bruksareal
- 90 m²
- Eksternt bruksareal
- 6 m² (BRA-e)
- Balkong/Terrasse
- 16 m² (TBA)
- Etasje
- 3
- Byggeår
- 2005
- Energimerking
- Rom
- 3
- Tomteareal
- 3 722 m² (eiet)
Fasiliteter
Balkong/Terrasse
Barnevennlig
Garasje/P-plass
Heis
Offentlig vann/kloakk
Sentralt
Om boligen
Velkommen Fjellhamarveien 58
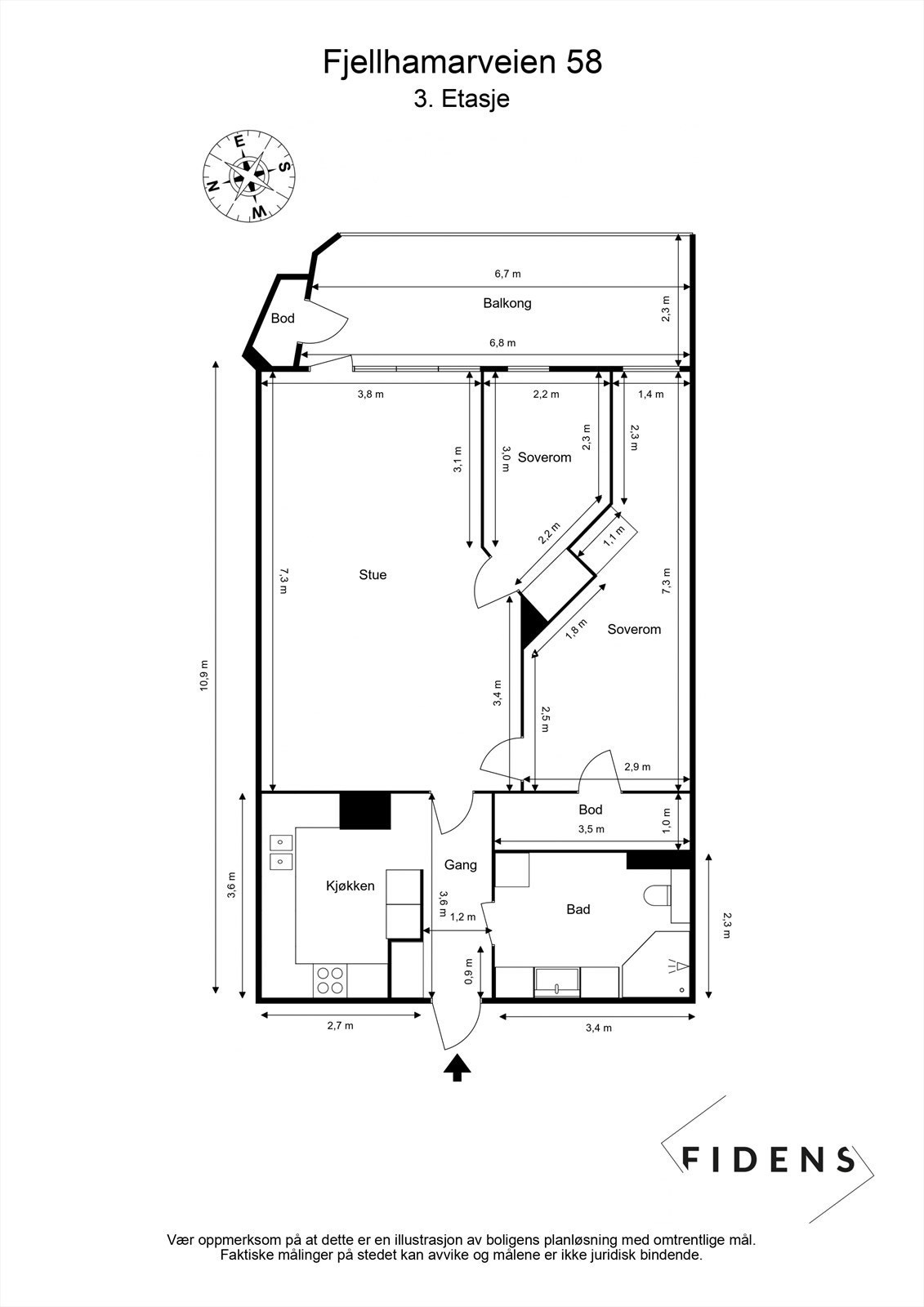
Dette er en sjarmerende 3-roms leilighet med god planløsning. Leiligheten ligger fint til i byggets 3. etasje, og har en praktisk planløsning bestående av entré, bad, to soverom, kjøkken samt stor stue med utgang til sørøstvendt balkong på hele 16 m².
Boligen har en sentral beliggenhet på Fjellhamar, med umiddelbar nærhet til togstasjon, Fjellhamar senter og bussforbindelse.
Kort fortalt:
- Lys 3-roms leilighet i 3. etasje
- Heis i bygget
- Disponerer garasjeplass i felles oppvarmet anlegg
- Utgang til balkong på 16 m²
- 3 boder ( 6m², 3,5m² og 1m²)
- Etablert og veldrevet sameie
- Kort vei til butikk, apotek, lege, buss og togstasjon
- Kun ca. 20 min til Oslo med tog
- Nær lokalsenteret Fjellhamar torg
- Hjørnegård med særpreg fra 2005
Velkommen!
Dette er en sjarmerende 3-roms leilighet med god planløsning. Leiligheten ligger fint til i byggets 3. etasje, og har en praktisk planløsning bestående av entré, bad, to soverom, kjøkken samt stor stue med utgang til sørøstvendt balkong på hele 16 m².
Boligen har en sentral beliggenhet på Fjellhamar, med umiddelbar nærhet til togstasjon, Fjellhamar senter og bussforbindelse.
Kort fortalt:
- Lys 3-roms leilighet i 3. etasje
- Heis i bygget
- Disponerer garasjeplass i felles oppvarmet anlegg
- Utgang til balkong på 16 m²
- 3 boder ( 6m², 3,5m² og 1m²)
- Etablert og veldrevet sameie
- Kort vei til butikk, apotek, lege, buss og togstasjon
- Kun ca. 20 min til Oslo med tog
- Nær lokalsenteret Fjellhamar torg
- Hjørnegård med særpreg fra 2005
Velkommen!
NB: Knappen for å vise hele beskrivelsen har kun en visuell effekt.
NB: Knappen for å vise hele beskrivelsen har kun en visuell effekt.
Salgsoppgaven beskriver vesentlig og lovpålagt informasjon om eiendommen
Se komplett salgsoppgaveNyttige lenker
Nærområdet
Nordvik Lørenskog
Annonseinformasjon
| FINN-kode | 455112898 |
|---|---|
| Sist endret | 13. mars 2026 17:16 |
| Referanse | 65-0285/25 |
Annonsene kan være mangelfulle i forhold til lovpålagt opplysningsplikt. Før bindende avtale inngås oppfordres interessenter til å innhente komplett informasjon fra meglerforetaket, selger eller utleier.










































