Bildegalleri

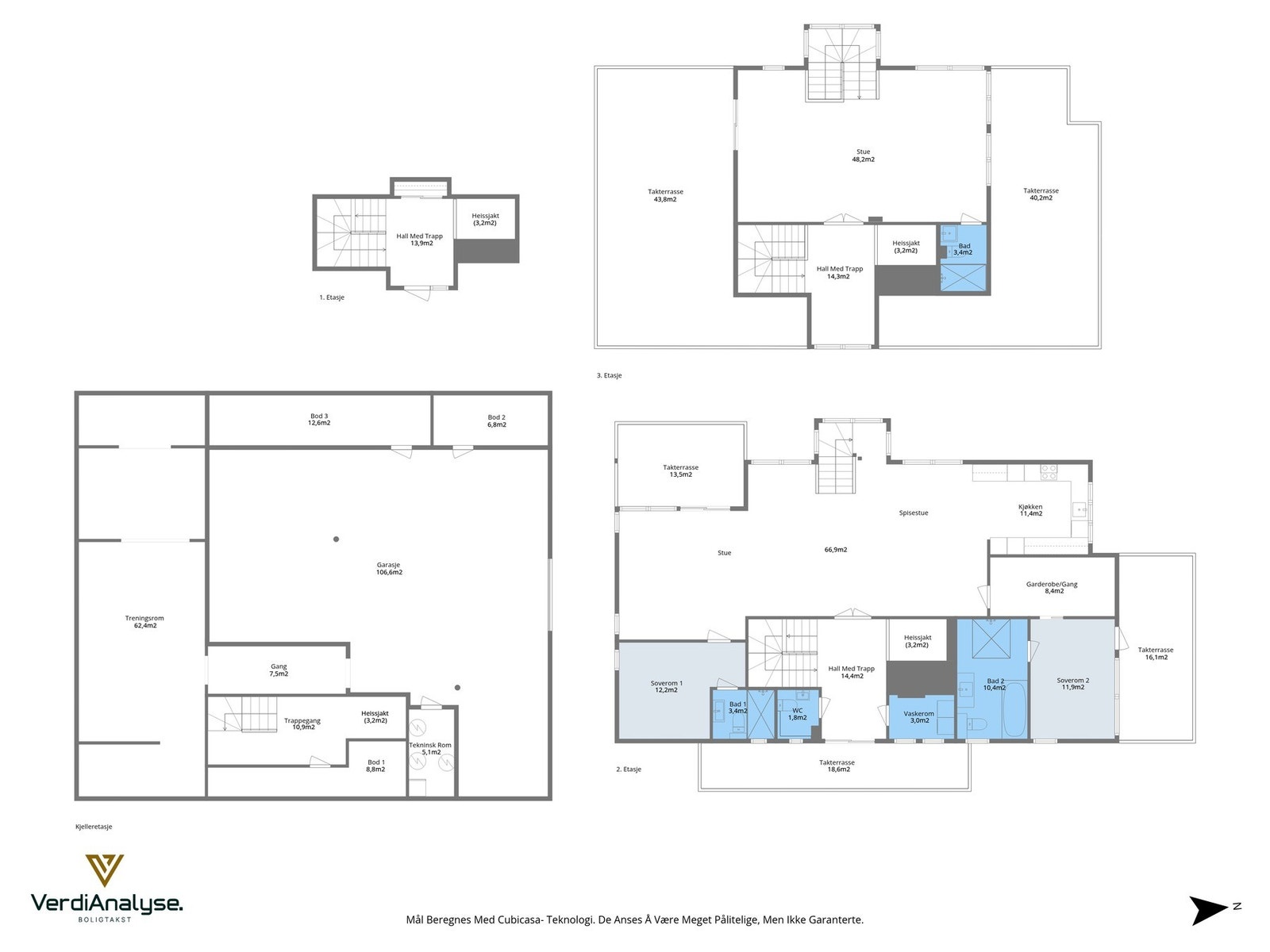
Unik leilighet på 494 m² BRA-I, over 3 etasjer og kjeller.
Berg
UNIK LEILIGHET PÅ 494 m² BRA-I. Privat garasjeanlegg. Eksklusiv beliggenhet. 5 terrasser. Solrikt. Spektakulær utsikt.
Prisantydning15 900 000 kr
Nøkkelinfo
- Boligtype
- Leilighet
- Eieform
- Eier (Selveier)
- Soverom
- 2
- Internt bruksareal
- 494 m² (BRA-i)
- Bruksareal
- 494 m²
- Balkong/Terrasse
- 132 m² (TBA)
- Byggeår
- 2017
- Energimerking
- B - Lysegrønn
- Rom
- 4
- Tomteareal
- 1 101 m² (eiet)
Fasiliteter
Barnevennlig
Balkong/Terrasse
Garasje/P-plass
Kabel-TV
Offentlig vann/kloakk
Parkett
Sentralt
Bredbåndstilknytning
Moderne
Rolig
Visning
mandag, 23. mars
15:00 – 16:30
Våre visninger har påmelding. Dette gjør vi for å kunne yte bedre service for våre kunder. Verdifullt for boligkjøper og for oss. Vi anbefaler at salgsoppgaven lastes ned digitalt før visning, og ring oss gjerne på forhånd for spørsmål om boligen. Passer ikke angitt tidspunkt, ta kontakt så finner vi en løsning. Skulle det mot formodning ikke være påmeldte til angitt visningstidspunkt vil ikke visning bli gjennomført.
Om boligen
UNIK LEILIGHET PÅ 494 m² BRA-I.
Boligen har en attraktiv beliggenhet, hvor det sjeldent omsettes boliger i det åpne markedet. Et anerkjent og etterspurt område, som er høyt verdsatt for sin sentrale beliggenhet, i rolige og etablerte omgivelser.
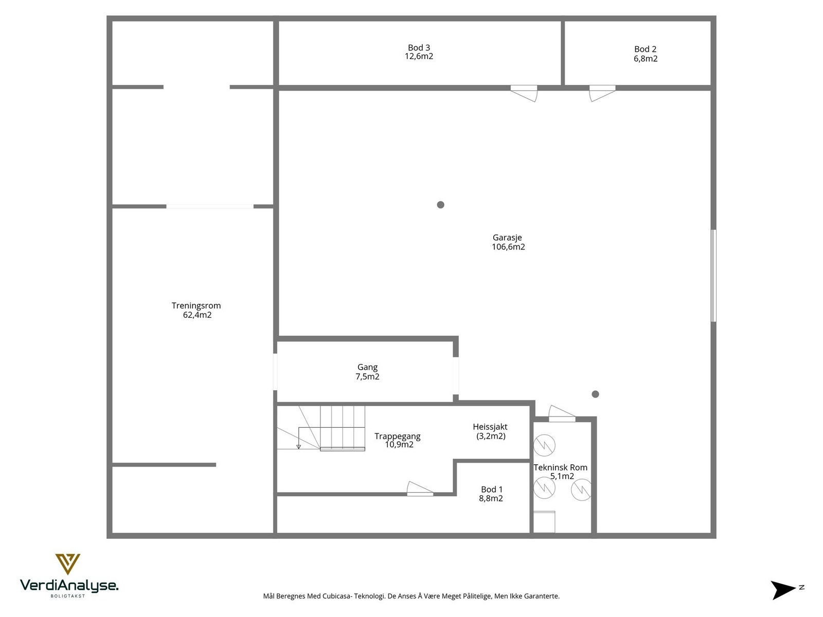
Nedkjøring til privat garasjeanlegg på 107 kvm. Både inn- og utvendig adkomst. Flere boder, samt innredet treningsrom på 62,4 kvm.
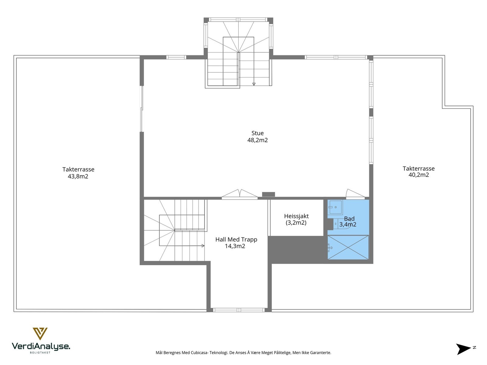
Klargjort med heissjakt, som går over samtlige plan fra kjeller til 3. etasje - Heis er ikke installert.
Fantastisk stue- og kjøkkenløsning. Masse lys og luft, og en spektakulær utsikt. God plass til stor spisestue. Egen stue i boligens øverste etasje, som knapt kan beskrives og må oppleves.
Boligen har 3 bad samt separat vaskerom og gjestetoalett. To store soverom, som har hvert sitt tilhørende bad. Hovedsoverom har i tillegg walk-in-closet og terrasse.
Oppvarming består av jord- og bergvarme.
5 private terrasser, med ekstraordinær utsikt, og sol hele dagen, til flotte solnedganger bak Fosenalpene.
Boligen har en attraktiv beliggenhet, hvor det sjeldent omsettes boliger i det åpne markedet. Et anerkjent og etterspurt område, som er høyt verdsatt for sin sentrale beliggenhet, i rolige og etablerte omgivelser.
Nedkjøring til privat garasjeanlegg på 107 kvm. Både inn- og utvendig adkomst. Flere boder, samt innredet treningsrom på 62,4 kvm.
Klargjort med heissjakt, som går over samtlige plan fra kjeller til 3. etasje - Heis er ikke installert.
Fantastisk stue- og kjøkkenløsning. Masse lys og luft, og en spektakulær utsikt. God plass til stor spisestue. Egen stue i boligens øverste etasje, som knapt kan beskrives og må oppleves.
Boligen har 3 bad samt separat vaskerom og gjestetoalett. To store soverom, som har hvert sitt tilhørende bad. Hovedsoverom har i tillegg walk-in-closet og terrasse.
Oppvarming består av jord- og bergvarme.
5 private terrasser, med ekstraordinær utsikt, og sol hele dagen, til flotte solnedganger bak Fosenalpene.
NB: Knappen for å vise hele beskrivelsen har kun en visuell effekt.
NB: Knappen for å vise hele beskrivelsen har kun en visuell effekt.
Salgsoppgaven beskriver vesentlig og lovpålagt informasjon om eiendommen
Se komplett salgsoppgaveNyttige lenker
Nærområdet
EiendomsMegler 1 Valentinlyst
Vi loser deg trygt gjennom hele boligsalget
Annonseinformasjon
| FINN-kode | 455090212 |
|---|---|
| Sist endret | 18. mars 2026 08:00 |
| Referanse | 34250344 |
Annonsene kan være mangelfulle i forhold til lovpålagt opplysningsplikt. Før bindende avtale inngås oppfordres interessenter til å innhente komplett informasjon fra meglerforetaket, selger eller utleier.




















































