Bildegalleri

Engelsvikenveien 11 presenteres av Krogsveen. Fotograf; Børge Oppegård.
Engelsviken
Sjarmerende trevilla fra 1927 i maritime omgivelser ved sjøen. Påkostet i senere år. Stor, solfylt frukt- og bærhage.
Prisantydning5 250 000 kr
Nøkkelinfo
- Boligtype
- Enebolig
- Eieform
- Eier (Selveier)
- Soverom
- 2
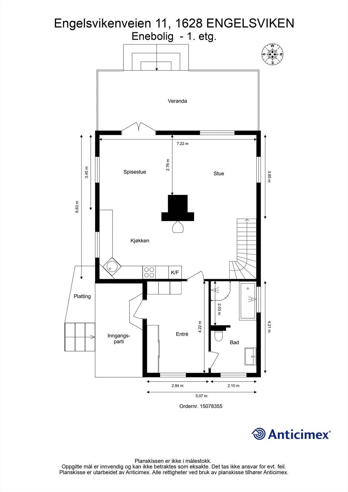
- Internt bruksareal
- 126 m² (BRA-i)
- Bruksareal
- 138 m²
- Eksternt bruksareal
- 12 m² (BRA-e)
- Balkong/Terrasse
- 32 m² (TBA)
- Etasje
- 2
- Byggeår
- 1927
- Rom
- 4
- Tomteareal
- 1 246 m² (eiet)
Fasiliteter
Balkong/Terrasse
Barnevennlig
Bredbåndstilknytning
Garasje/P-plass
Golfbane
Hage
Kjæledyr tillatt
Kabel-TV
Offentlig vann/kloakk
Peis/Ildsted
Rolig
Sentralt
Bademulighet
Fiskemulighet
Turterreng
Lademulighet
Visning
søndag, 29. mars
12:00 – 13:00
For å delta på visning, ber vi om at du melder deg på. Da sikrer vi at du får nødvendig informasjon og at det er satt av tilstrekkelig med tid. Kontakt megler dersom annet tidspunkt ønskes.
Husk å lese salgsoppgaven før visningen, så du stiller forberedt. NB. Visning utgår dersom det ikke er noen påmeldte.
Ønsker du kun å bli holdt orientert, kan du fra eiendommens hjemmeside få varsel om solgtpris, eller kontakte megler.
VisningspåmeldingOm boligen
Sjarmerende trevilla fra 1927 - midt i maritime Engelsviken
- Stor, etablert og inngjerdet hage med frukttrær og bærbusker
- Vestvendt terrasse med sol fra ettermiddag til kveld sommerstid
- Ny kledning på sør- og østvegg samt nye vinduer i andre etasje i 2017/2018
- Alle utvendige sider malt i 2018
- Yttertak lagt om i 2015
- Drenering utført rundt tre av fire sider i 2010
- Familievennlig romløsning med tre generøse soverom i andre etasje
- Praktisk IKEA-kjøkken med hvitevarer som følger
- Stort bad, fornyet i 2015
- Frittstående hage-/redskapsbod på ca. 12 kvm.
- 20 min. med buss til byen - holdeplass like ved
- Enkel tilgang til vakre turområder, svaberg og badesteder
- Matforretninger, spisesteder og treningssenter i nærmiljøet
NB: Knappen for å vise hele beskrivelsen har kun en visuell effekt.
NB: Knappen for å vise hele beskrivelsen har kun en visuell effekt.
Salgsoppgaven beskriver vesentlig og lovpålagt informasjon om eiendommen
Se komplett salgsoppgaveNyttige lenker
Nærområdet
Krogsveen Moss
Verdien av en god megler.
Annonseinformasjon
| FINN-kode | 455088784 |
|---|---|
| Sist endret | 17. mars 2026 07:41 |
| Referanse | KR30.25197 |
Annonsene kan være mangelfulle i forhold til lovpålagt opplysningsplikt. Før bindende avtale inngås oppfordres interessenter til å innhente komplett informasjon fra meglerforetaket, selger eller utleier.







































