Bildegalleri

Velkommen til Sverdrups gate 13 v/ Veronica Berge Olsen, Eiendomsmegler Norge.
Bjergsted
Trivelig leilighet med gangavstand til byen - Flott sjøutsikt og to balkonger - Parkering i lukket anlegg med lader
Prisantydning4 990 000 kr
Nøkkelinfo
- Boligtype
- Leilighet
- Eieform
- Eier (Selveier)
- Soverom
- 2
- Internt bruksareal
- 70 m² (BRA-i)
- Bruksareal
- 70 m²
- Balkong/Terrasse
- 22 m² (TBA)
- Etasje
- 3
- Byggeår
- 2005
- Energimerking
- Rom
- 3
- Tomteareal
- 1 341 m² (eiet)
Fasiliteter
Balkong/Terrasse
Garasje/P-plass
Parkett
Sentralt
Utsikt
Turterreng
Lademulighet
Visning
mandag, 23. mars
16:00 – 17:30
Eiendomsmegler Norge sine visninger har påmelding. Påmelding gjøres enkelt ved å benytte knappen under. Ta kontakt med megler dersom oppsatt tidspunkt ikke passer. Det vil ikke bli avholdt visning uten påmelding, frist for påmelding er senest kl. 12.00 på visningsdagen. Husk å laste ned salgsoppgaven digitalt før visning. Velkommen til en hyggelig visning!
VisningspåmeldingOm boligen
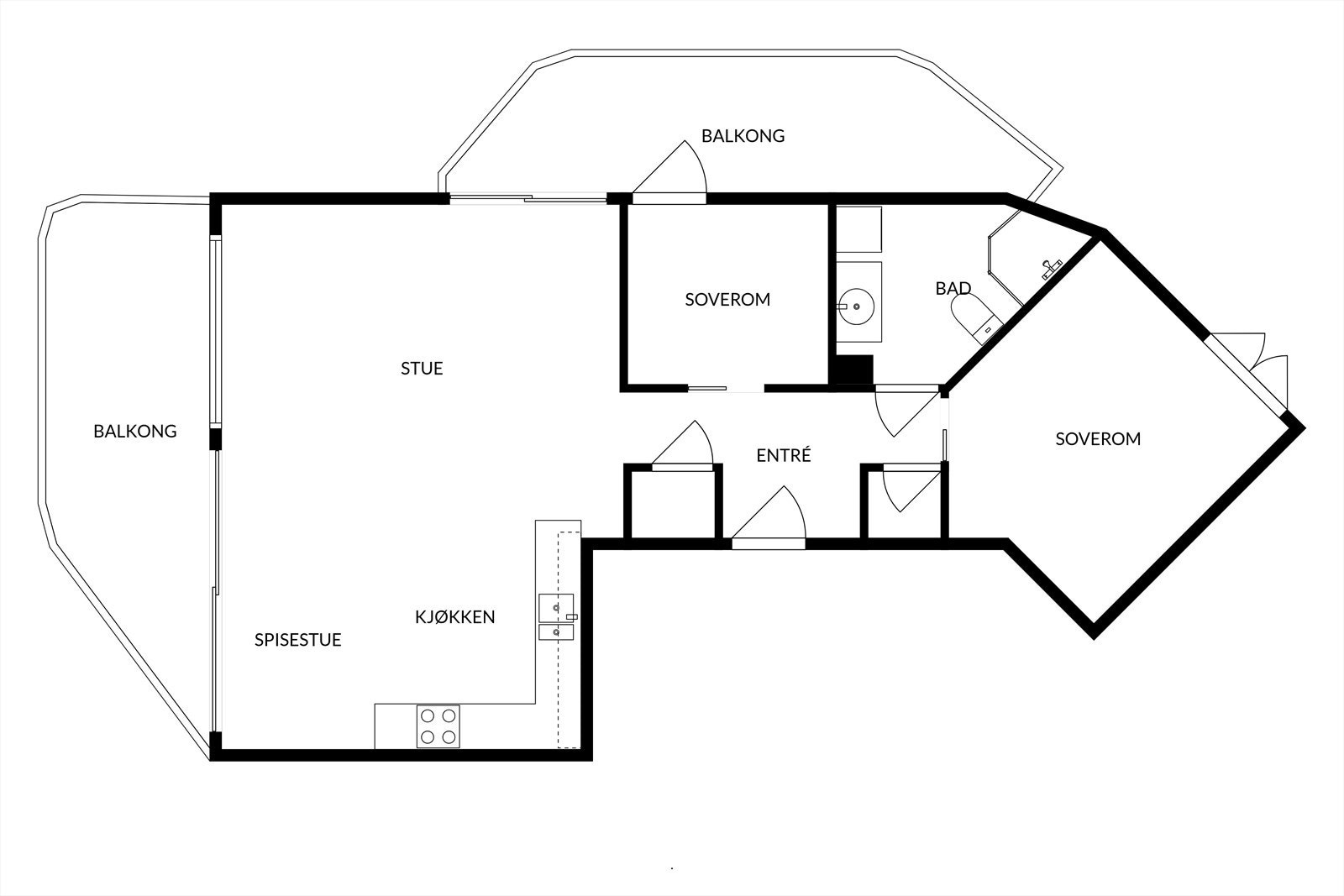
Lys og trivelig leilighet med en av Stavangers beste beliggenheter sentralt med kort vei til sentrum, turområder og samtidig med fantastisk utsikt over sjø og fjell. Enkel tilgang til kollektivtilbud.
Praktisk planløsning med åpen stue- og kjøkkenløsning, store vindusflater som slipper inn rikelig med lys og gir en luftig atmosfære. Fra stuen er det utgang til to balkonger på totalt 22 kvm, perfekte for varmere dager og utsikt.
Boligen har parkett på gulv, to soverom, praktisk gjestetoalett, helfliset baderom og bodareal både inne og ute. Parkeringsplass i lukket anlegg med elbillader og heis.
En ideell kombinasjon av komfort, funksjonalitet og sjarm!
Praktisk planløsning med åpen stue- og kjøkkenløsning, store vindusflater som slipper inn rikelig med lys og gir en luftig atmosfære. Fra stuen er det utgang til to balkonger på totalt 22 kvm, perfekte for varmere dager og utsikt.
Boligen har parkett på gulv, to soverom, praktisk gjestetoalett, helfliset baderom og bodareal både inne og ute. Parkeringsplass i lukket anlegg med elbillader og heis.
En ideell kombinasjon av komfort, funksjonalitet og sjarm!
NB: Knappen for å vise hele beskrivelsen har kun en visuell effekt.
NB: Knappen for å vise hele beskrivelsen har kun en visuell effekt.
Salgsoppgaven beskriver vesentlig og lovpålagt informasjon om eiendommen
Se komplett salgsoppgaveNyttige lenker
Nærområdet
Eiendomsmegler Norge Stavanger
Best der du bor
Annonseinformasjon
| FINN-kode | 455088138 |
|---|---|
| Sist endret | 13. mars 2026 14:35 |
| Referanse | 20260034 |
Annonsene kan være mangelfulle i forhold til lovpålagt opplysningsplikt. Før bindende avtale inngås oppfordres interessenter til å innhente komplett informasjon fra meglerforetaket, selger eller utleier.




































