Bildegalleri

Velkommen til Tornesgata 11
Innholdsrik halvpart av tomannsbolig på Solvang.
Prisantydning1 950 000 kr
Nøkkelinfo
- Boligtype
- Tomannsbolig
- Eieform
- Eier (Selveier)
- Soverom
- 1
- Internt bruksareal
- 98 m² (BRA-i)
- Bruksareal
- 98 m²
- Etasje
- 1
- Byggeår
- 1948
- Energimerking
- Rom
- 4
- Tomteareal
- 577 m² (eiet)
Fasiliteter
Barnevennlig
Hage
Kjæledyr tillatt
Ingen gjenboere
Offentlig vann/kloakk
Peis/Ildsted
Rolig
Sentralt
Utsikt
Turterreng
Visning
onsdag, 18. mars
16:00 – 17:00
Eiendomsmegler Norge sine visninger har påmelding. Påmelding gjøres enkelt ved å benytte knappen under. Ta kontakt med megler dersom oppsatt tidspunkt ikke passer. Det vil ikke bli avholdt visning uten påmelding, frist for påmelding er senest kl. 12.00 på visningsdagen. Husk å laste ned salgsoppgaven digitalt før visning. Velkommen til en hyggelig visning!
VisningspåmeldingOm boligen
Boligen ligger i ett populært boligområde, med kort avstand til butikk, idrettsanlegg, ishall, svømmehall, klatrevegg, treningssenter m.m.. Det er også byens flotteste turområder i nærområdet.
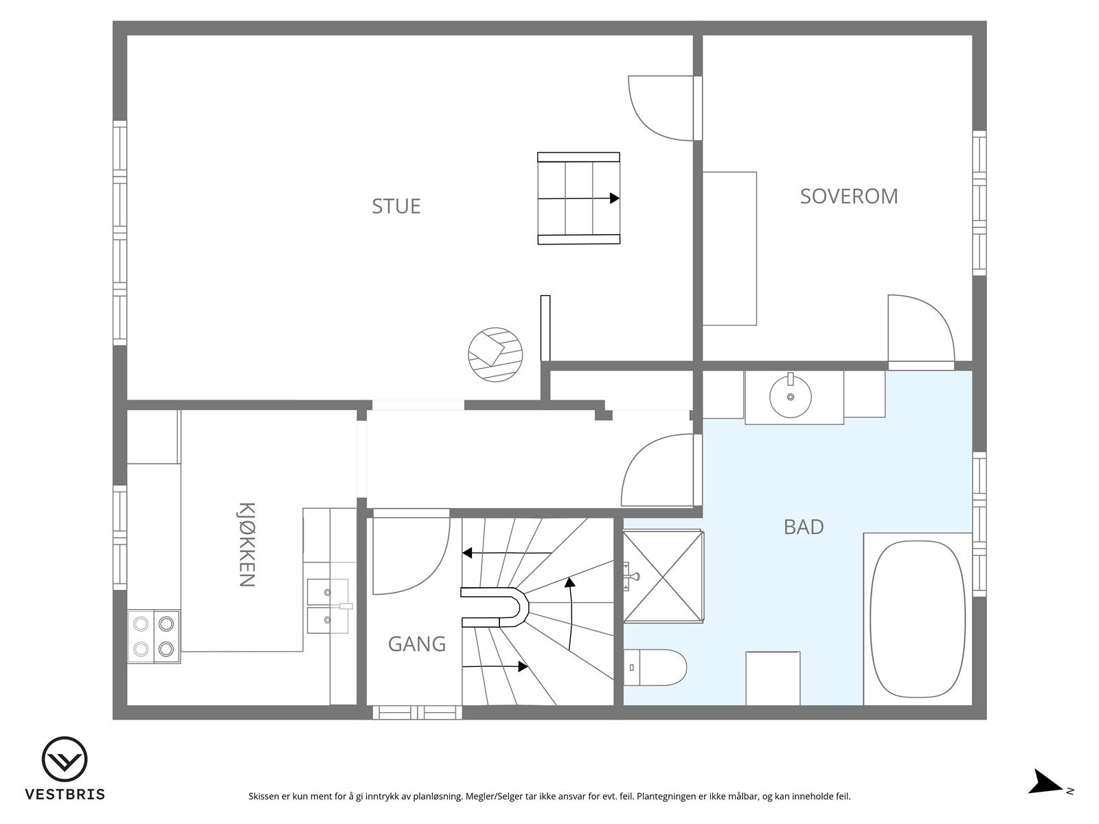
Det er egen inngang i første etasje. Her er det trapp til andre etasje hvor man finner en gang, stort kjøkken med spiseplass. Innredningen på kjøkkenet har godt med skap- og benkeplass. Videre kommer man inn i stuen som har peisovn og trapp til loftsetasjen. Videre er det ett rommelig soverom og stort baderom med badekar, dusjkabinett, toalett og servant i seksjon. Her er også opplegg for vaskemaskin.
I loftsetasjen er det gang og to rom som har blitt brukt som soverom.
Felles eiet tomt, men garasjen tilhører seksjonen nede og boden tilhører seksjonen oppe.
Det er egen inngang i første etasje. Her er det trapp til andre etasje hvor man finner en gang, stort kjøkken med spiseplass. Innredningen på kjøkkenet har godt med skap- og benkeplass. Videre kommer man inn i stuen som har peisovn og trapp til loftsetasjen. Videre er det ett rommelig soverom og stort baderom med badekar, dusjkabinett, toalett og servant i seksjon. Her er også opplegg for vaskemaskin.
I loftsetasjen er det gang og to rom som har blitt brukt som soverom.
Felles eiet tomt, men garasjen tilhører seksjonen nede og boden tilhører seksjonen oppe.
NB: Knappen for å vise hele beskrivelsen har kun en visuell effekt.
NB: Knappen for å vise hele beskrivelsen har kun en visuell effekt.
Salgsoppgaven beskriver vesentlig og lovpålagt informasjon om eiendommen
Se komplett salgsoppgaveNyttige lenker
Nærområdet
Eiendomsmegler Norge Haugesund
Best der du bor
Annonseinformasjon
| FINN-kode | 455086427 |
|---|---|
| Sist endret | 17. mars 2026 07:21 |
| Referanse | 19260056 |
Annonsene kan være mangelfulle i forhold til lovpålagt opplysningsplikt. Før bindende avtale inngås oppfordres interessenter til å innhente komplett informasjon fra meglerforetaket, selger eller utleier.
































