Bildegalleri

Monica Mørk Aase i EiendomsMegler1 Jærmegleren presenterer Hagane 15 på Vigrestad.
Vigrestad
Stor og praktisk familiebolig fra 2012, med utrolig kjekk beliggenhet.
Prisantydning5 990 000 kr
Nøkkelinfo
- Boligtype
- Enebolig
- Eieform
- Eier (Selveier)
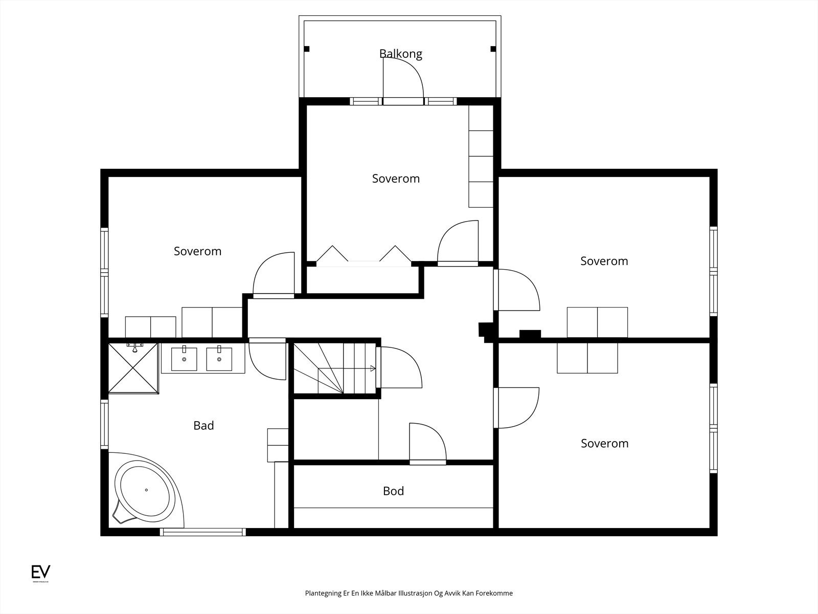
- Soverom
- 6
- Internt bruksareal
- 246 m² (BRA-i)
- Bruksareal
- 291 m²
- Eksternt bruksareal
- 45 m² (BRA-e)
- Balkong/Terrasse
- 83 m² (TBA)
- Byggeår
- 2012
- Energimerking
- Rom
- 5
- Tomteareal
- 505 m² (eiet)
Fasiliteter
Balkong/Terrasse
Barnevennlig
Garasje/P-plass
Hage
Kjæledyr tillatt
Offentlig vann/kloakk
Peis/Ildsted
Rolig
Sentralt
Lademulighet
Visning
mandag, 23. mars
17:00 – 17:45
Ønsker du å delta på visningen ber vi deg melde deg på slik at vi vet at du kommer. Da kan vi bistå alle best mulig og gi deg tiden du trenger på visningen. Kontakt gjerne megler før visning hvis du har spørsmål. Visningen avholdes bare dersom det er påmeldte. Hvis det ikke er oppsatt visningstidspunkt eller tidspunkt ikke passer, kontakt megler.
VisningspåmeldingOm boligen
Velkommen til Hagane 15!
Fin enebolig fra 2012 med god beliggenhet i et attraktivt og etablert boligområde. Her er det kort vei, både til barnehager og skole, idrettsanlegg, butikk og jernbane.
- Praktisk planløsning, innredet over tre etasjer.
- Gjennomgående fine og moderne fargevalg.
- Oppleves som godt påpasset og ivaretatt.
- 6 soverom.
- Stort kjøkken med særdeles mye skap og skuffeplass.
- Lys og innbydende stue med gode lysforhold.
- 2 varmepumper og vedovn.
- Fine uteområder med mye terrasser og smarte oppbevaringsløsniger
- Praktisk sykkelbod
- Dobbel garasje.
Velkommen til en hyggelig visning med EiendomsMegler1 Jærmegleren.
Fin enebolig fra 2012 med god beliggenhet i et attraktivt og etablert boligområde. Her er det kort vei, både til barnehager og skole, idrettsanlegg, butikk og jernbane.
- Praktisk planløsning, innredet over tre etasjer.
- Gjennomgående fine og moderne fargevalg.
- Oppleves som godt påpasset og ivaretatt.
- 6 soverom.
- Stort kjøkken med særdeles mye skap og skuffeplass.
- Lys og innbydende stue med gode lysforhold.
- 2 varmepumper og vedovn.
- Fine uteområder med mye terrasser og smarte oppbevaringsløsniger
- Praktisk sykkelbod
- Dobbel garasje.
Velkommen til en hyggelig visning med EiendomsMegler1 Jærmegleren.
NB: Knappen for å vise hele beskrivelsen har kun en visuell effekt.
NB: Knappen for å vise hele beskrivelsen har kun en visuell effekt.
Salgsoppgaven beskriver vesentlig og lovpålagt informasjon om eiendommen
Se komplett salgsoppgaveNyttige lenker
Nærområdet
EiendomsMegler 1 Jærmegleren
En del av Sparebank 1 Sør-Norge
Annonseinformasjon
| FINN-kode | 455084444 |
|---|---|
| Sist endret | 13. mars 2026 15:36 |
| Referanse | 2405250137 |
Annonsene kan være mangelfulle i forhold til lovpålagt opplysningsplikt. Før bindende avtale inngås oppfordres interessenter til å innhente komplett informasjon fra meglerforetaket, selger eller utleier.
































































