Bildegalleri

Tom Martinsen ønsker velkommen til Ullevålsveien 45!
St.Hanshaugen
Sjelden anledning! Stort oppussingsobjekt med masse potensial. 3,1 m takhøyde, balkong, klassiske detaljer. Må ses!
Prisantydning12 180 000 kr
Nøkkelinfo
- Boligtype
- Leilighet
- Eieform
- Eier (Selveier)
- Soverom
- 4
- Internt bruksareal
- 162 m² (BRA-i)
- Bruksareal
- 168 m²
- Eksternt bruksareal
- 6 m² (BRA-e)
- Balkong/Terrasse
- 3 m² (TBA)
- Etasje
- 2
- Byggeår
- 1903
- Energimerking
- Rom
- 6
- Tomteareal
- 544 m² (eiet)
Fasiliteter
Balkong/Terrasse
Barnevennlig
Kjæledyr tillatt
Offentlig vann/kloakk
Parkett
Peis/Ildsted
Sentralt
Utsikt
Turterreng
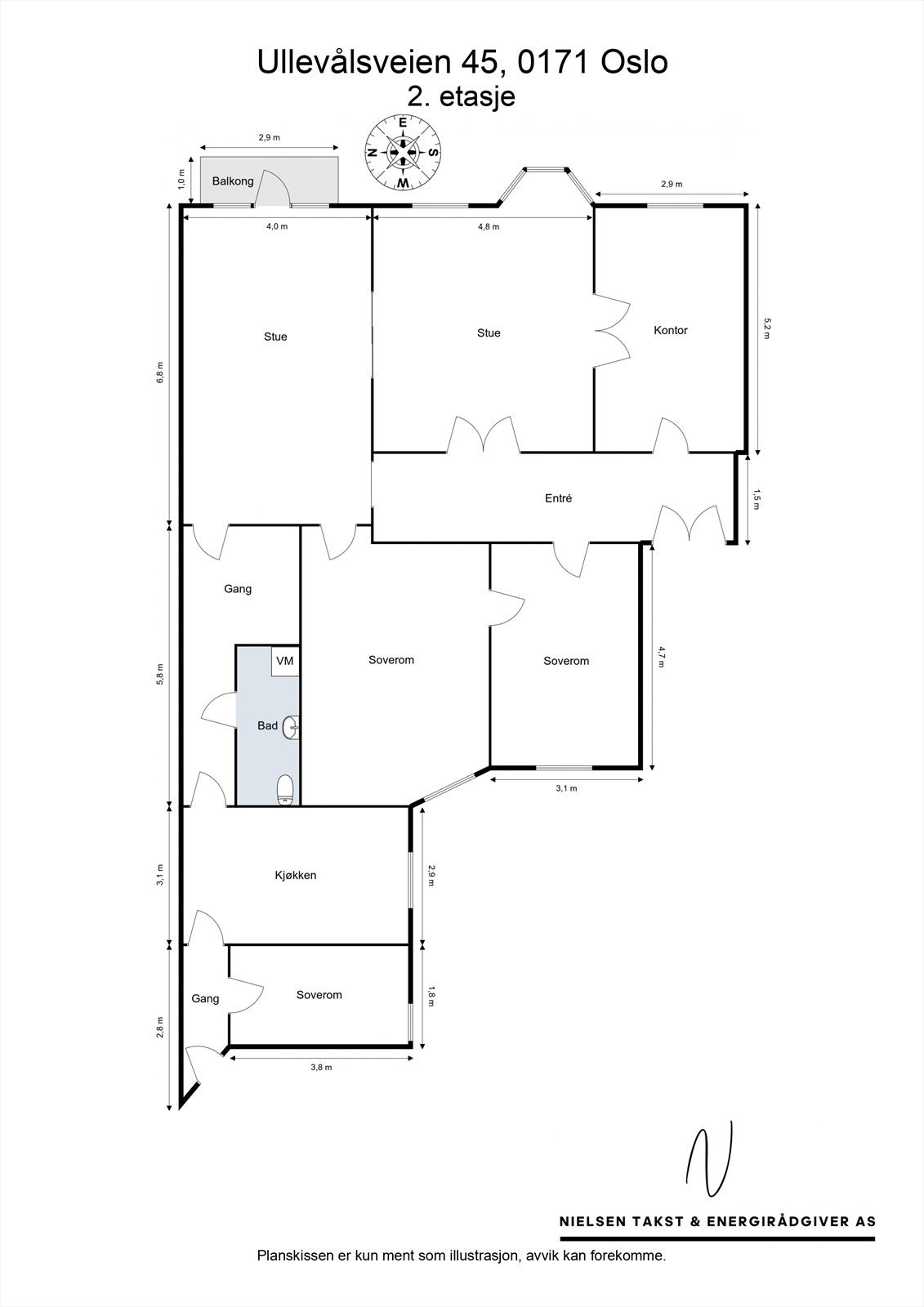
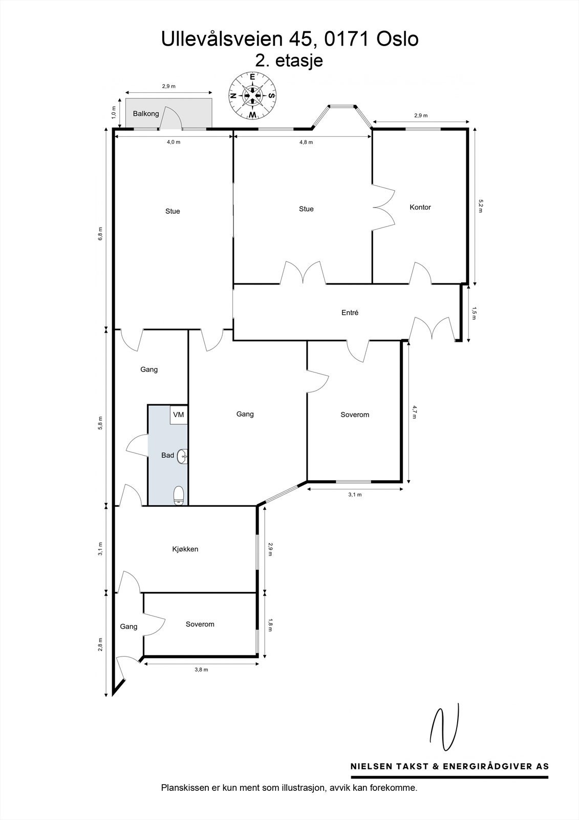
Om boligen
Velkommen til Ullevålsveien 45! En sjelden mulighet til å skape drømmeboligen i en klassisk bygård på St. Hanshaugen.
Bo sentralt på populære St. Hanshaugen, med parken, kafeer og butikker rett utenfor døren. Beliggenheten er svært sentral og området er vurdert som veldig trygt, med 10 minutter å gå til hele Oslo . Dette er en unik mulighet til å forme en stor og klassisk leilighet med enormt potensial, midt i byens puls.
Høydepunkter:
Bo sentralt på populære St. Hanshaugen, med parken, kafeer og butikker rett utenfor døren. Beliggenheten er svært sentral og området er vurdert som veldig trygt, med 10 minutter å gå til hele Oslo . Dette er en unik mulighet til å forme en stor og klassisk leilighet med enormt potensial, midt i byens puls.
Høydepunkter:
- Stort oppussingsobjekt med fleksibel planløsning
- Særdeles god takhøyde på ca. 3,15 meter
- Store rom og klassiske detaljer som vedovn
- Østvendt balkong på ca. 2,9 m²
- To disponible loftsboder gir god lagringsplass
- Ingen lån registrert i sameiet
- Selveierleilighet i bygård fra 1903
Velkommen til visning!
NB: Knappen for å vise hele beskrivelsen har kun en visuell effekt.
NB: Knappen for å vise hele beskrivelsen har kun en visuell effekt.
Salgsoppgaven beskriver vesentlig og lovpålagt informasjon om eiendommen
Se komplett salgsoppgaveNyttige lenker
Nærområdet
Krogsveen Hasle
Verdien av en god megler.
Annonseinformasjon
| FINN-kode | 455082162 |
|---|---|
| Sist endret | 19. mars 2026 08:44 |
| Referanse | KR37.2635 |
Annonsene kan være mangelfulle i forhold til lovpålagt opplysningsplikt. Før bindende avtale inngås oppfordres interessenter til å innhente komplett informasjon fra meglerforetaket, selger eller utleier.

















































