Bildegalleri

PrivatMegleren Renommé har gleden av å presentere Frysjaveien 42P! Foto: Scott Kvitberg og Kristine Elvemo / Fotostallen
Nye og moderne Frysjaparken
Moderne 5-roms med høy bokomfort | To herlige balkonger | Heis | Garasjeplass med lader | Akonto vv inkl i felleskostn.
Prisantydning12 000 000 kr
Nøkkelinfo
- Boligtype
- Leilighet
- Eieform
- Eier (Selveier)
- Soverom
- 4
- Internt bruksareal
- 114 m² (BRA-i)
- Bruksareal
- 120 m²
- Eksternt bruksareal
- 6 m² (BRA-e)
- Balkong/Terrasse
- 19 m² (TBA)
- Etasje
- 5
- Byggeår
- 2021
- Energimerking
- A - Gul
- Tomteareal
- 8 017 m² (eiet)
Fasiliteter
Barnevennlig
Balkong/Terrasse
Garasje/P-plass
Heis
Offentlig vann/kloakk
Ingen gjenboere
Parkett
Utsikt
Vaktmester-/vektertjeneste
Sentralt
Bredbåndstilknytning
Moderne
Rolig
Lademulighet
Om boligen
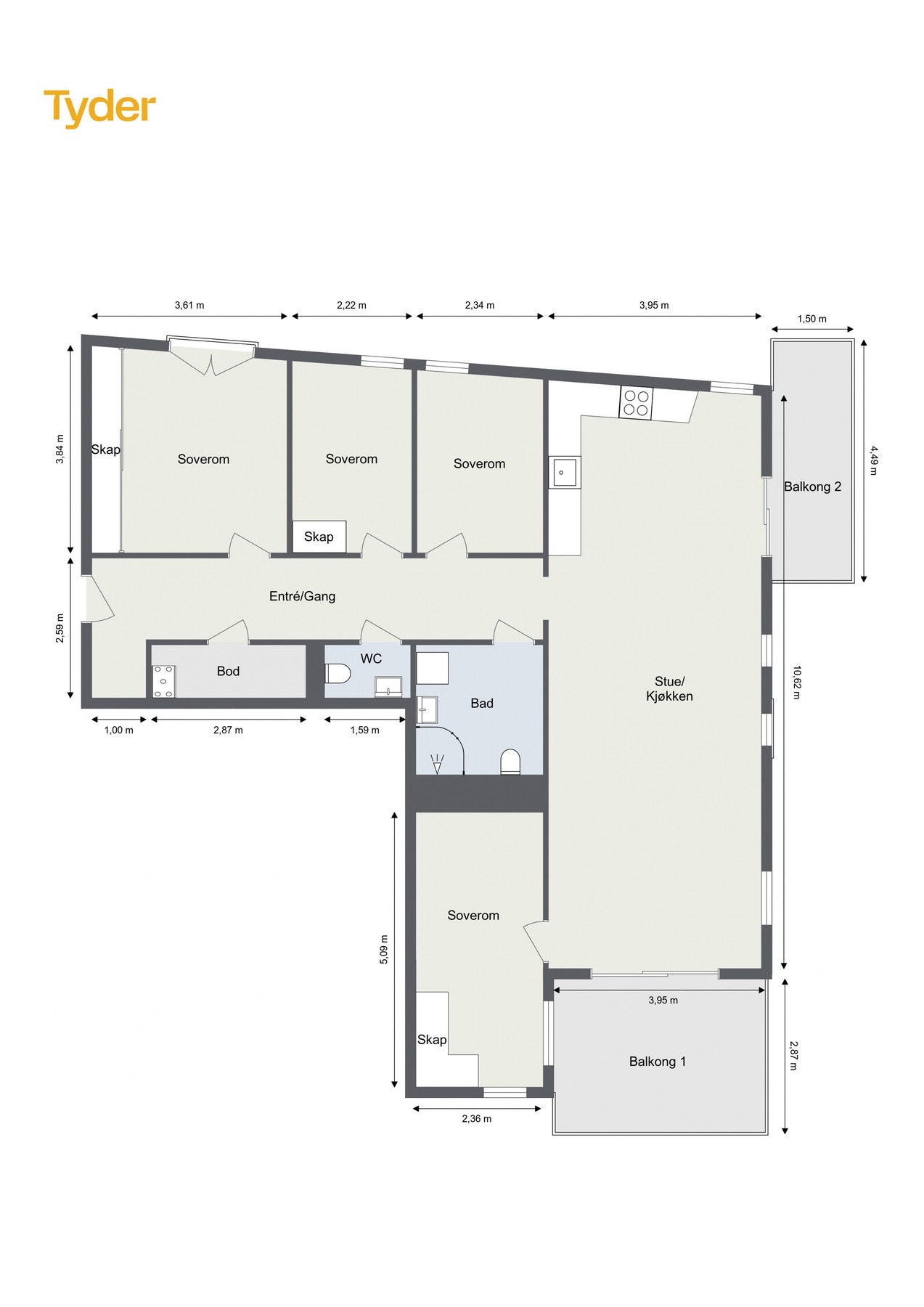
PrivatMegleren Renommé har gleden av å presentere Frysjaveien 42P! Her får du en moderne og gjennomført 5-roms leilighet med attraktiv beliggenhet og høy bokomfort.
Leiligheten ligger i 5.etasje med heis og byr på en god planløsning, romslige oppholdsrom og to herlige balkonger. Her bor du lettvint og bekvemt med direkte heisadkomst til parkering og bod, samt servicetilbud og treningssenter rett utenfor døren.
Kort oppsummert:
- Akonto varmtvann inkl. i felleskostnadene
- To flotte balkonger på hhv. 12 og 7 kvm
- Lys og romslig stue med takhøyde på ca. 2,60 m
- Moderne HTH kjøkken med integrerte hvitevarer
- Fire gode soverom - hovedsoverom med fransk balkong
- Flislagt bad med behagelig gulvvarme + separat toalettrom
- Garasjeplass i felles garasjekjeller med elbil-lader
- Felles takterrasse, sykkelbod og smøte-/skibod
- Ingen fellesgjeld
Velkommen til hyggelig visning!
Leiligheten ligger i 5.etasje med heis og byr på en god planløsning, romslige oppholdsrom og to herlige balkonger. Her bor du lettvint og bekvemt med direkte heisadkomst til parkering og bod, samt servicetilbud og treningssenter rett utenfor døren.
Kort oppsummert:
- Akonto varmtvann inkl. i felleskostnadene
- To flotte balkonger på hhv. 12 og 7 kvm
- Lys og romslig stue med takhøyde på ca. 2,60 m
- Moderne HTH kjøkken med integrerte hvitevarer
- Fire gode soverom - hovedsoverom med fransk balkong
- Flislagt bad med behagelig gulvvarme + separat toalettrom
- Garasjeplass i felles garasjekjeller med elbil-lader
- Felles takterrasse, sykkelbod og smøte-/skibod
- Ingen fellesgjeld
Velkommen til hyggelig visning!
NB: Knappen for å vise hele beskrivelsen har kun en visuell effekt.
NB: Knappen for å vise hele beskrivelsen har kun en visuell effekt.
Salgsoppgaven beskriver vesentlig og lovpålagt informasjon om eiendommen
Se komplett salgsoppgaveNyttige lenker
Nærområdet

PrivatMegleren Renommé
Kun det beste på dine vegne
Annonseinformasjon
| FINN-kode | 455082100 |
|---|---|
| Sist endret | 14. mars 2026 09:55 |
| Referanse | 40260041 |
Annonsene kan være mangelfulle i forhold til lovpålagt opplysningsplikt. Før bindende avtale inngås oppfordres interessenter til å innhente komplett informasjon fra meglerforetaket, selger eller utleier.










































