Bildegalleri

EiendomsMegler1 ved Markus Tangvik har gleden av å presentere en særdeles lekker toppleiligheten på Lysangen.
Leangen
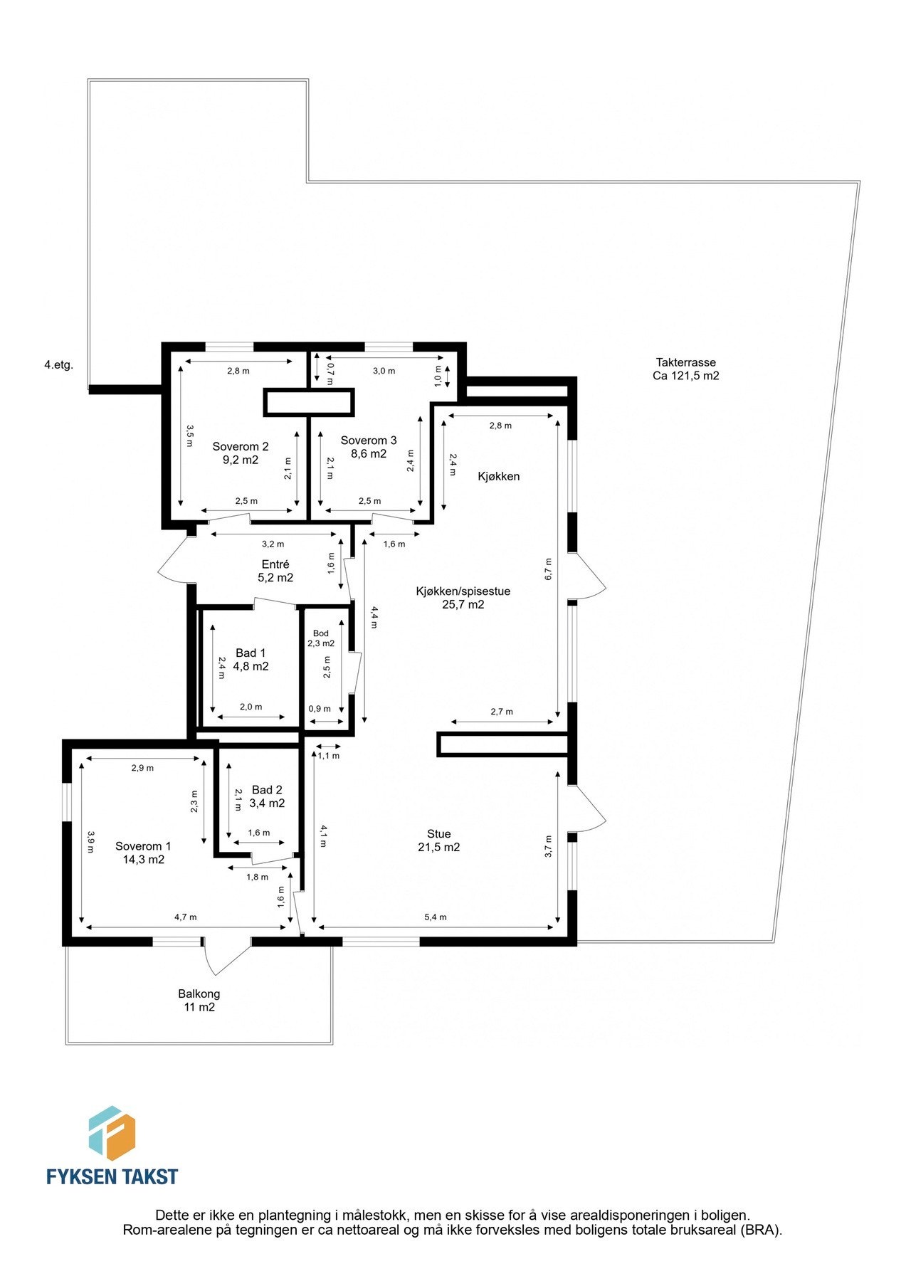
SÆRDELES FLOTT OG NY TOPPLEILIGHET FRA 2025 MED FIN TAKTERRASSE. Fantastisk utsikt og gode solforhold. 2 P-plasser. Heis
Prisantydning12 900 000 kr
Nøkkelinfo
- Boligtype
- Leilighet
- Eieform
- Eier (Selveier)
- Soverom
- 3
- Internt bruksareal
- 103 m² (BRA-i)
- Bruksareal
- 108 m²
- Eksternt bruksareal
- 5 m² (BRA-e)
- Balkong/Terrasse
- 133 m² (TBA)
- Etasje
- 4
- Byggeår
- 2025
- Energimerking
- B - Lysegrønn
- Rom
- 4
- Tomt
- Eiet
Fasiliteter
Barnevennlig
Balkong/Terrasse
Garasje/P-plass
Kabel-TV
Alarm
Heis
Offentlig vann/kloakk
Parkett
Turterreng
Utsikt
Vaktmester-/vektertjeneste
Sentralt
Bredbåndstilknytning
Moderne
Bademulighet
Lademulighet
Balansert ventilasjon
Visning
mandag, 23. mars
18:30 – 19:15
Våre visninger har påmelding. Dette gjør vi for å kunne yte bedre service for våre kunder. Verdifullt for boligkjøper og for oss. Vi anbefaler at salgsoppgaven lastes ned digitalt før visning, og ring oss gjerne på forhånd for spørsmål om boligen. Passer ikke angitt tidspunkt, ta kontakt så finner vi en løsning. Skulle det mot formodning ikke være påmeldte til angitt visningstidspunkt vil ikke visning bli gjennomført.
Om boligen
EiendomsMegler 1 ved Markus Tangvik har gleden av å presentere en lekker og ny toppleilighet i prosjektet Lysangen. Her bor du helt alene på toppen, og har en privat takterrasse med upåklagelige solforhold. Med balkong i tillegg til terrassen har man uteplasser på tre sider av leiligheten. Bygget ble ferdigstilt i sommer 2025, og består av tidsriktige og flotte materialvalg.
Kvaliteter:
- Særdeles flott toppleilighet fra 2025 med store oppholdsrom som er lett å innrede.
- 2 P-plasser medfølger leiligheten.
- 2 stk. fantastiske takterrasser på 121 kvm og 10.6 kvm.
- Store vindusflater fra gulv til tak gir rikelig med naturlig lysinnslipp.
- Lekkert Sigdal-kjøkken med god skap- og benkeplass.
- 2 stk. eksklusive baderom i nydelige materialvalg.
- Hovedsoverom med eget bad og utgang til en egen sørvendt balkong
- Vannbåren gulvvarme.
- Bildeling
- Sportsbod i kjeller
- Lave omkostninger.
- Treningsrom i hus C.
Velkommen!
Kvaliteter:
- Særdeles flott toppleilighet fra 2025 med store oppholdsrom som er lett å innrede.
- 2 P-plasser medfølger leiligheten.
- 2 stk. fantastiske takterrasser på 121 kvm og 10.6 kvm.
- Store vindusflater fra gulv til tak gir rikelig med naturlig lysinnslipp.
- Lekkert Sigdal-kjøkken med god skap- og benkeplass.
- 2 stk. eksklusive baderom i nydelige materialvalg.
- Hovedsoverom med eget bad og utgang til en egen sørvendt balkong
- Vannbåren gulvvarme.
- Bildeling
- Sportsbod i kjeller
- Lave omkostninger.
- Treningsrom i hus C.
Velkommen!
NB: Knappen for å vise hele beskrivelsen har kun en visuell effekt.
NB: Knappen for å vise hele beskrivelsen har kun en visuell effekt.
Salgsoppgaven beskriver vesentlig og lovpålagt informasjon om eiendommen
Se komplett salgsoppgaveNærområdet
EiendomsMegler 1 Nybygg
Vi loser deg trygt gjennom hele boligsalget
Annonseinformasjon
| FINN-kode | 455076074 |
|---|---|
| Sist endret | 12. mars 2026 15:00 |
| Referanse | 49260067 |
Annonsene kan være mangelfulle i forhold til lovpålagt opplysningsplikt. Før bindende avtale inngås oppfordres interessenter til å innhente komplett informasjon fra meglerforetaket, selger eller utleier.







































