Bildegalleri

Utmerket familiebolig perfekt for barnefamilier
Sørbø/Hove
Stor og delikat bolig med samlet areal på 213 kvm. BRA | 4 (5) sov./2 stuer/2 bad | Innglasset balkong | Vannbåren varme
Prisantydning7 490 000 kr
Nøkkelinfo
- Boligtype
- Rekkehus
- Eieform
- Eier (Selveier)
- Soverom
- 5
- Internt bruksareal
- 192 m² (BRA-i)
- Bruksareal
- 213 m²
- Eksternt bruksareal
- 10 m² (BRA-e)
- Innglasset balkong
- 11 m² (BRA-b)
- Balkong/Terrasse
- 12 m² (TBA)
- Byggeår
- 2012
- Energimerking
- C - Lysegrønn
- Tomteareal
- 228 m² (eiet)
Fasiliteter
Barnevennlig
Balkong/Terrasse
Garasje/P-plass
Offentlig vann/kloakk
Parkett
Utsikt
Bredbåndstilknytning
Moderne
Rolig
Lademulighet
Balansert ventilasjon
Visning
mandag, 23. mars
16:30 – 17:30
Meld deg på visning eller kontakt eiendomsmegler for privatvisning.
Visning blir ikke gjennomført uten påmeldte.
Om boligen
Verdi &Partners har gleden av å kunne presentere en innbydende, delikat og stor familiebolig beliggende i et svært barnevennlig og trivelig nabolag på Sørbøfeltet i Sandnes kommune.
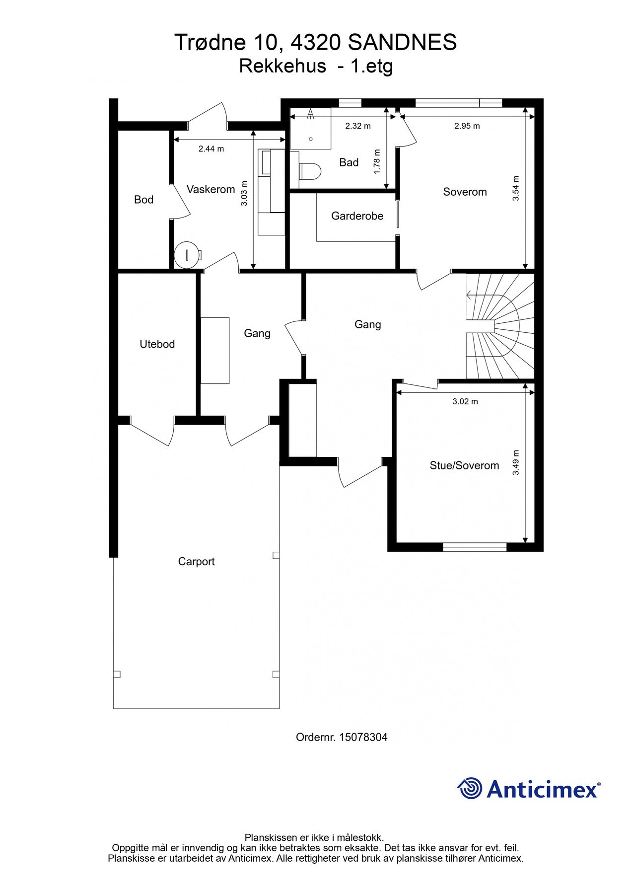
1.etg.: Gang, bod, separat vaskerom samt egen bi-inngang i etasjen. Det er to gode soverom hvorav ett har eget walk-in-closet og delikat bad med stemningsfulle spotter i tak. Det er utstrakt bruk av varme i gulvene i etasjen.
2.etg.: I tillegg til gjestetoalett og kontor i hovedetasjen har man stor og og god stue- og kjøkkenløsning. Det er god plass til både salong og spisestue i stuen samt utgang til meget trivelig innglasset balkong med tilhørende solrik utebalkong. Kjøkkenet har kjølehjørne, oppvaskmaskin, mikrobølgeovn og komfyr som medfølger handelen. Praktisk skyvedør skiller stuen fra kjøkkenet.
3.etg.: Gang, to gode soverom samt en stor og god loftstue med stor takhøyde. Helfliset bad med vannbåren gullvarme i gulv. Her har man installert boblebadekar med dusj.
El-billader
Sentralstøvsuger
1.etg.: Gang, bod, separat vaskerom samt egen bi-inngang i etasjen. Det er to gode soverom hvorav ett har eget walk-in-closet og delikat bad med stemningsfulle spotter i tak. Det er utstrakt bruk av varme i gulvene i etasjen.
2.etg.: I tillegg til gjestetoalett og kontor i hovedetasjen har man stor og og god stue- og kjøkkenløsning. Det er god plass til både salong og spisestue i stuen samt utgang til meget trivelig innglasset balkong med tilhørende solrik utebalkong. Kjøkkenet har kjølehjørne, oppvaskmaskin, mikrobølgeovn og komfyr som medfølger handelen. Praktisk skyvedør skiller stuen fra kjøkkenet.
3.etg.: Gang, to gode soverom samt en stor og god loftstue med stor takhøyde. Helfliset bad med vannbåren gullvarme i gulv. Her har man installert boblebadekar med dusj.
El-billader
Sentralstøvsuger
NB: Knappen for å vise hele beskrivelsen har kun en visuell effekt.
NB: Knappen for å vise hele beskrivelsen har kun en visuell effekt.
Salgsoppgaven beskriver vesentlig og lovpålagt informasjon om eiendommen
Se komplett salgsoppgaveNyttige lenker
Nærområdet
Verdi &Partners Sandnes
Verdien av lokalkunnskap
Annonseinformasjon
| FINN-kode | 455057661 |
|---|---|
| Sist endret | 13. mars 2026 16:56 |
| Referanse | 203250145 |
Annonsene kan være mangelfulle i forhold til lovpålagt opplysningsplikt. Før bindende avtale inngås oppfordres interessenter til å innhente komplett informasjon fra meglerforetaket, selger eller utleier.































