Bildegalleri

Velkommen til Møllesvingen 12!
Pent og innbydende rekkehus over to plan med flotte uteområder | Garasje med elbil lader | Bad fra 2020 | Barnevennlig
Prisantydning4 800 000 kr
Nøkkelinfo
- Boligtype
- Rekkehus
- Eieform
- Andel
- Soverom
- 2
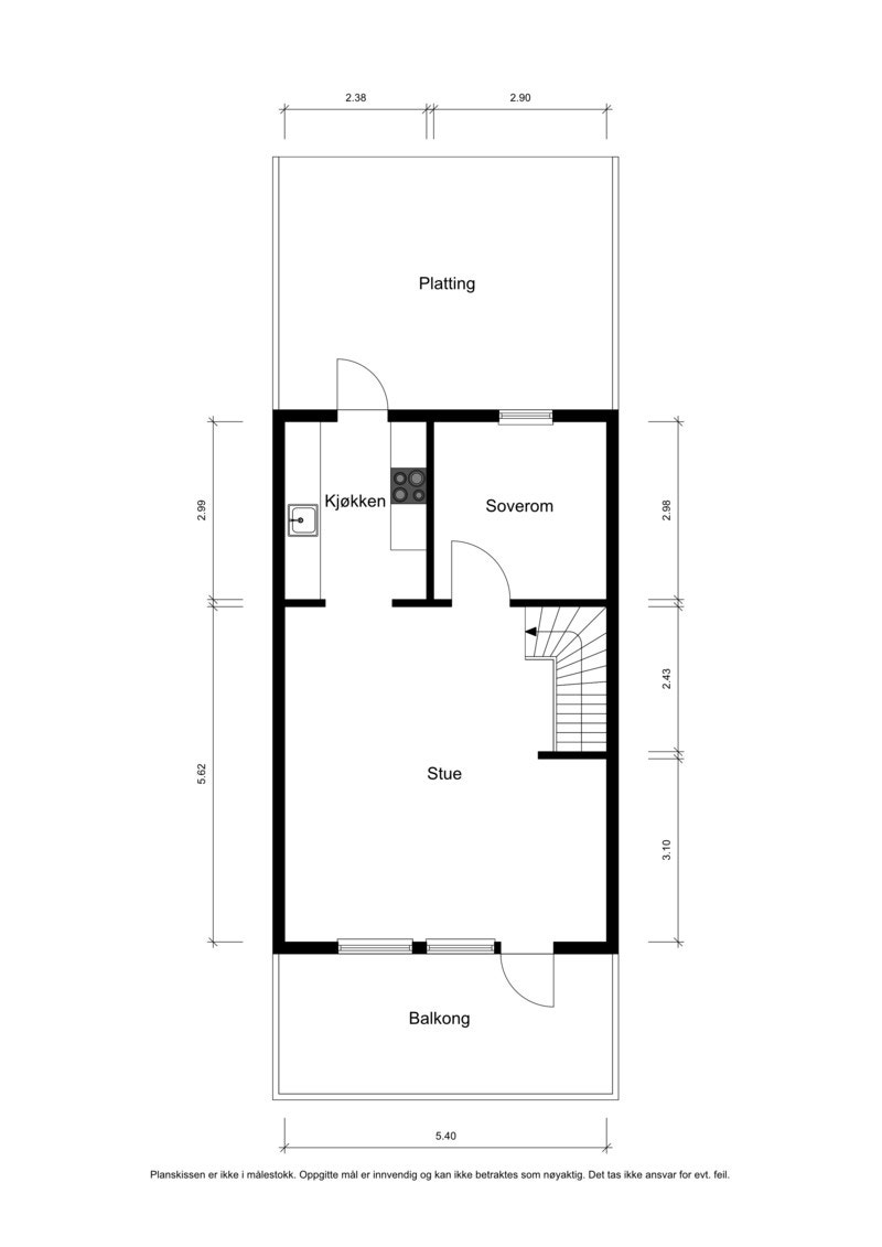
- Internt bruksareal
- 92 m² (BRA-i)
- Bruksareal
- 92 m²
- Balkong/Terrasse
- 54 m² (TBA)
- Byggeår
- 1976
- Rom
- 4
- Tomteareal
- 31 269 m² (eiet)
Fasiliteter
Balkong/Terrasse
Barnevennlig
Garasje/P-plass
Hage
Parkett
Peis/Ildsted
Turterreng
Lademulighet
Om boligen
Velkommen til Møllesvingen 12 og dette rekkehuset som strekker seg over to plan!
Oppfyll rekkehusdrømmen på populære og barnevennlige Kurland. Dette er en innbydende og hyggelig bolig som blant annet kan tilby flotte uteområder, en åpen stue- og kjøkkenløsning, samt et lekkert bad- og vaskerom oppgradert i 2020. Det medfølger en fast garasjeplass i felles rekke og borettslaget grenser til Kurland skole og barnehage, samtidig som det er kort vei til bussholdeplass med hyppige avganger. I tillegg har du Østmarka rett utenfor døra med flotte turmuligheter sommer som vinter.
Kort fortalt:
- Rekkehus over to plan
- Terrasse og balkong på totalt 54 m²
- Nærliggende garasje med hems og elbil lader
- Barnevennlig
- IN ordning på deler av fellesgjeld
- Skole og barnehage i umiddelbar nærhet
Oppfyll rekkehusdrømmen på populære og barnevennlige Kurland. Dette er en innbydende og hyggelig bolig som blant annet kan tilby flotte uteområder, en åpen stue- og kjøkkenløsning, samt et lekkert bad- og vaskerom oppgradert i 2020. Det medfølger en fast garasjeplass i felles rekke og borettslaget grenser til Kurland skole og barnehage, samtidig som det er kort vei til bussholdeplass med hyppige avganger. I tillegg har du Østmarka rett utenfor døra med flotte turmuligheter sommer som vinter.
Kort fortalt:
- Rekkehus over to plan
- Terrasse og balkong på totalt 54 m²
- Nærliggende garasje med hems og elbil lader
- Barnevennlig
- IN ordning på deler av fellesgjeld
- Skole og barnehage i umiddelbar nærhet
NB: Knappen for å vise hele beskrivelsen har kun en visuell effekt.
NB: Knappen for å vise hele beskrivelsen har kun en visuell effekt.
Salgsoppgaven beskriver vesentlig og lovpålagt informasjon om eiendommen
Se komplett salgsoppgaveNyttige lenker
Nærområdet
EiendomsMegler 1 Lørenskog
Vi loser deg trygt gjennom hele boligsalget
Annonseinformasjon
| FINN-kode | 455057376 |
|---|---|
| Sist endret | 13. mars 2026 13:20 |
| Referanse | 6029260238 |
Annonsene kan være mangelfulle i forhold til lovpålagt opplysningsplikt. Før bindende avtale inngås oppfordres interessenter til å innhente komplett informasjon fra meglerforetaket, selger eller utleier.








































