Bildegalleri

EiendomsMegler 1 v/ Thomas Fanebust presenterer Ellisivs gate 5. Foto: Eivind Dirdal
Madla
Enebolig med solvendt hage og utsikt | Attraktivt og meget barnevennlig område | Garasje | Modernisering kan påregnes
Prisantydning7 500 000 kr
Nøkkelinfo
- Boligtype
- Enebolig
- Eieform
- Eier (Selveier)
- Soverom
- 4
- Internt bruksareal
- 168 m² (BRA-i)
- Bruksareal
- 185 m²
- Eksternt bruksareal
- 17 m² (BRA-e)
- Balkong/Terrasse
- 65 m² (TBA)
- Byggeår
- 1966
- Energimerking
- Rom
- 5
- Tomteareal
- 643 m² (eiet)
Fasiliteter
Balkong/Terrasse
Barnevennlig
Garasje/P-plass
Hage
Parkett
Peis/Ildsted
Rolig
Sentralt
Utsikt
Turterreng
Om boligen
Klassisk og velholdt enebolig med meget attraktiv og barnevennlig beliggenhet på Madla.
Like ved nyrenoverte Madlamark skole, barnehager, turområder og aktivitetstilbud, samt Thon Senter Madla med det du trenger av servicetilbud.
Romslig, pent opparbeidet og solvendt tomt med luftig plassering og siktlinjer mot Madlatuå, Slåtthaug og Stokkavannet.
Boligen er tegnet av arkitekt Thorvald Solheim, oppført i 1966 og har kun hatt 1 eier.
Garasje, samt gårdsrom med plass til flere biler.
Modernisering etter eget ønske og behov kan påregnes.
Underetasje
BRA-i: Hall, 3 soverom, bad, toalettrom, bod, potetkjeller og vedbod.
BRA-e: Garasje
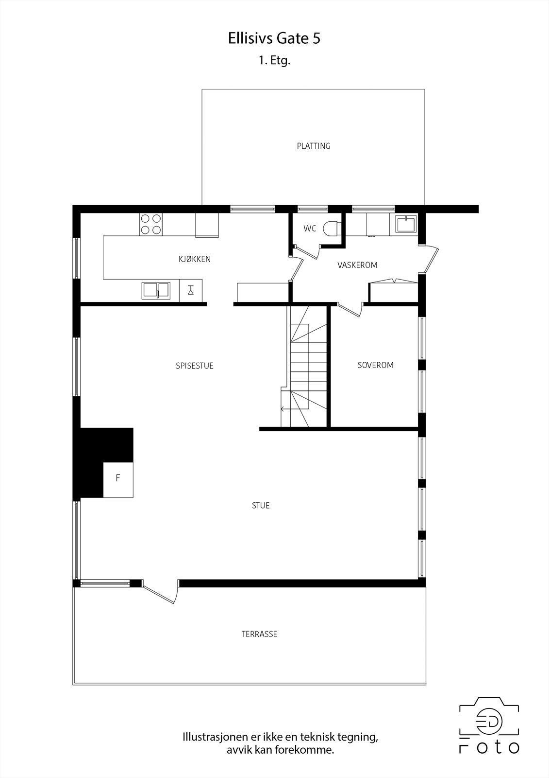
1. etasje
BRA-i: Stue, kjøkken, soverom, toalettrom og biinngang/ vaskerom.
Like ved nyrenoverte Madlamark skole, barnehager, turområder og aktivitetstilbud, samt Thon Senter Madla med det du trenger av servicetilbud.
Romslig, pent opparbeidet og solvendt tomt med luftig plassering og siktlinjer mot Madlatuå, Slåtthaug og Stokkavannet.
Boligen er tegnet av arkitekt Thorvald Solheim, oppført i 1966 og har kun hatt 1 eier.
Garasje, samt gårdsrom med plass til flere biler.
Modernisering etter eget ønske og behov kan påregnes.
Underetasje
BRA-i: Hall, 3 soverom, bad, toalettrom, bod, potetkjeller og vedbod.
BRA-e: Garasje
1. etasje
BRA-i: Stue, kjøkken, soverom, toalettrom og biinngang/ vaskerom.
NB: Knappen for å vise hele beskrivelsen har kun en visuell effekt.
NB: Knappen for å vise hele beskrivelsen har kun en visuell effekt.
Salgsoppgaven beskriver vesentlig og lovpålagt informasjon om eiendommen
Se komplett salgsoppgaveNyttige lenker
Nærområdet
EiendomsMegler 1 Madla
En del av Sparebank 1 Sør-Norge
Annonseinformasjon
| FINN-kode | 455056416 |
|---|---|
| Sist endret | 13. mars 2026 14:42 |
| Referanse | 2205260077 |
Annonsene kan være mangelfulle i forhold til lovpålagt opplysningsplikt. Før bindende avtale inngås oppfordres interessenter til å innhente komplett informasjon fra meglerforetaket, selger eller utleier.

















































