Bildegalleri

Velkommen til en flott og innholdsrik enebolig med godkjent utleiedel i sokkel.
Havstein
Flott og innholdsrik enebolig i etterspurt område. Egen utleiedel i sokkel. Solrik hage og terrasse. Garasje. Pen utsikt
Prisantydning7 490 000 kr
Nøkkelinfo
- Boligtype
- Enebolig
- Eieform
- Eier (Selveier)
- Soverom
- 4
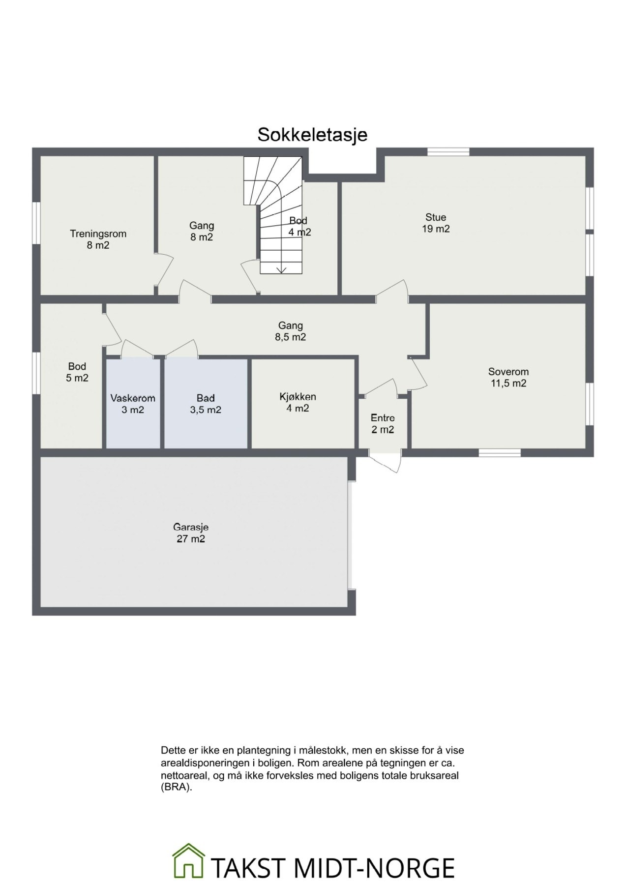
- Internt bruksareal
- 180 m² (BRA-i)
- Bruksareal
- 207 m²
- Eksternt bruksareal
- 27 m² (BRA-e)
- Balkong/Terrasse
- 63 m² (TBA)
- Byggeår
- 1972
- Energimerking
- E - Oransje
- Tomteareal
- 580 m² (eiet)
Fasiliteter
Barnevennlig
Balkong/Terrasse
Garasje/P-plass
Offentlig vann/kloakk
Peis/Ildsted
Turterreng
Utsikt
Sentralt
Moderne
Rolig
Lademulighet
Visning
torsdag, 19. mars
16:30 – 17:30
Velkommen til visning!
Alle våre visninger har påmelding. På denne måten sikrer vi at megler har god oversikt og tid til å imøtekomme alle interessenter på beste måte. Dette er veldig verdifullt for boligkjøpere og for oss. Det er enkelt å melde seg på, og du kan like enkelt melde deg av. Kontakt også gjerne megler i forkant av visning dersom du har spørsmål.
Om boligen
Velkommen til en flott enebolig med etterspurt beliggenhet. Boligen ligger i et familievennlig strøk like ved grøntområdene rundt Havstein kirke. Trygg skolevei gjennom etablert eneboligstrøk til Byåsen barneskole. Nabolaget er uten gjennomgangstrafikk, og består av folk i alle aldre. Boligen er svært innholdsrik, og er jevnt vedlikeholdt med gode oppgraderinger både innvendig og utvendig.
- Velholdt hage med plen og beplantning.
- Stor terrasse med gode solforhold.
- Godkjent utleiedel som fritt kan leies ut.
- Lyst og pent kjøkken med god lagring.
- To flotte, flislagte bad i tillegg til vaskerom.
- Store vinduer med utsikt mot byen.
- Fire soverom i tillegg til ekstra stue i sokkel.
- Stemningsfull vedovn.
- Treningsrom.
- Garasje og mulighet for å lade elbil.
- God plass for biloppstilling på tomt.
- Familievennlig beliggenhet uten gjennomgangstrafikk.
- Nærhet til golfbane og grøntområder.
- Godt kollektivtilbud med buss og trikk.
- Nærhet til dagligvare.
- Kort vei til Bymarka.
- Velholdt hage med plen og beplantning.
- Stor terrasse med gode solforhold.
- Godkjent utleiedel som fritt kan leies ut.
- Lyst og pent kjøkken med god lagring.
- To flotte, flislagte bad i tillegg til vaskerom.
- Store vinduer med utsikt mot byen.
- Fire soverom i tillegg til ekstra stue i sokkel.
- Stemningsfull vedovn.
- Treningsrom.
- Garasje og mulighet for å lade elbil.
- God plass for biloppstilling på tomt.
- Familievennlig beliggenhet uten gjennomgangstrafikk.
- Nærhet til golfbane og grøntområder.
- Godt kollektivtilbud med buss og trikk.
- Nærhet til dagligvare.
- Kort vei til Bymarka.
NB: Knappen for å vise hele beskrivelsen har kun en visuell effekt.
NB: Knappen for å vise hele beskrivelsen har kun en visuell effekt.
Salgsoppgaven beskriver vesentlig og lovpålagt informasjon om eiendommen
Se komplett salgsoppgaveNyttige lenker
Nærområdet

PrivatMegleren Trondheim
Kun det beste på dine vegne
Annonseinformasjon
| FINN-kode | 454986102 |
|---|---|
| Sist endret | 12. mars 2026 21:07 |
| Referanse | 114260061 |
Annonsene kan være mangelfulle i forhold til lovpålagt opplysningsplikt. Før bindende avtale inngås oppfordres interessenter til å innhente komplett informasjon fra meglerforetaket, selger eller utleier.
















































