Bildegalleri

Monica Mørk Aase i EiendomsMegler1 Jærmegleren presenterer Kaievegen 14 på Varhaug.
Varhaug
Stor familiebolig (BRA-I 413 m²). Innredet over tre plan. Romslig tomt.
Prisantydning5 690 000 kr
Nøkkelinfo
- Boligtype
- Enebolig
- Eieform
- Eier (Selveier)
- Soverom
- 4
- Internt bruksareal
- 413 m² (BRA-i)
- Bruksareal
- 427 m²
- Eksternt bruksareal
- 14 m² (BRA-e)
- Etasje
- 3
- Byggeår
- 1984
- Energimerking
- Tomteareal
- 854 m² (eiet)
Fasiliteter
Balkong/Terrasse
Barnevennlig
Garasje/P-plass
Hage
Kjæledyr tillatt
Offentlig vann/kloakk
Visning
tirsdag, 24. mars
16:00 – 17:00
Ønsker du å delta på visningen ber vi deg melde deg på slik at vi vet at du kommer. Da kan vi bistå alle best mulig og gi deg tiden du trenger på visningen. Kontakt gjerne megler før visning hvis du har spørsmål. Visningen avholdes bare dersom det er påmeldte. Hvis det ikke er oppsatt visningstidspunkt eller tidspunkt ikke passer, kontakt megler.
VisningspåmeldingOm boligen
Velkommen til Kaievegen 14!
Enebolig med kjekk beliggenhet i et populært og etablert boligområde, her er det gåavstand til det meste Varhaug har å tilby.
- Større enebolig med et innvendig areal på 413 kvm.
- Innredet over tre plan, innredning i kjelleretasjen er ikke byggesøkt.
- Gjennomgående store rom.
- Boligen har for det meste standard fra byggeår 1984, oppgradering må påregnes.
- Nytt tak 2017.
- Carport.
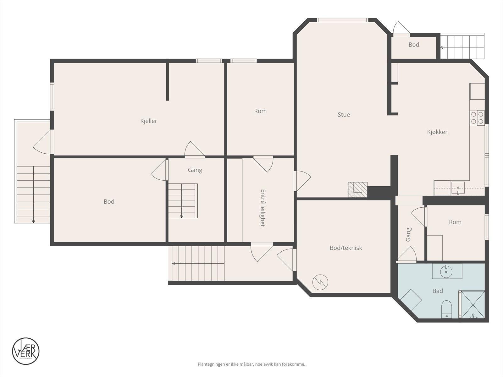
Kjeller BRA-i : Teknisk rom, matbod, kjellerrom, trapperom. Entré/gang ,2 rom, stue , kjøkken, bad/vaskerom (innredning av kjeller er ikke godkjent/byggesøkt)
1. etasje BRA-i : Entré/hall, kjøkken, vaskerom, stue, treningsstue, soverom, garderobe, bad, toalettrom
2 etasje BRA-i : Loftstue, 3 soverom, bod/større kott, bad, gang, uisolert utestue (tidligere altan
Velkommen!
Enebolig med kjekk beliggenhet i et populært og etablert boligområde, her er det gåavstand til det meste Varhaug har å tilby.
- Større enebolig med et innvendig areal på 413 kvm.
- Innredet over tre plan, innredning i kjelleretasjen er ikke byggesøkt.
- Gjennomgående store rom.
- Boligen har for det meste standard fra byggeår 1984, oppgradering må påregnes.
- Nytt tak 2017.
- Carport.
Kjeller BRA-i : Teknisk rom, matbod, kjellerrom, trapperom. Entré/gang ,2 rom, stue , kjøkken, bad/vaskerom (innredning av kjeller er ikke godkjent/byggesøkt)
1. etasje BRA-i : Entré/hall, kjøkken, vaskerom, stue, treningsstue, soverom, garderobe, bad, toalettrom
2 etasje BRA-i : Loftstue, 3 soverom, bod/større kott, bad, gang, uisolert utestue (tidligere altan
Velkommen!
NB: Knappen for å vise hele beskrivelsen har kun en visuell effekt.
NB: Knappen for å vise hele beskrivelsen har kun en visuell effekt.
Salgsoppgaven beskriver vesentlig og lovpålagt informasjon om eiendommen
Se komplett salgsoppgaveNyttige lenker
Nærområdet
EiendomsMegler 1 Jærmegleren
En del av Sparebank 1 Sør-Norge
Annonseinformasjon
| FINN-kode | 454962137 |
|---|---|
| Sist endret | 13. mars 2026 12:30 |
| Referanse | 2405260015 |
Annonsene kan være mangelfulle i forhold til lovpålagt opplysningsplikt. Før bindende avtale inngås oppfordres interessenter til å innhente komplett informasjon fra meglerforetaket, selger eller utleier.

































































