Bildegalleri

Nordvik Bolig v/Thomas Birkeland har gleden av å presentere Stokkaveien 67 ! Foto: Per Bendiksen.
Solgt
Stokka/Eiganes
Klassisk villa med garasje og sentral beliggenhet - stort potensial
Prisantydning5 790 000 kr
Nøkkelinfo
- Boligtype
- Enebolig
- Eieform
- Eier (Selveier)
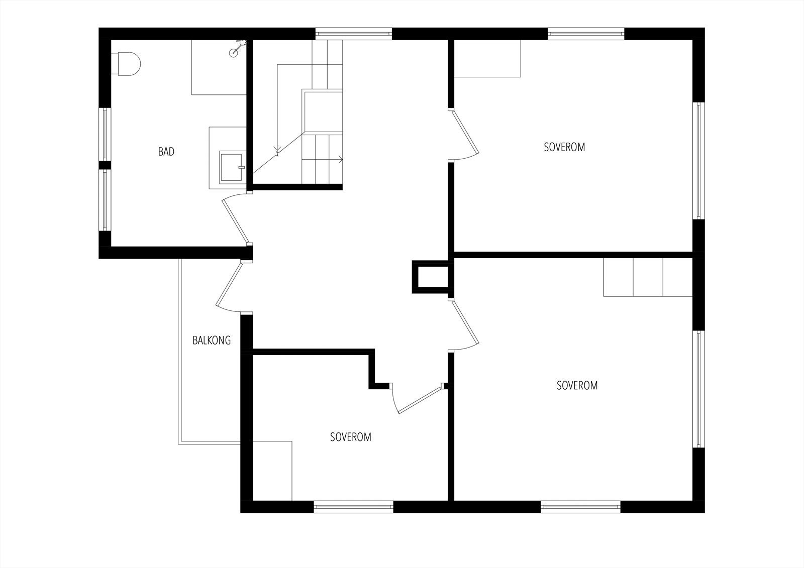
- Soverom
- 4
- Internt bruksareal
- 148 m² (BRA-i)
- Bruksareal
- 215 m²
- Eksternt bruksareal
- 67 m² (BRA-e)
- Balkong/Terrasse
- 46 m² (TBA)
- Etasje
- 4
- Byggeår
- 1936
- Energimerking
- Tomteareal
- 238 m² (eiet)
Fasiliteter
Balkong/Terrasse
Garasje/P-plass
Hage
Offentlig vann/kloakk
Parkett
Peis/Ildsted
Sentralt
Turterreng
Lademulighet
Om boligen
Eiendommen ligger i et etablert boligområde med sentral beliggenhet og kort avstand til Stavanger sentrum. I nærområdet finner du dagligvarebutikker, skoler, barnehager og gode kollektivforbindelser. Området byr også på fine tur- og rekreasjonsmuligheter.
- Fire soverom
- Funksjonell planløsning over flere etasjer
- Romslig stue
- Store vindusflater som gir godt lysinnslipp
- Separat vaskerom med egen inngang
- Gode solforhold
- Garasje med elbillader
- Kjeller og loft med gode oppbevaringsmuligheter
- Nordvestvendt hage/terrasseplatting
- Eiendom med stort potensial behov for utvendig vedlikehold og innvendig modernisering
NB: Knappen for å vise hele beskrivelsen har kun en visuell effekt.
NB: Knappen for å vise hele beskrivelsen har kun en visuell effekt.
Salgsoppgaven beskriver vesentlig og lovpålagt informasjon om eiendommen
Se komplett salgsoppgaveNyttige lenker
Nærområdet
Nordvik Stavanger
Vi vet hva det er verdt
Annonseinformasjon
| FINN-kode | 454961921 |
|---|---|
| Sist endret | 18. mars 2026 12:02 |
| Referanse | 43-0264/25 |
Annonsene kan være mangelfulle i forhold til lovpålagt opplysningsplikt. Før bindende avtale inngås oppfordres interessenter til å innhente komplett informasjon fra meglerforetaket, selger eller utleier.






































