Bildegalleri

Velkommen til Vitaminveien 26. Fotograf: Kenneth Willassen.
Strøken og lekker 4-roms med høy standard - Garasje m/el - Takhøyde på 3,7m - God planløsning - Akonto v.vann inkl.
Prisantydning8 500 000 kr
Nøkkelinfo
- Boligtype
- Leilighet
- Eieform
- Eier (Selveier)
- Soverom
- 3
- Internt bruksareal
- 74 m² (BRA-i)
- Bruksareal
- 79 m²
- Eksternt bruksareal
- 5 m² (BRA-e)
- Balkong/Terrasse
- 12 m² (TBA)
- Etasje
- 1
- Byggeår
- 2020
- Energimerking
- Rom
- 4
- Tomteareal
- 7 653 m² (eiet)
Fasiliteter
Balkong/Terrasse
Barnevennlig
Bredbåndstilknytning
Garasje/P-plass
Heis
Kjæledyr tillatt
Kabel-TV
Offentlig vann/kloakk
Parkett
Rolig
Sentralt
Lademulighet
Balansert ventilasjon
Om boligen
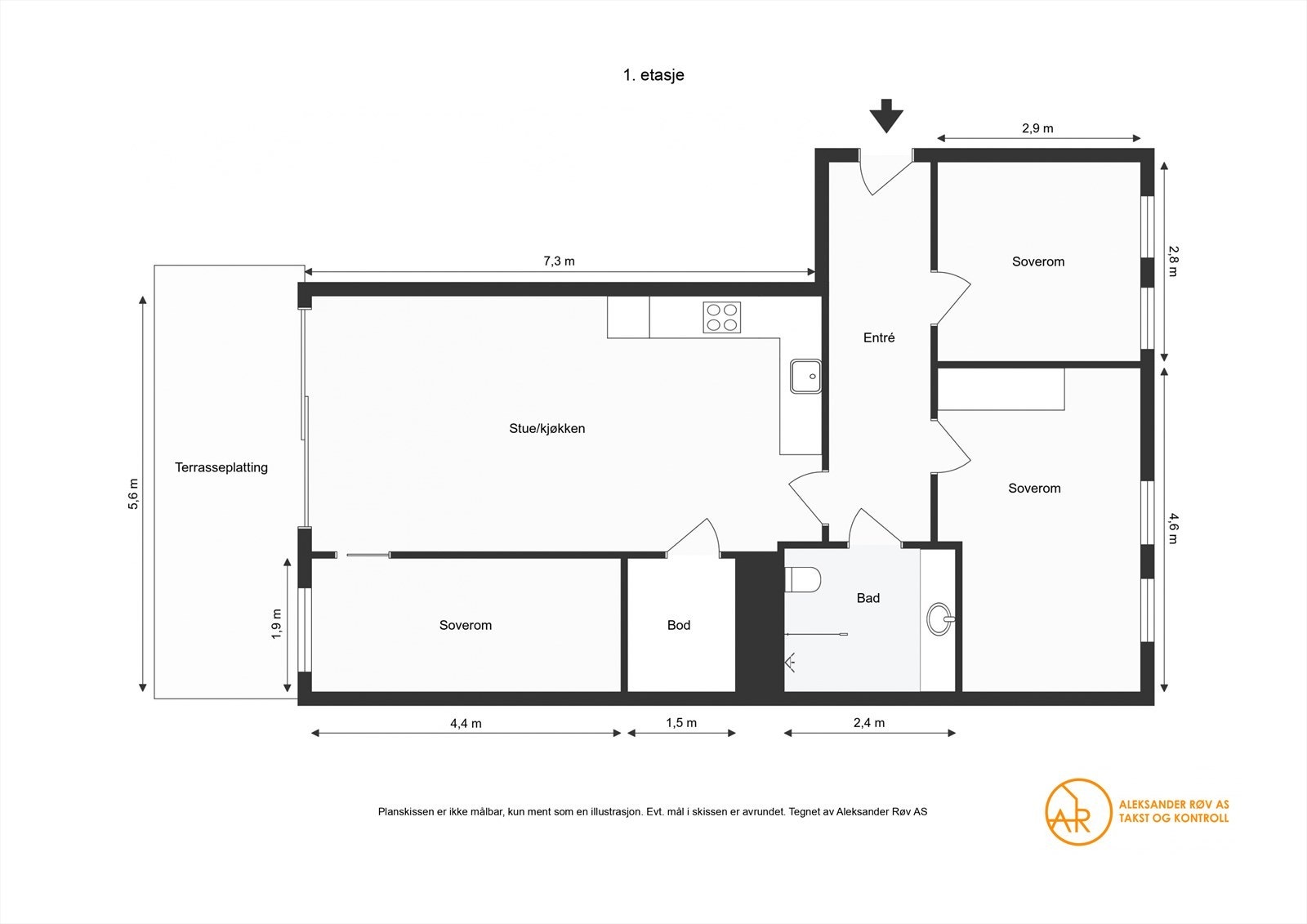
Velkommen til Vitaminveien 26 - Her får du en strøken, delikat og lekker 4-roms med sentral og attraktiv beliggenhet på Storo. Leiligheten er gjennomgående med åpen stue- og kjøkkenløsning, tre gode soverom, pent flislagt bad, og solrik uteplass. Halve leiligheten som vender fra bakgården oppleves som en 2. etasje. Flytt rett inn i et nyetablert nabolag på Storo, grip sjansen med blant annet disse fordelene.
Høydepunkter:
-Sjenerøs takhøyde på hele 3,7m i stue/kjøkken og alle soverom
-Lys og luftig atmosfære
-Gjennomgående
-Delikat Sigdal kjøkken m/alt integrert
-Garasjeplass m/el
-Sportsbod i kjeller
-Innvendig bod
-Akonto varmtvann og internett inkl.
-Solrik sørvendt terrasse på hele 12 m²
-Utvendig solskjerming på flere vinduer
-Balansert ventilasjon
-1-stavs eikeparkett
Høydepunkter:
-Sjenerøs takhøyde på hele 3,7m i stue/kjøkken og alle soverom
-Lys og luftig atmosfære
-Gjennomgående
-Delikat Sigdal kjøkken m/alt integrert
-Garasjeplass m/el
-Sportsbod i kjeller
-Innvendig bod
-Akonto varmtvann og internett inkl.
-Solrik sørvendt terrasse på hele 12 m²
-Utvendig solskjerming på flere vinduer
-Balansert ventilasjon
-1-stavs eikeparkett
NB: Knappen for å vise hele beskrivelsen har kun en visuell effekt.
NB: Knappen for å vise hele beskrivelsen har kun en visuell effekt.
Salgsoppgaven beskriver vesentlig og lovpålagt informasjon om eiendommen
Se komplett salgsoppgaveNærområdet
Aktiv Gamle Oslo/Bjørvika
Annonseinformasjon
| FINN-kode | 454955384 |
|---|---|
| Sist endret | 16. mars 2026 15:17 |
| Referanse | 1002260038 |
Annonsene kan være mangelfulle i forhold til lovpålagt opplysningsplikt. Før bindende avtale inngås oppfordres interessenter til å innhente komplett informasjon fra meglerforetaket, selger eller utleier.






























































