Bildegalleri

Velkommen til Nordre Toppe 3
Mjølkeråen
Flott 2-roms med god planløsning, varmepumpe & innglasset altan på 14 kvm. Buss & butikk rett utenfor døren. Heis.
Prisantydning2 090 000 kr
Nøkkelinfo
- Boligtype
- Leilighet
- Eieform
- Andel
- Soverom
- 1
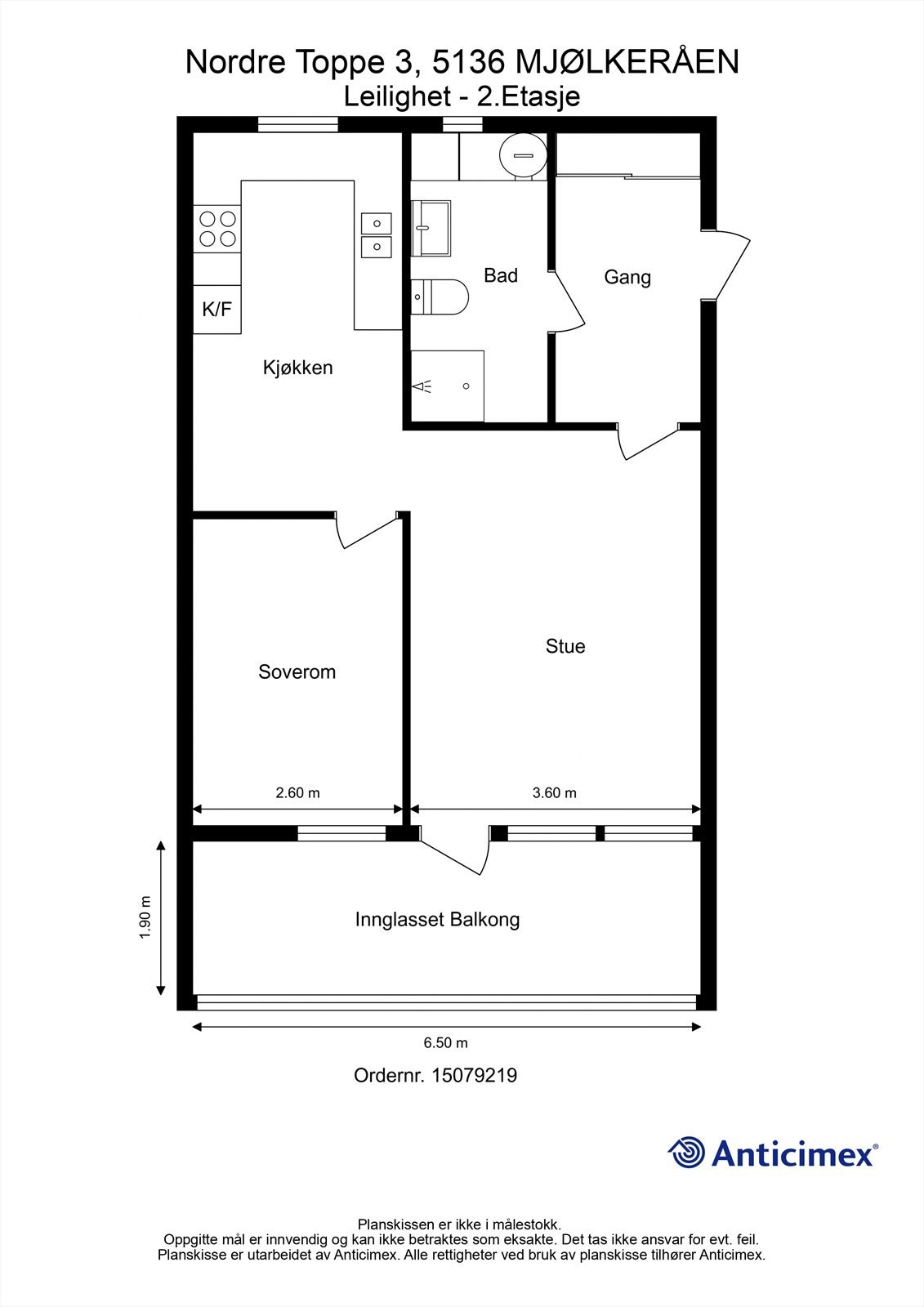
- Internt bruksareal
- 55 m² (BRA-i)
- Bruksareal
- 73 m²
- Eksternt bruksareal
- 4 m² (BRA-e)
- Innglasset balkong
- 14 m² (BRA-b)
- Etasje
- 2
- Byggeår
- 1973
- Energimerking
- D - Gul
- Rom
- 2
- Tomteareal
- 110 745 m² (eiet)
Fasiliteter
Balkong/Terrasse
Bredbåndstilknytning
Garasje/P-plass
Heis
Kjæledyr tillatt
Kabel-TV
Offentlig vann/kloakk
Sentralt
Vaktmester-/vektertjeneste
Lademulighet
Visning
søndag, 22. mars
13:00 – 14:00
For å delta på visning, ber vi om at du melder deg på. Da sikrer vi at du får nødvendig informasjon og at det er satt av tilstrekkelig med tid. Kontakt megler dersom annet tidspunkt ønskes. Husk å lese salgsoppgaven før visningen, så du stiller forberedt.
Ønsker du kun å bli holdt orientert, kan du fra eiendommens hjemmeside få varsel om solgtpris, eller kontakte megler.
VisningspåmeldingOm boligen
Velkommen til Nordre Toppe 3 presentert av Krogsveen v/ Christer Solvik.
Leiligheten har en praktisk og arealeffektiv planløsning og var pusset opp i 2022 med moderne overflater, nye gulv og spotter i tak i stue, gang og kjøkken. Her bor man i rolige og naturskjønne omgivelser samtidig som man har kort avstand til alt av fasiliteter og servicetilbud.
Kort fortalt:
- Ny og stor innglasset altan på 14 kvm
- Passer utmerket som førstegangskjøp og for eldre
- Varmepumpe fra 2024
- Mulighet for parkering og elbil-lading
- Busstopp med hyppige avganger og butikk like ved
- 6 minutter med bil til Åsane Storsenter og Horisont
- Heis i bygget
Vekommen til visning!
Leiligheten har en praktisk og arealeffektiv planløsning og var pusset opp i 2022 med moderne overflater, nye gulv og spotter i tak i stue, gang og kjøkken. Her bor man i rolige og naturskjønne omgivelser samtidig som man har kort avstand til alt av fasiliteter og servicetilbud.
Kort fortalt:
- Ny og stor innglasset altan på 14 kvm
- Passer utmerket som førstegangskjøp og for eldre
- Varmepumpe fra 2024
- Mulighet for parkering og elbil-lading
- Busstopp med hyppige avganger og butikk like ved
- 6 minutter med bil til Åsane Storsenter og Horisont
- Heis i bygget
Vekommen til visning!
NB: Knappen for å vise hele beskrivelsen har kun en visuell effekt.
NB: Knappen for å vise hele beskrivelsen har kun en visuell effekt.
Salgsoppgaven beskriver vesentlig og lovpålagt informasjon om eiendommen
Se komplett salgsoppgaveNyttige lenker
Nærområdet
Krogsveen Åsane
Verdien av en god megler.
Annonseinformasjon
| FINN-kode | 454945096 |
|---|---|
| Sist endret | 13. mars 2026 07:41 |
| Referanse | KR74.2610 |
Annonsene kan være mangelfulle i forhold til lovpålagt opplysningsplikt. Før bindende avtale inngås oppfordres interessenter til å innhente komplett informasjon fra meglerforetaket, selger eller utleier.



















