Bildegalleri

Velkommen til Steingrims vei 5 - Unik og innholdsrik familiebolig over to plan i horisontaldelt tomannsbolig
BEKKELAGSHØGDA/BRANNFJELL
Stor del av tomannsbolig med direkte tilgang til frodig hage - 13 m² solrik veranda - Hybel m/egen inngang - P-plasser
Prisantydning12 990 000 kr
Nøkkelinfo
- Boligtype
- Tomannsbolig
- Eieform
- Eier (Selveier)
- Soverom
- 4
- Internt bruksareal
- 183 m² (BRA-i)
- Bruksareal
- 197 m²
- Eksternt bruksareal
- 14 m² (BRA-e)
- Balkong/Terrasse
- 13 m² (TBA)
- Byggeår
- 1928
- Energimerking
- Rom
- 5
- Tomteareal
- 988 m² (eiet)
Fasiliteter
Aircondition
Balkong/Terrasse
Barnevennlig
Bredbåndstilknytning
Garasje/P-plass
Hage
Kjæledyr tillatt
Kabel-TV
Offentlig vann/kloakk
Parkett
Peis/Ildsted
Rolig
Sentralt
Utvidelsesmuligheter
Lademulighet
Visning
søndag, 22. mars
12:00 – 13:00
mandag, 23. mars
19:00 – 20:00
Visningen har obligatorisk påmelding.
Kravet om påmelding har vi for å kunne gi deg og andre visningsdeltakere en best mulig opplevelse og service knyttet til gjennomføring av visningen. Velkommen!
VisningspåmeldingOm boligen
Unik og innholdsrik familiebolig over to plan i horisontaldelt tomannsbolig. Hybel med egen inngang i kjeller. Solrik delvis innglasset veranda på 13m² og stor frodig inngjerdet hage med mange soner. Ettertraktet beliggenhet i et svært barnevennlig område som sogner til Bekkelaget skole.
Verdt å nevne
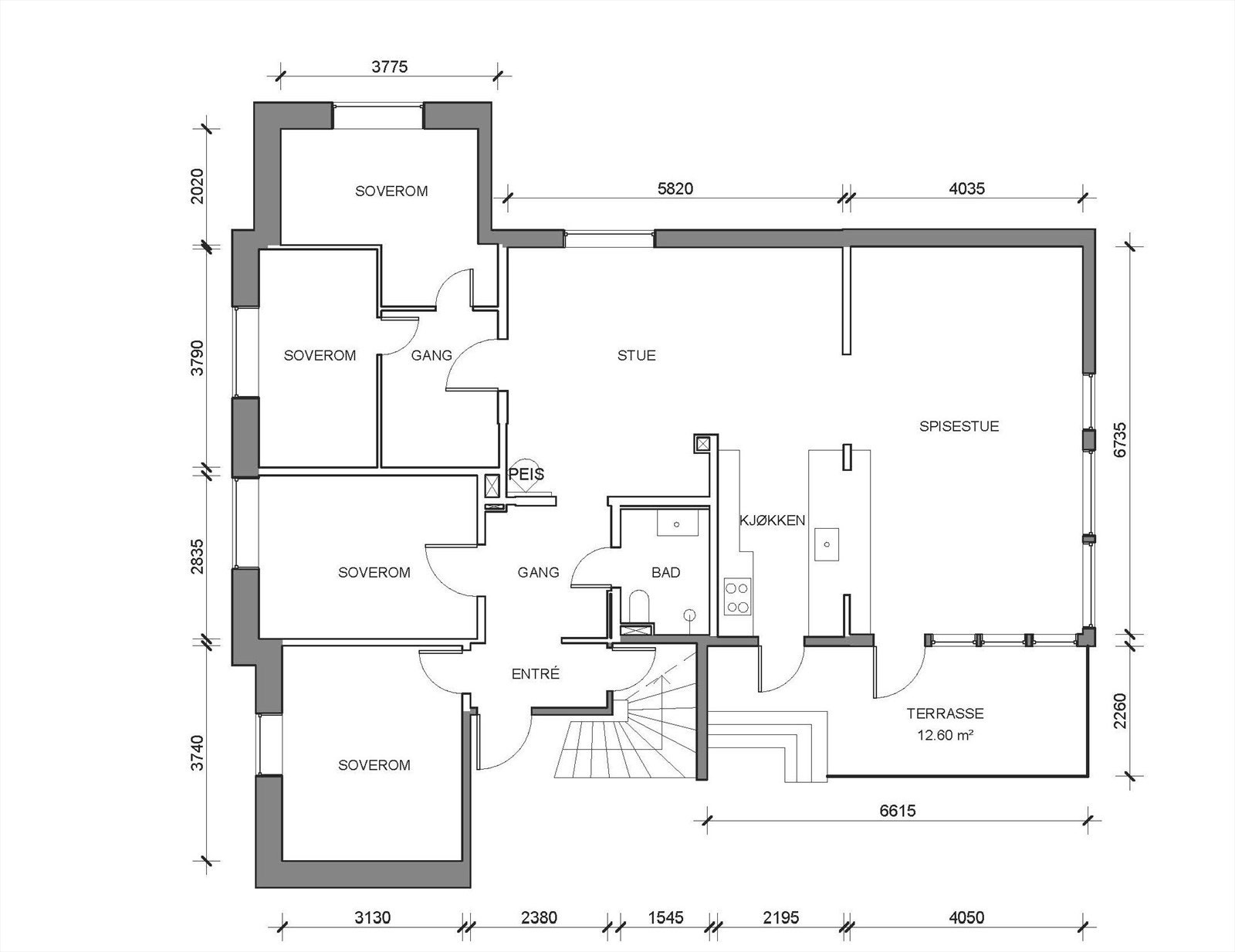
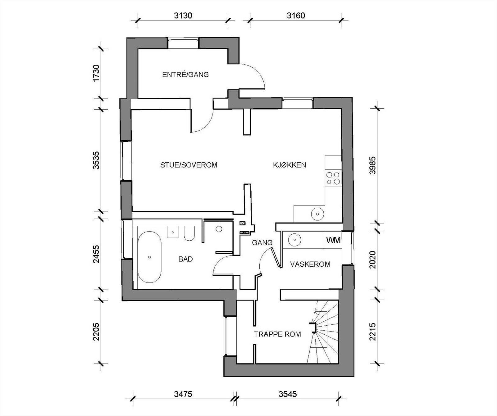
- Totalt 4 soverom og 2 bad. Separat vaskerom
- Hybel m/egen kjellerinngang. Utleid de siste år for kr 13 200,- pr mnd.
- Detaljer som moderne peis, luft til luft varmepumpe m/aircondition, samt vannbåren gulvvarme i deler av kjeller
- Fantastisk solrik hage med frukttrær og mange soner
- Barnevennlig inngjerdet eiendom. Bekkelaget skolekrets
- Isolert utebod m/strøm og varme. Sjarmerende dukkehus
- Godt med lagringsplass både ute og inne
- Flere p-plasser. El-bil lader
- Kort vei til T-bane
Verdt å nevne
- Totalt 4 soverom og 2 bad. Separat vaskerom
- Hybel m/egen kjellerinngang. Utleid de siste år for kr 13 200,- pr mnd.
- Detaljer som moderne peis, luft til luft varmepumpe m/aircondition, samt vannbåren gulvvarme i deler av kjeller
- Fantastisk solrik hage med frukttrær og mange soner
- Barnevennlig inngjerdet eiendom. Bekkelaget skolekrets
- Isolert utebod m/strøm og varme. Sjarmerende dukkehus
- Godt med lagringsplass både ute og inne
- Flere p-plasser. El-bil lader
- Kort vei til T-bane
NB: Knappen for å vise hele beskrivelsen har kun en visuell effekt.
NB: Knappen for å vise hele beskrivelsen har kun en visuell effekt.
Salgsoppgaven beskriver vesentlig og lovpålagt informasjon om eiendommen
Se komplett salgsoppgaveNærområdet
Sem & Johnsen
Boliger utenom det vanlige
Annonseinformasjon
| FINN-kode | 454939859 |
|---|---|
| Sist endret | 16. mars 2026 13:34 |
| Referanse | 20-26-0399 |
Annonsene kan være mangelfulle i forhold til lovpålagt opplysningsplikt. Før bindende avtale inngås oppfordres interessenter til å innhente komplett informasjon fra meglerforetaket, selger eller utleier.







































