Bildegalleri

Velkommen til Kvernhuslia 2 A!
Solemdalen
Enebolig over to plan i Solemdalen - Pent opparbeidet tomt - Parkering i dobbelgarasje
Prisantydning2 750 000 kr
Nøkkelinfo
- Boligtype
- Enebolig
- Eieform
- Eier (Selveier)
- Soverom
- 2
- Internt bruksareal
- 131 m² (BRA-i)
- Bruksareal
- 198 m²
- Eksternt bruksareal
- 67 m² (BRA-e)
- Balkong/Terrasse
- 78 m² (TBA)
- Byggeår
- 1984
- Energimerking
- E - Oransje
- Rom
- 3
- Tomteareal
- 983 m² (eiet)
Fasiliteter
Barnevennlig
Balkong/Terrasse
Garasje/P-plass
Peis/Ildsted
Turterreng
Utsikt
Rolig
Visning
tirsdag, 24. mars
16:30 – 17:30
Våre visninger har påmelding. Dette gjør vi for å kunne yte bedre service for våre kunder. Verdifullt for boligkjøper og for oss. Vi anbefaler at salgsoppgaven lastes ned digitalt før visning, og ring oss gjerne på forhånd for spørsmål om boligen. Passer ikke angitt tidspunkt, ta kontakt så finner vi en løsning. Skulle det mot formodning ikke være påmeldte til angitt visningstidspunkt vil ikke visning bli gjennomført.
Om boligen
Velkommen til Kvernhuslia 2 A!
Dette er en enebolig over to plan i Solemdalen på Skåla. Boligen har bl.a. stue med vedovn og utgang til romslig, delvis overbygd veranda med flott utsikt over landskapet. Tomten er opparbeidet med et pent uteområde bestående av plen, beplantning og ulike busker og trær. Asfalterte kjørearealer og parkering i dobbelgarasje.
Innhold
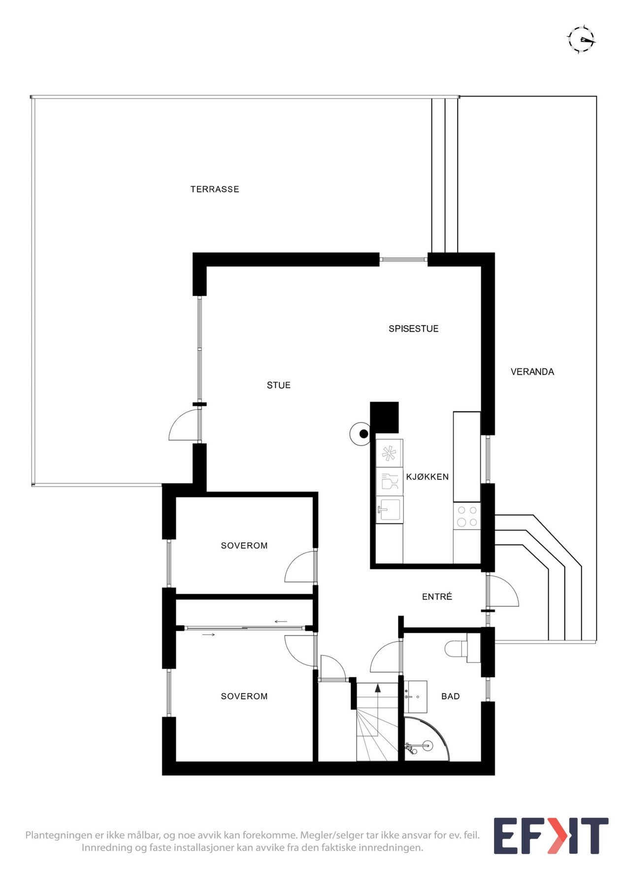
1. etasje: Stue, 2 soverom, gang, bad, kjøkken, entrè.
Kjeller: 2 boder, gang, soverom (ikke godkjent), vaskerom/bad, kjellerstue (ikke godkjent).
Beliggenhet
Eiendommen ligger i et etablert boligområde på Skåla i Molde kommune. Området er barnevennlig og rolig, med kort avstand til barnehage, skole og daglige servicetilbud. Det er gode tur- og rekreasjonsmuligheter i nærområdet, samt tilgang til
kollektivtransport i rimelig avstand.
Velkommen til visning!
Dette er en enebolig over to plan i Solemdalen på Skåla. Boligen har bl.a. stue med vedovn og utgang til romslig, delvis overbygd veranda med flott utsikt over landskapet. Tomten er opparbeidet med et pent uteområde bestående av plen, beplantning og ulike busker og trær. Asfalterte kjørearealer og parkering i dobbelgarasje.
Innhold
1. etasje: Stue, 2 soverom, gang, bad, kjøkken, entrè.
Kjeller: 2 boder, gang, soverom (ikke godkjent), vaskerom/bad, kjellerstue (ikke godkjent).
Beliggenhet
Eiendommen ligger i et etablert boligområde på Skåla i Molde kommune. Området er barnevennlig og rolig, med kort avstand til barnehage, skole og daglige servicetilbud. Det er gode tur- og rekreasjonsmuligheter i nærområdet, samt tilgang til
kollektivtransport i rimelig avstand.
Velkommen til visning!
NB: Knappen for å vise hele beskrivelsen har kun en visuell effekt.
NB: Knappen for å vise hele beskrivelsen har kun en visuell effekt.
Salgsoppgaven beskriver vesentlig og lovpålagt informasjon om eiendommen
Se komplett salgsoppgaveNyttige lenker
Nærområdet
EiendomsMegler 1 Molde
Vi loser deg trygt gjennom hele boligsalget
Annonseinformasjon
| FINN-kode | 454935292 |
|---|---|
| Sist endret | 13. mars 2026 17:18 |
| Referanse | 13260047 |
Annonsene kan være mangelfulle i forhold til lovpålagt opplysningsplikt. Før bindende avtale inngås oppfordres interessenter til å innhente komplett informasjon fra meglerforetaket, selger eller utleier.














































