Bildegalleri

EiendomsMegler1 v/Carina Myhre presenterer Maribakkane 18! Foto: Inbovi
Bakkane
Komplett familiebolig - Dobbel garasje - Nydelige uteplasser - Sentralt i attraktiv boområde
Prisantydning3 890 000 kr
Nøkkelinfo
- Boligtype
- Enebolig
- Eieform
- Eier (Selveier)
- Soverom
- 4
- Internt bruksareal
- 209 m² (BRA-i)
- Bruksareal
- 259 m²
- Eksternt bruksareal
- 50 m² (BRA-e)
- Balkong/Terrasse
- 48 m² (TBA)
- Byggeår
- 1930
- Energimerking
- Tomteareal
- 1 363 m² (eiet)
Fasiliteter
Balkong/Terrasse
Barnevennlig
Bredbåndstilknytning
Garasje/P-plass
Hage
Peis/Ildsted
Rolig
Sentralt
Utsikt
Turterreng
Visning
Ønsker du å delta på visning så ber vi om at du melder deg på slik at vi vet at du kommer og slik at vi kan orientere deg om bud. Visninger hvor det ikke er påmeldte på forhånd vil ikke bli avholdt.
VisningspåmeldingOm boligen
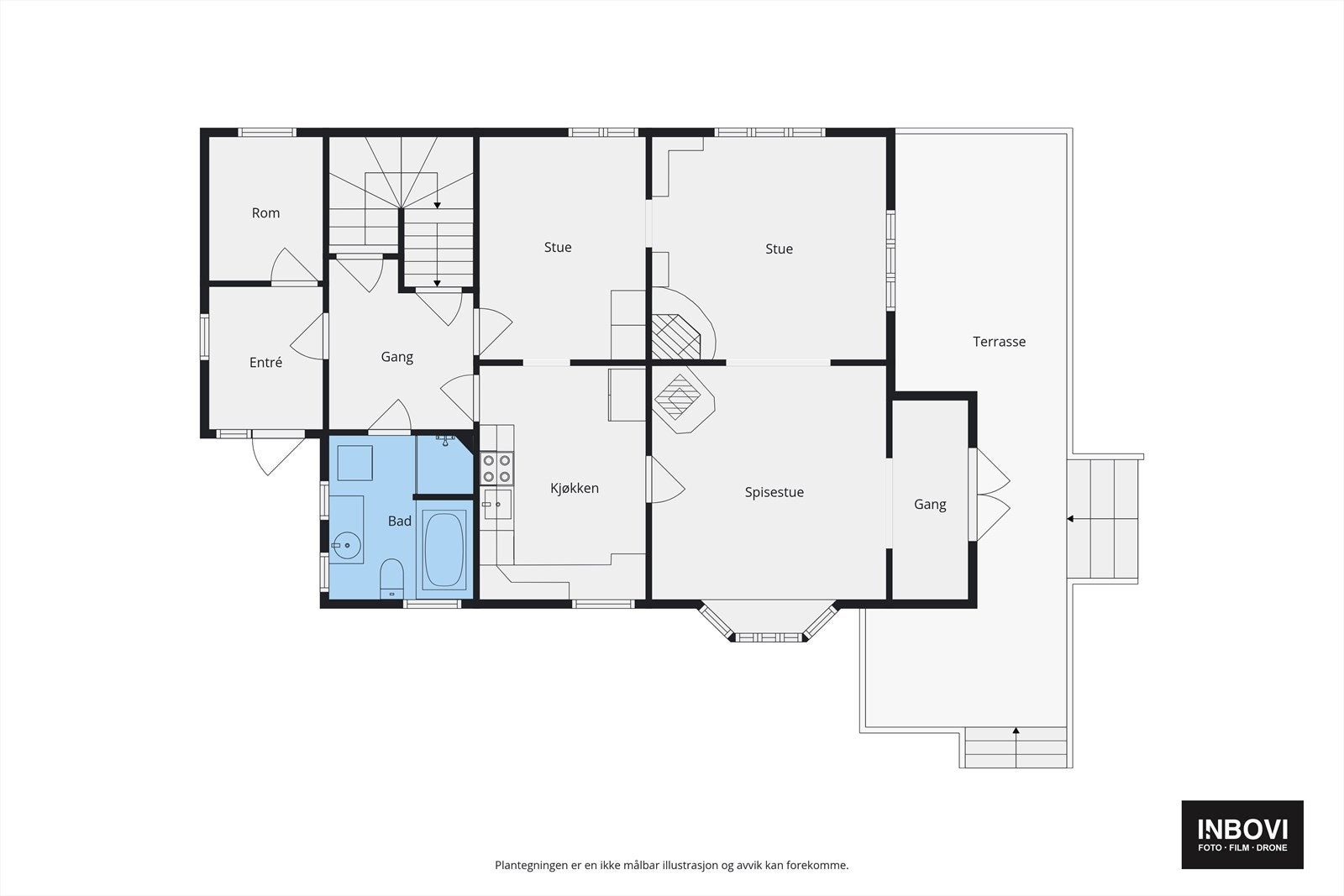
Komplett og innholdsrik enebolig med dobbel garasje og nydelige uteplasser på flere sider av boligen. Boligen ligger sentralt til på Bakkane i Skien, med kort vei til skoler, barnehage, dagligvare, Herkules Kjøpesenter og Skien sentrum.
Boligen inneholder blant annet flere koselige stuer med peis og vedovn, og det er installert varmepumpe i 2020 for en jevn og behagelig varme. Bad og kjøkken i 1. etg., samt 4 soverom, evt. 3 soverom og en stue i 2. etg.
Ny utvendig vannledning i 2025, nytt utvendig avløp og nytt sikringsskap i 2017.
I nærområdet finner du Herkules Idrettsanlegg med bredt aktivitetstilbud og Skien Fritidspark med blant annet svømmehall, klatrepark og lysløype m.m. Eiendommen ligger i Moflata og Gimsøy skolekrets.
Boligen inneholder blant annet flere koselige stuer med peis og vedovn, og det er installert varmepumpe i 2020 for en jevn og behagelig varme. Bad og kjøkken i 1. etg., samt 4 soverom, evt. 3 soverom og en stue i 2. etg.
Ny utvendig vannledning i 2025, nytt utvendig avløp og nytt sikringsskap i 2017.
I nærområdet finner du Herkules Idrettsanlegg med bredt aktivitetstilbud og Skien Fritidspark med blant annet svømmehall, klatrepark og lysløype m.m. Eiendommen ligger i Moflata og Gimsøy skolekrets.
NB: Knappen for å vise hele beskrivelsen har kun en visuell effekt.
NB: Knappen for å vise hele beskrivelsen har kun en visuell effekt.
Salgsoppgaven beskriver vesentlig og lovpålagt informasjon om eiendommen
Se komplett salgsoppgaveNyttige lenker
Nærområdet
EiendomsMegler 1 Skien
et foretak i SpareBank 1 Sør-Norge konsernet
Annonseinformasjon
| FINN-kode | 454932918 |
|---|---|
| Sist endret | 11. mars 2026 17:15 |
| Referanse | 1410250518 |
Annonsene kan være mangelfulle i forhold til lovpålagt opplysningsplikt. Før bindende avtale inngås oppfordres interessenter til å innhente komplett informasjon fra meglerforetaket, selger eller utleier.



























































