Bildegalleri

EiendomsMegler 1 v/ Mads Larsen har gleden av å ønske velkommen til Leksvikgata 2 - En lekker og moderne 2-roms selveierleilighet på attraktive Lilleby! (Foto: Nonstad foto).
Lilleby
MODERNE OG INNBYDENDE 2-ROMS SELVEIER - LAVE FELLESKOSTNADER - EKSTERN BOD - SOLRIK TERRASSE PÅ 13(!) KVM - SENTRALT!
Prisantydning3 190 000 kr
Nøkkelinfo
- Boligtype
- Leilighet
- Eieform
- Eier (Selveier)
- Soverom
- 1
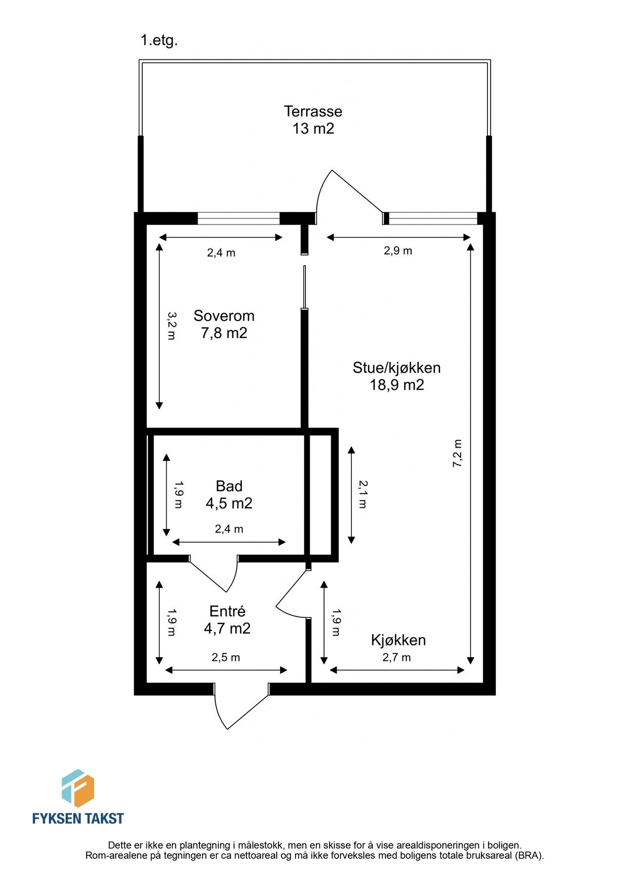
- Internt bruksareal
- 39 m² (BRA-i)
- Bruksareal
- 41 m²
- Eksternt bruksareal
- 2 m² (BRA-e)
- Balkong/Terrasse
- 13 m² (TBA)
- Etasje
- 1
- Byggeår
- 2023
- Energimerking
- B - Mørkegrønn
- Rom
- 2
- Tomteareal
- 622 m² (eiet)
Fasiliteter
Balkong/Terrasse
Kabel-TV
Heis
Offentlig vann/kloakk
Parkett
Turterreng
Sentralt
Bredbåndstilknytning
Moderne
Rolig
Balansert ventilasjon
Visning
torsdag, 19. mars
15:30 – 16:30
Våre visninger har påmelding. Dette gjør vi for å kunne yte bedre service for våre kunder. Verdifullt for boligkjøper og for oss. Vi anbefaler at salgsoppgaven lastes ned digitalt før visning, og ring oss gjerne på forhånd for spørsmål om boligen. Passer ikke angitt tidspunkt, ta kontakt så finner vi en løsning. Skulle det mot formodning ikke være påmeldte til angitt visningstidspunkt vil ikke visning bli gjennomført.
Om boligen
EiendomsMegler 1 v/ Mads Larsen har gleden av å presentere en lekker 2-roms selveierleilighet fra 2023. Leiligheten har en god planløsning, solrik og sørvendt terrasse og ekstern bod i kjeller.
Leiligheten holder en ny og moderne standard. Moderne fasiliteter som fjernvarme og balansert ventilasjon. Videre er leiligheten energimerket med Grønn - B, noe som gjør at den kvalifiserer for grønne boliglån. Lilleby er for øvrig et meget attraktivt område med sin umiddelbare nærhet til "alt" du trenger i hverdagen og flotte grøntarealer mellom blokkene. Korte avstander til dagligvareforretninger, treningssentre, shoppingsentre, turstier, togstasjon og bussholdeplass.
Velkommen til en trivelig visning! Har du spørsmål til boligen, ta kontakt på 94160434.
Verdt å merke seg:
Leiligheten holder en ny og moderne standard. Moderne fasiliteter som fjernvarme og balansert ventilasjon. Videre er leiligheten energimerket med Grønn - B, noe som gjør at den kvalifiserer for grønne boliglån. Lilleby er for øvrig et meget attraktivt område med sin umiddelbare nærhet til "alt" du trenger i hverdagen og flotte grøntarealer mellom blokkene. Korte avstander til dagligvareforretninger, treningssentre, shoppingsentre, turstier, togstasjon og bussholdeplass.
Velkommen til en trivelig visning! Har du spørsmål til boligen, ta kontakt på 94160434.
Verdt å merke seg:
- Garanti til 2028.
- Energimerke Grønn - B.
- Solrik sørvendt terrasse.
- Meget lave felleskostnader.
- Fjernvarme og balansert ventilasjon.
NB: Knappen for å vise hele beskrivelsen har kun en visuell effekt.
NB: Knappen for å vise hele beskrivelsen har kun en visuell effekt.
Salgsoppgaven beskriver vesentlig og lovpålagt informasjon om eiendommen
Se komplett salgsoppgaveNyttige lenker
Nærområdet
EiendomsMegler 1 Lade og Lilleby
Vi loser deg trygt gjennom hele boligsalget
Annonseinformasjon
| FINN-kode | 454922989 |
|---|---|
| Sist endret | 12. mars 2026 14:32 |
| Referanse | 36260040 |
Annonsene kan være mangelfulle i forhold til lovpålagt opplysningsplikt. Før bindende avtale inngås oppfordres interessenter til å innhente komplett informasjon fra meglerforetaket, selger eller utleier.




























