Bildegalleri

Velkommen til Trødne 1!
Sørbøhagane
Flott og moderne enderekkehus m/attraktiv og barnevennlig beliggenhet | 3 soverom | 2 stuer |Solrik balkong m/pen utsikt
Prisantydning4 990 000 kr
Nøkkelinfo
- Boligtype
- Rekkehus
- Eieform
- Eier (Selveier)
- Soverom
- 3
- Internt bruksareal
- 97 m² (BRA-i)
- Bruksareal
- 102 m²
- Eksternt bruksareal
- 5 m² (BRA-e)
- Balkong/Terrasse
- 56 m² (TBA)
- Etasje
- 3
- Byggeår
- 2012
- Energimerking
- Rom
- 5
- Tomteareal
- 195 m² (eiet)
Fasiliteter
Balkong/Terrasse
Barnevennlig
Bredbåndstilknytning
Garasje/P-plass
Hage
Kjæledyr tillatt
Offentlig vann/kloakk
Parkett
Rolig
Sentralt
Utsikt
Turterreng
Lademulighet
Balansert ventilasjon
Visning
mandag, 23. mars
16:30 – 17:30
Ønsker du å delta på visningen ber vi deg melde deg på slik at vi vet at du kommer. Da kan vi bistå alle best mulig og gi deg tiden du trenger på visningen. Kontakt gjerne megler før visning hvis du har spørsmål. Visningen avholdes bare dersom det er påmeldte. Hvis det ikke er oppsatt visningstidspunkt eller tidspunkt ikke passer, kontakt megler.
VisningspåmeldingOm boligen
Et flott og moderne enderekkehus med gjennomgående god standard, beliggende i et attraktivt og barnevennlig område på Sørbøhagane i Sandnes.
Boligen fremstår som lys og innbydende med god planløsning.
Her ligger en flott plassert med kort vei til kjekke turområder, samtidig som det er kort vei til Sandnes sentrum og alle dets fasiliteter. Fra boligen har man nærhet til både skoler og barnehager. Det er også flere lekeplasser og idrettsområder like i nærmiljøet.
Kort oppsummert om boligen:
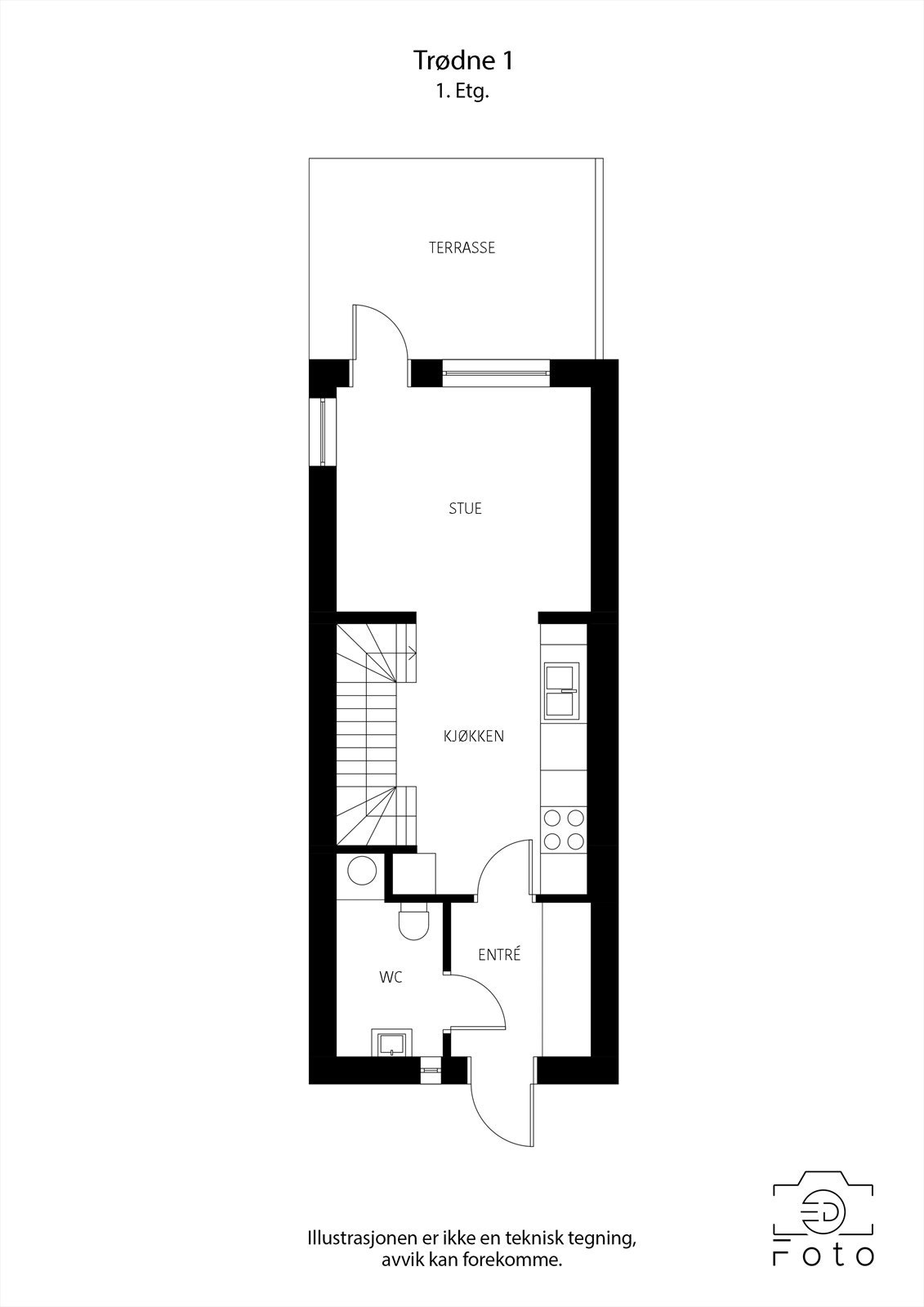
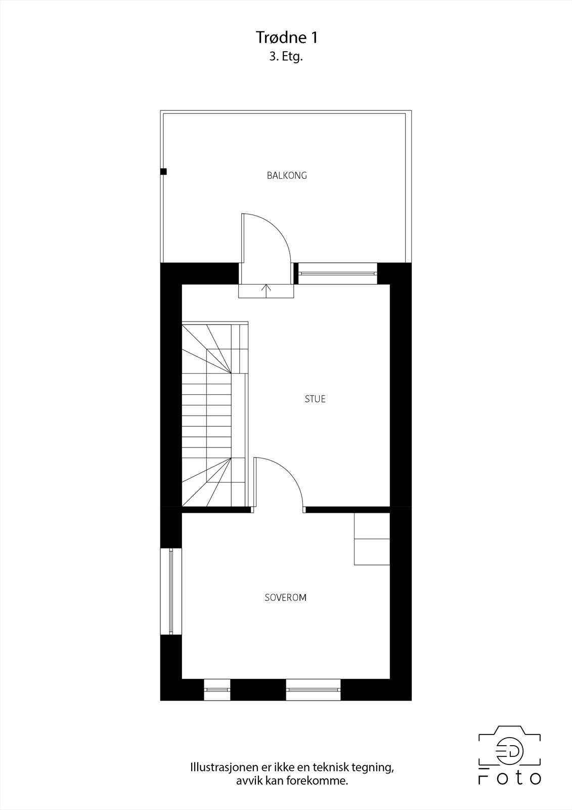
- To stuer.
- Tre soverom.
- Romslig balkong med nydelig utsikt.
- Pent opparbeidet og solrik tomt.
- Oppvarming via vannbåren varme.
- Sentralt, med god offentlig kommunikasjon.
- Parkering i carport med sportsbod i bakre del.
- Romslig og sørvendt balkong med gode solforhold og pen utsikt.
Boligen fremstår som lys og innbydende med god planløsning.
Her ligger en flott plassert med kort vei til kjekke turområder, samtidig som det er kort vei til Sandnes sentrum og alle dets fasiliteter. Fra boligen har man nærhet til både skoler og barnehager. Det er også flere lekeplasser og idrettsområder like i nærmiljøet.
Kort oppsummert om boligen:
- To stuer.
- Tre soverom.
- Romslig balkong med nydelig utsikt.
- Pent opparbeidet og solrik tomt.
- Oppvarming via vannbåren varme.
- Sentralt, med god offentlig kommunikasjon.
- Parkering i carport med sportsbod i bakre del.
- Romslig og sørvendt balkong med gode solforhold og pen utsikt.
NB: Knappen for å vise hele beskrivelsen har kun en visuell effekt.
NB: Knappen for å vise hele beskrivelsen har kun en visuell effekt.
Salgsoppgaven beskriver vesentlig og lovpålagt informasjon om eiendommen
Se komplett salgsoppgaveNyttige lenker
Nærområdet
EiendomsMegler 1 Sandnes
En del av Sparebank 1 Sør-Norge
Annonseinformasjon
| FINN-kode | 454917137 |
|---|---|
| Sist endret | 16. mars 2026 09:21 |
| Referanse | 2301250462 |
Annonsene kan være mangelfulle i forhold til lovpålagt opplysningsplikt. Før bindende avtale inngås oppfordres interessenter til å innhente komplett informasjon fra meglerforetaket, selger eller utleier.










































