Bildegalleri

Velkommen til Westye Egebergs gate 7C. Foto Zovenfra AS
St.Hanshaugen
Innbydende og attraktiv 1-roms med nydelig beliggenhet i populært område - Balkong - Oppvarming/v.v inkl. - Lave omkost.
Prisantydning3 400 000 kr
Nøkkelinfo
- Boligtype
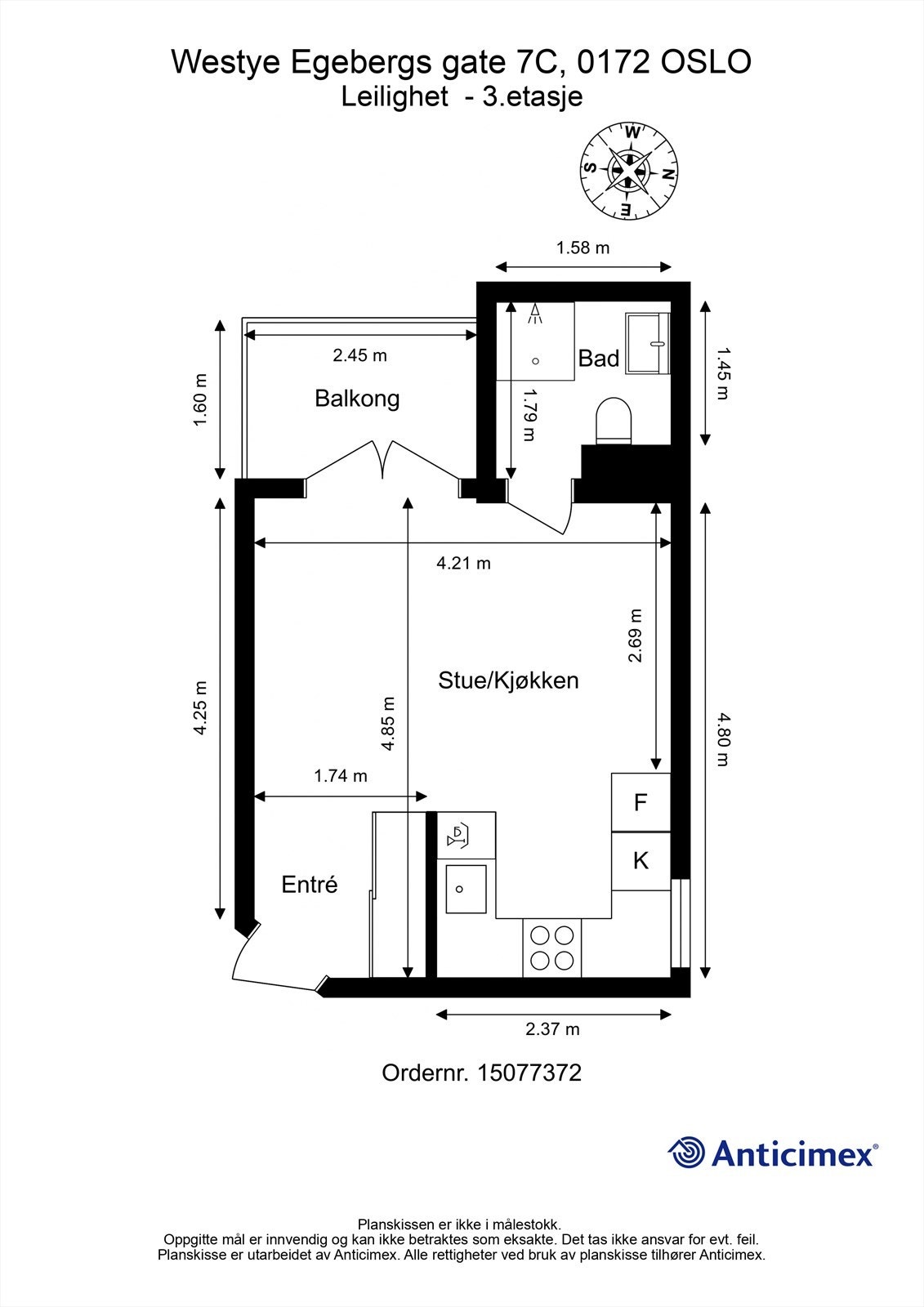
- Leilighet
- Eieform
- Andel
- Soverom
- 1
- Internt bruksareal
- 24 m² (BRA-i)
- Bruksareal
- 27 m²
- Eksternt bruksareal
- 3 m² (BRA-e)
- Balkong/Terrasse
- 4 m² (TBA)
- Etasje
- 3
- Byggeår
- 1938
- Rom
- 1
- Tomteareal
- 1 499 m² (eiet)
Fasiliteter
Balkong/Terrasse
Bredbåndstilknytning
Kabel-TV
Parkett
Rolig
Sentralt
Turterreng
Visning
tirsdag, 17. mars
16:00 – 17:00
onsdag, 18. mars
17:00 – 18:00
For å delta på visning, ber vi om at du melder deg på. Da sikrer vi at du får nødvendig informasjon og at det er satt av tilstrekkelig med tid. Kontakt megler dersom annet tidspunkt ønskes. Husk å lese salgsoppgaven før visningen, så du stiller forberedt.
Ønsker du kun å bli holdt orientert, kan du fra eiendommens hjemmeside få varsel om solgtpris, eller kontakte megler.
VisningspåmeldingOm boligen
Eiendomsmegler Cecilie Muri i Krogsveen har gleden av å ønske velkommen til Westye Egebergs gate 7C, og en flott, arealeffektiv 1-roms leilighet beliggende i et populært boligområde på St. Hanshaugen. Her bor du i et veletablert og rolig boligområde, med kort vei til flotte tur- og rekreasjonsområder. Nærområdet byr på mange hyggelige spisesteder, kaféer, dagligvarebutikker, nisjebutikker og mye mer. Vulkan med Mathallen ligger også i kort gange fra boligen.
Leiligheten har en god planløsning bestående av entré, stue med åpen kjøkkenløsning og bad. I tillegg har leiligheten en hyggelig vestvendt balkong og lagringsplass i to boder. Borettslaget har vaskekjeller, tørkerom og ellers hyggelige fellesarealer. Veldig hyggelig miljø i borettslaget og en hagegruppe du kan bli med i.
Leiligheten har en god planløsning bestående av entré, stue med åpen kjøkkenløsning og bad. I tillegg har leiligheten en hyggelig vestvendt balkong og lagringsplass i to boder. Borettslaget har vaskekjeller, tørkerom og ellers hyggelige fellesarealer. Veldig hyggelig miljø i borettslaget og en hagegruppe du kan bli med i.
NB: Knappen for å vise hele beskrivelsen har kun en visuell effekt.
NB: Knappen for å vise hele beskrivelsen har kun en visuell effekt.
Salgsoppgaven beskriver vesentlig og lovpålagt informasjon om eiendommen
Se komplett salgsoppgaveNyttige lenker
Nærområdet
Krogsveen Bærum
Verdien av en god megler.
Annonseinformasjon
| FINN-kode | 454916587 |
|---|---|
| Sist endret | 12. mars 2026 07:39 |
| Referanse | KR10.25372 |
Annonsene kan være mangelfulle i forhold til lovpålagt opplysningsplikt. Før bindende avtale inngås oppfordres interessenter til å innhente komplett informasjon fra meglerforetaket, selger eller utleier.
























