Bildegalleri

Eiendomsmegler Norge ved Kristian Lossius har gleden av å ønske deg velkommen til Dvergsnesåsen 117!
Dvergsnes
Sjelden mulighet i første rekke. Lekker, påkostet enebolig. Fantastisk sjøutsikt og meget gode solforhold. Garasje.
Prisantydning16 900 000 kr
Nøkkelinfo
- Boligtype
- Enebolig
- Eieform
- Eier (Selveier)
- Soverom
- 4
- Internt bruksareal
- 258 m² (BRA-i)
- Bruksareal
- 258 m²
- Balkong/Terrasse
- 152 m² (TBA)
- Byggeår
- 2018
- Energimerking
- Rom
- 7
- Tomteareal
- 570 m² (eiet)
Fasiliteter
Takterrasse
Balkong/Terrasse
Barnevennlig
Garasje/P-plass
Kjæledyr tillatt
Parkett
Peis/Ildsted
Rolig
Utsikt
Turterreng
Lademulighet
Om boligen
Eiendomsmegler Norge ved Kristian Lossius har gleden av å ønske deg velkommen til Dvergsnesåsen 117!
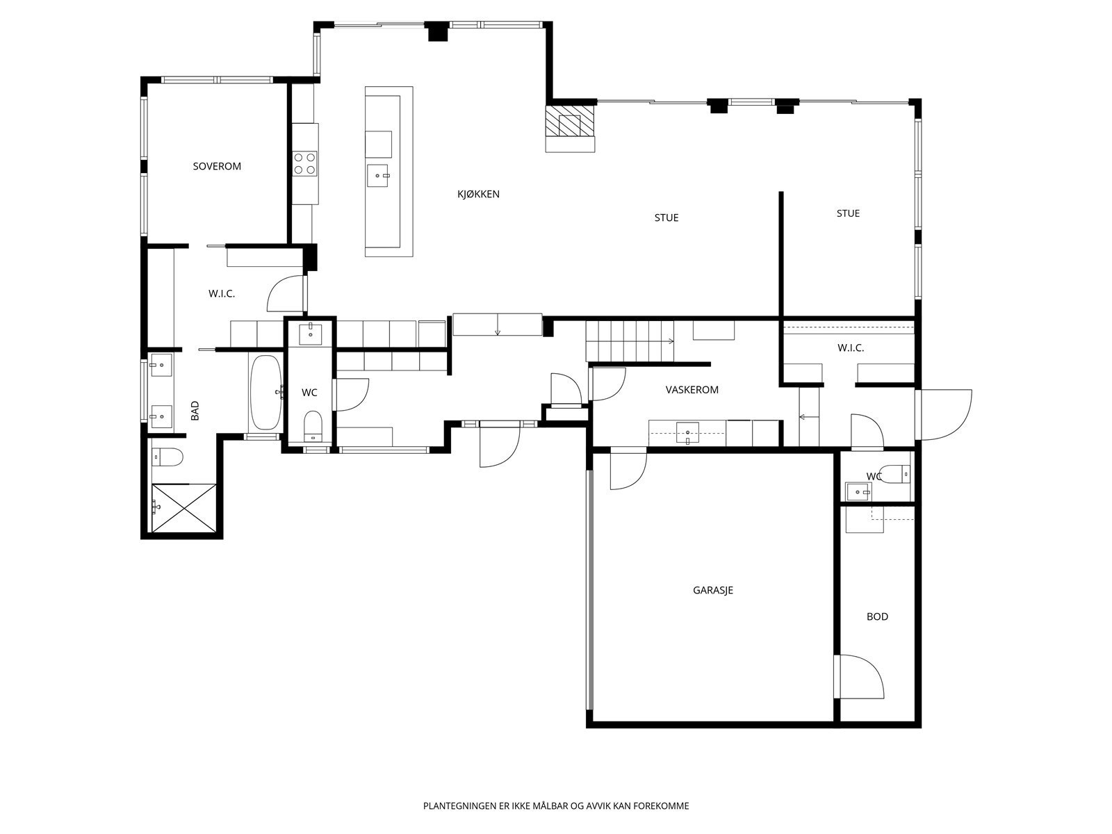
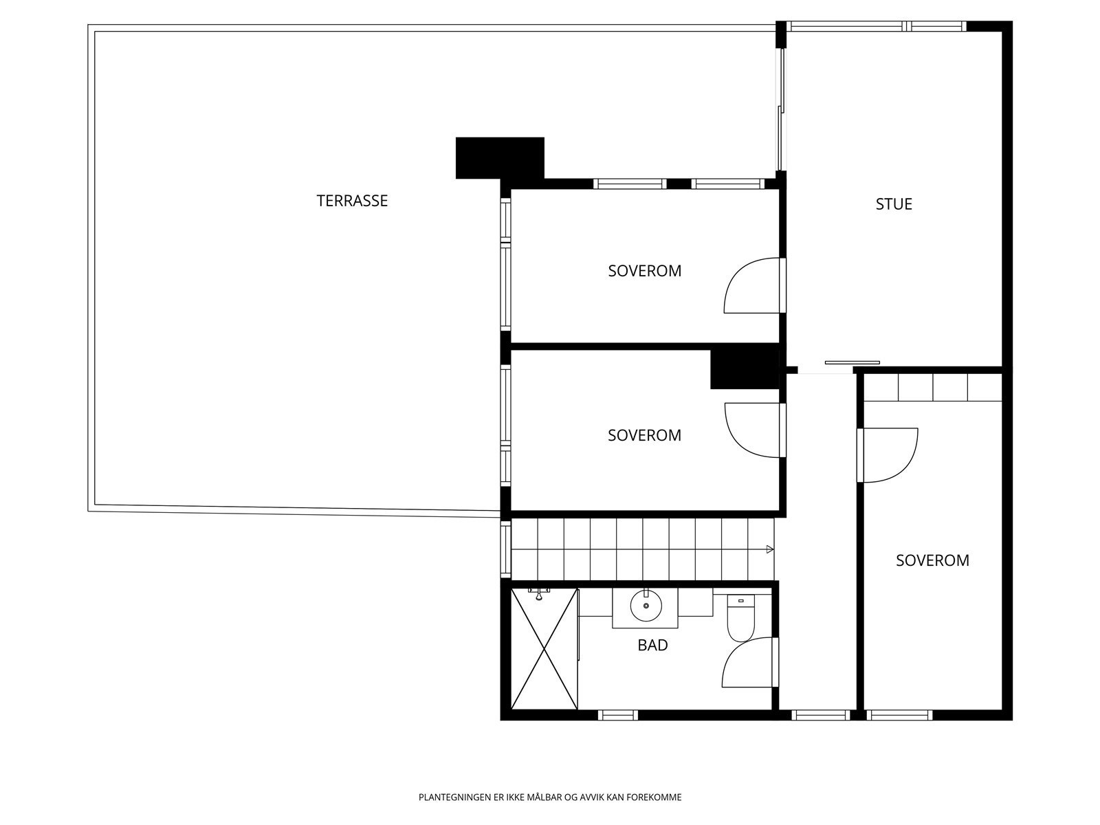
Boligen har følgende planløsning:
1. etg.: Meget innbydende gang/entrè. Romslig og lys stue/kjøkkendel med god takhøyde og store vindusflater. Lekker plassbygget kjøkken med forlengelse til spisebord med benk. Integrerte hvitevarer medfølger. Fra stue er det utgang til solrikt uteområde med flott sjøutsikt. Tv stue. Gjestetoalett, hovedsoverom som har rikelig med skapplass. Inngang til eget bad. Vasekom med egen inngang, gjestetoalett 2 og inngang til garasje.
2. etg.: Loftstue med utgang til stor solrik takterrasse. Soverom 2, soverom 3 og soverom 4. Flislagt bad i 2. etg. med dusjhjørne, vegghengt toalett og servant med innredning.
Boligen har følgende planløsning:
1. etg.: Meget innbydende gang/entrè. Romslig og lys stue/kjøkkendel med god takhøyde og store vindusflater. Lekker plassbygget kjøkken med forlengelse til spisebord med benk. Integrerte hvitevarer medfølger. Fra stue er det utgang til solrikt uteområde med flott sjøutsikt. Tv stue. Gjestetoalett, hovedsoverom som har rikelig med skapplass. Inngang til eget bad. Vasekom med egen inngang, gjestetoalett 2 og inngang til garasje.
2. etg.: Loftstue med utgang til stor solrik takterrasse. Soverom 2, soverom 3 og soverom 4. Flislagt bad i 2. etg. med dusjhjørne, vegghengt toalett og servant med innredning.
NB: Knappen for å vise hele beskrivelsen har kun en visuell effekt.
NB: Knappen for å vise hele beskrivelsen har kun en visuell effekt.
Salgsoppgaven beskriver vesentlig og lovpålagt informasjon om eiendommen
Se komplett salgsoppgaveNyttige lenker
Nærområdet
Eiendomsmegler Norge Kristiansand
Best der du bor
Annonseinformasjon
| FINN-kode | 454895955 |
|---|---|
| Sist endret | 11. mars 2026 08:20 |
| Referanse | 50250200 |
Annonsene kan være mangelfulle i forhold til lovpålagt opplysningsplikt. Før bindende avtale inngås oppfordres interessenter til å innhente komplett informasjon fra meglerforetaket, selger eller utleier.






































































