Bildegalleri

Velkommen til Lønneveien 1 v/ Veronica Berge Olsen, Eiendomsmegler Norge.
Lura
Pen og innbydende leilighet med moderne standard - Balkong - Parkering i carport
Prisantydning3 190 000 kr
Nøkkelinfo
- Boligtype
- Leilighet
- Eieform
- Eier (Selveier)
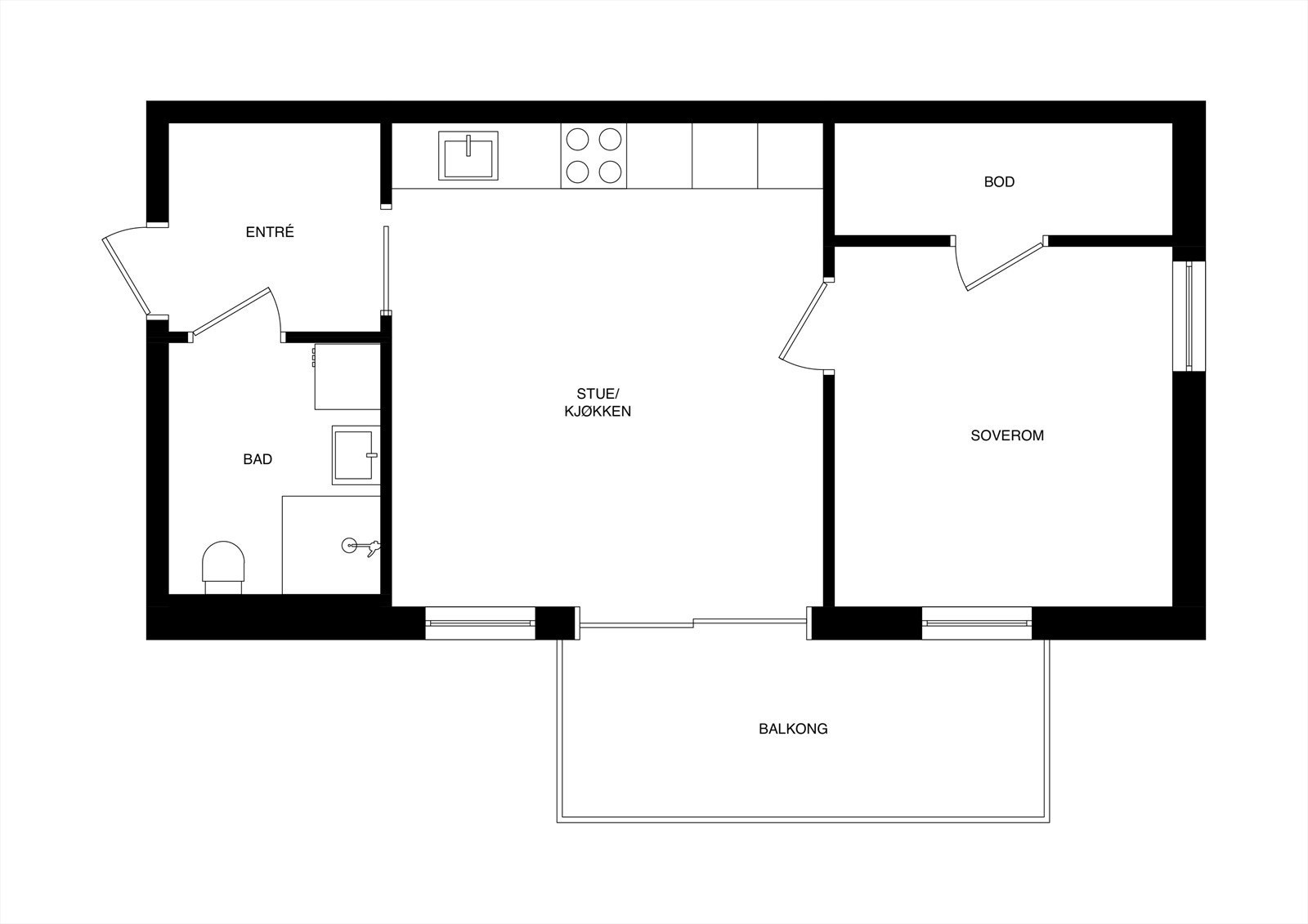
- Soverom
- 1
- Internt bruksareal
- 53 m² (BRA-i)
- Bruksareal
- 58 m²
- Eksternt bruksareal
- 5 m² (BRA-e)
- Balkong/Terrasse
- 9 m² (TBA)
- Etasje
- 2
- Byggeår
- 2018
- Energimerking
- Rom
- 2
- Tomteareal
- 1 216 m² (eiet)
Fasiliteter
Balkong/Terrasse
Garasje/P-plass
Heis
Parkett
Sentralt
Bademulighet
Turterreng
Balansert ventilasjon
Visning
onsdag, 25. mars
16:00 – 17:30
Eiendomsmegler Norge sine visninger har påmelding. Påmelding gjøres enkelt ved å benytte knappen under. Ta kontakt med megler dersom oppsatt tidspunkt ikke passer. Det vil ikke bli avholdt visning uten påmelding, frist for påmelding er senest kl. 12.00 på visningsdagen. Husk å laste ned salgsoppgaven digitalt før visning. Velkommen til en hyggelig visning!
VisningspåmeldingOm boligen
Velkommen til en moderne og gjennomført leilighet med en sentral beliggenhet på Lura. Her får man gleden av flotte turomeråder, nærhet til sjøen og enkel tilgang til byens fasiliteter.
Boligen byr på en lys og luftig atmosfære med store vindusflater, gjennomgående parkett og en god takhøyde på 2,61 meter. Åpen stue- og kjøkkenløsning gir en praktisk og sosial planløsning. Delikat flislagt bad med vannbåren gulvvarme og opplegg for vaskemaskin.
Varmt vann og oppvarming inkludert i felleskostnadene.
Leiligheten har egen bod og parkering og den herlige balkongen på 9 kvm gir gode muligheter for hyggelige sammenkomster og et herlig utsyn.
En lekker og praktisk leilighet med gjennomtenkte løsninger!
Boligen byr på en lys og luftig atmosfære med store vindusflater, gjennomgående parkett og en god takhøyde på 2,61 meter. Åpen stue- og kjøkkenløsning gir en praktisk og sosial planløsning. Delikat flislagt bad med vannbåren gulvvarme og opplegg for vaskemaskin.
Varmt vann og oppvarming inkludert i felleskostnadene.
Leiligheten har egen bod og parkering og den herlige balkongen på 9 kvm gir gode muligheter for hyggelige sammenkomster og et herlig utsyn.
En lekker og praktisk leilighet med gjennomtenkte løsninger!
NB: Knappen for å vise hele beskrivelsen har kun en visuell effekt.
NB: Knappen for å vise hele beskrivelsen har kun en visuell effekt.
Salgsoppgaven beskriver vesentlig og lovpålagt informasjon om eiendommen
Se komplett salgsoppgaveNyttige lenker
Nærområdet
Eiendomsmegler Norge Stavanger
Best der du bor
Annonseinformasjon
| FINN-kode | 454893288 |
|---|---|
| Sist endret | 18. mars 2026 12:43 |
| Referanse | 20250079 |
Annonsene kan være mangelfulle i forhold til lovpålagt opplysningsplikt. Før bindende avtale inngås oppfordres interessenter til å innhente komplett informasjon fra meglerforetaket, selger eller utleier.






















