Bildegalleri

Steinar Stokka v/Aktiv Jæren har gleden av å presentere Furulia 7! En flott familiebolig med bruksareal på 327 kvm. i et meget attraktivt og barnevennlig område! Foto: Brian Engen, Engen visuals.
Verdalen
Innholdsrik og betydelig påkostet enebolig med gjennomgående høy standard| Dobbel garasje| Barnevennlig beliggenhet
Prisantydning9 190 000 kr
Nøkkelinfo
- Boligtype
- Enebolig
- Eieform
- Eier (Selveier)
- Soverom
- 4
- Internt bruksareal
- 296 m² (BRA-i)
- Bruksareal
- 327 m²
- Eksternt bruksareal
- 31 m² (BRA-e)
- Balkong/Terrasse
- 101 m² (TBA)
- Byggeår
- 1978
- Energimerking
- Rom
- 6
- Tomteareal
- 902 m² (eiet)
Fasiliteter
Balkong/Terrasse
Barnevennlig
Garasje/P-plass
Peis/Ildsted
Utsikt
Om boligen
Velkommen til Furulia 7!
Innhold:
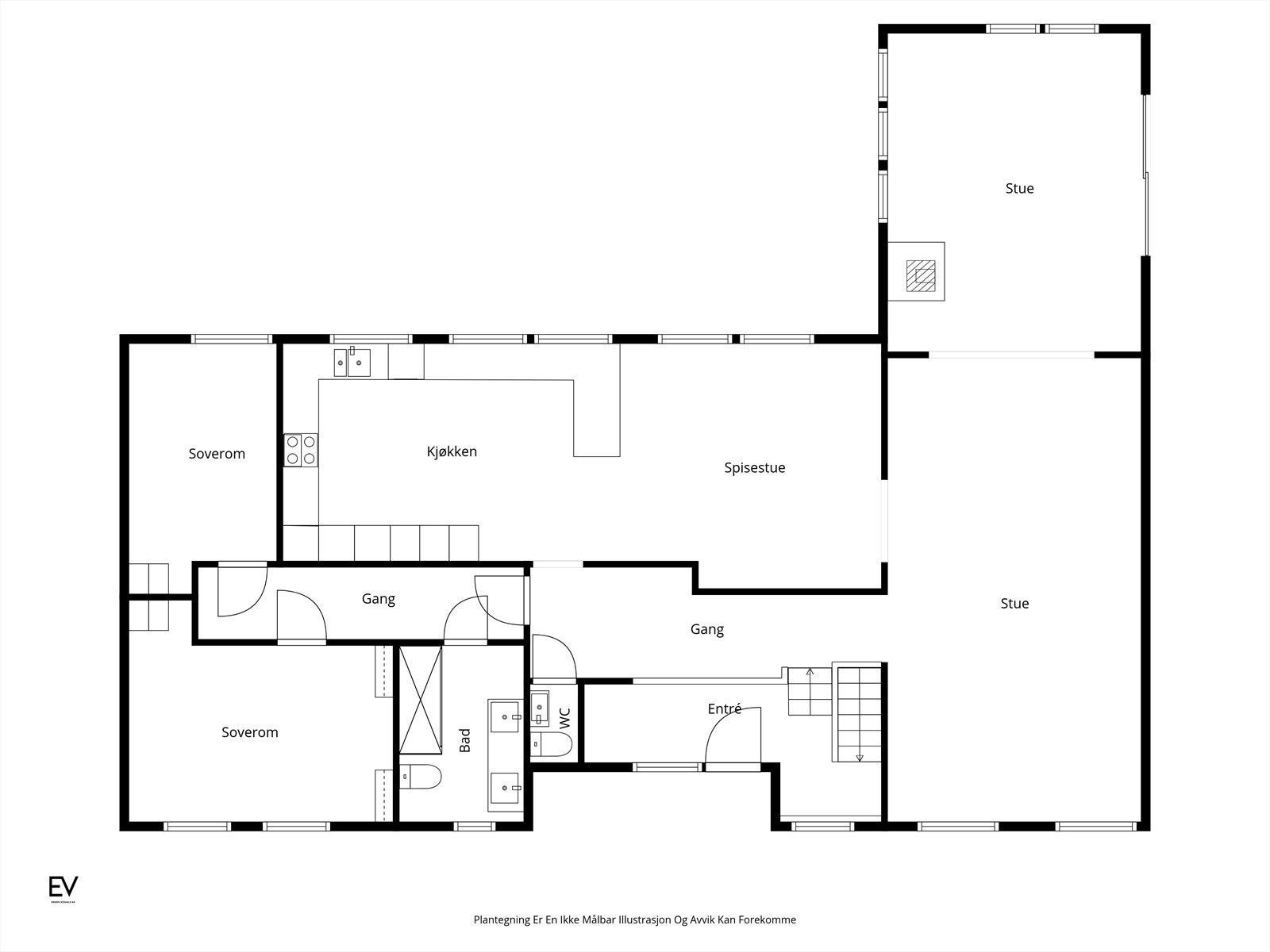
1. etasje: Entré, stue/spisestue/tv-stue, kjøkken, gang, gjestetoalett, 2 soverom og bad.
Underetasje: Kjellerentré, 2 soverom, soverom/kontor(ikke godkjent), stue, kinorom, trapp m/gang, gang, teknisk rom, bad, bi-inngang og badstue.
Dobbel garasje.
Utebod.
Kort fortalt:
-Stor og innholdsrik enebolig med flott beliggenhet.
-Svært barnevennlig og populært område.
-Betydelig påkostet siste årene og holder en gjennomgående høy standard.
-God planløsning og spennende innhold med blant annet kinorom.
-De fleste vinduer er fra 2022/2024 (aluminiumsvinduer).
-Dobbel garasje.
-Stort og innholdsrikt kjøkken levert av HTH.
-2 bad, gjestetoalett og eget vaskerom.
-Solrik og pent tomt.
-Nærhet til barnehage og skole.
-Nærhet til turområde.
Velkommen.
Innhold:
1. etasje: Entré, stue/spisestue/tv-stue, kjøkken, gang, gjestetoalett, 2 soverom og bad.
Underetasje: Kjellerentré, 2 soverom, soverom/kontor(ikke godkjent), stue, kinorom, trapp m/gang, gang, teknisk rom, bad, bi-inngang og badstue.
Dobbel garasje.
Utebod.
Kort fortalt:
-Stor og innholdsrik enebolig med flott beliggenhet.
-Svært barnevennlig og populært område.
-Betydelig påkostet siste årene og holder en gjennomgående høy standard.
-God planløsning og spennende innhold med blant annet kinorom.
-De fleste vinduer er fra 2022/2024 (aluminiumsvinduer).
-Dobbel garasje.
-Stort og innholdsrikt kjøkken levert av HTH.
-2 bad, gjestetoalett og eget vaskerom.
-Solrik og pent tomt.
-Nærhet til barnehage og skole.
-Nærhet til turområde.
Velkommen.
NB: Knappen for å vise hele beskrivelsen har kun en visuell effekt.
NB: Knappen for å vise hele beskrivelsen har kun en visuell effekt.
Salgsoppgaven beskriver vesentlig og lovpålagt informasjon om eiendommen
Se komplett salgsoppgaveNærområdet
Aktiv Jæren
Annonseinformasjon
| FINN-kode | 454868523 |
|---|---|
| Sist endret | 13. mars 2026 19:06 |
| Referanse | 1403250437 |
Annonsene kan være mangelfulle i forhold til lovpålagt opplysningsplikt. Før bindende avtale inngås oppfordres interessenter til å innhente komplett informasjon fra meglerforetaket, selger eller utleier.



























































