Bildegalleri

Velkommen til Nansens vei 30 - Presentert av Eiendomsmegler Norge v/Stian Yndestad.
Gjennomført og stilren familieleilighet m/parkering, smarthus, 4 soverom og 2 bad. Oppusset i 25/26. Nydelig uteområde
Prisantydning7 990 000 kr
Nøkkelinfo
- Boligtype
- Leilighet
- Eieform
- Eier (Selveier)
- Soverom
- 4
- Internt bruksareal
- 115 m² (BRA-i)
- Bruksareal
- 115 m²
- Etasje
- 1
- Byggeår
- 1928
- Energimerking
- Rom
- 6
- Renovert år
- 2025
- Tomteareal
- 487 m²
Fasiliteter
Balkong/Terrasse
Barnevennlig
Garasje/P-plass
Hage
Kjæledyr tillatt
Rolig
Sentralt
Turterreng
Om boligen
Velkommen til Nansens vei 30! Boligen har en svært attraktiv og sentral beliggenhet mellom Minde og Kronstad, like ved Brann Stadion. I 2025 er eiendommen blitt seksjonert og betydelig oppusset der "alt" er tatt. Boligen fremstår som moderne og lekker!
Innhold:
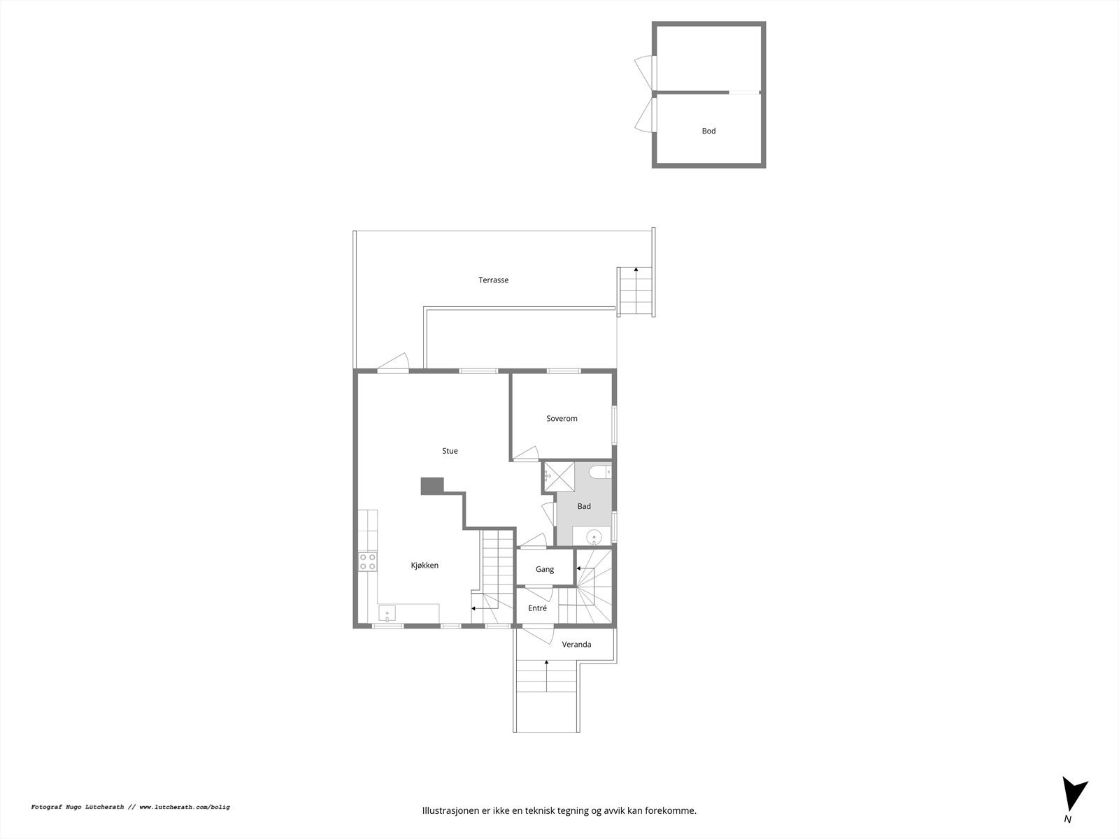
Kjeller: Kjellerstue, 3 soverom og bad/vaskerom.
1. etasje: Entré, gang, bad, soverom og stue/kjøkken.
Utvendig bod.
- Tilhørende parkering med mulighet for ladepunkt
- Smarthus-løsning
- Alle innvendige overflater er fornyet
- Nye vedlikeholdsfrie 3-lags vinduer
- Nytt kjøkken fra Drømmekjøkken
- Downlights i de fleste rom
- Nytt el. og rør anlegg
- 2 fulle bad og 4 soverom
- Nydelig og usjenert hage
Innhold:
Kjeller: Kjellerstue, 3 soverom og bad/vaskerom.
1. etasje: Entré, gang, bad, soverom og stue/kjøkken.
Utvendig bod.
- Tilhørende parkering med mulighet for ladepunkt
- Smarthus-løsning
- Alle innvendige overflater er fornyet
- Nye vedlikeholdsfrie 3-lags vinduer
- Nytt kjøkken fra Drømmekjøkken
- Downlights i de fleste rom
- Nytt el. og rør anlegg
- 2 fulle bad og 4 soverom
- Nydelig og usjenert hage
NB: Knappen for å vise hele beskrivelsen har kun en visuell effekt.
NB: Knappen for å vise hele beskrivelsen har kun en visuell effekt.
Salgsoppgaven beskriver vesentlig og lovpålagt informasjon om eiendommen
Se komplett salgsoppgaveNyttige lenker
Nærområdet
Eiendomsmegler Norge Bergen Sentrum
Best der du bor
Annonsene kan være mangelfulle i forhold til lovpålagt opplysningsplikt. Før bindende avtale inngås oppfordres interessenter til å innhente komplett informasjon fra meglerforetaket, selger eller utleier.















































