Bildegalleri

Velkommen til Hallfred Høyems veg 22 - og denne flotte eneboligen beliggende i et veletablert og rolig område på Brundalen! Her bor man mer kort vei til en rekke dagligdagse servicetilbud, gode kollektivmuligheter og fantastiske turområder.
Solgt
Nedre Granåslia
Flott og innholdsrik enebolig i familievennlig og attraktivt område | Blindvei | Romslig terrasse | Carport | Bodareal
Prisantydning7 250 000 kr
Nøkkelinfo
- Boligtype
- Enebolig
- Eieform
- Eier (Selveier)
- Soverom
- 3
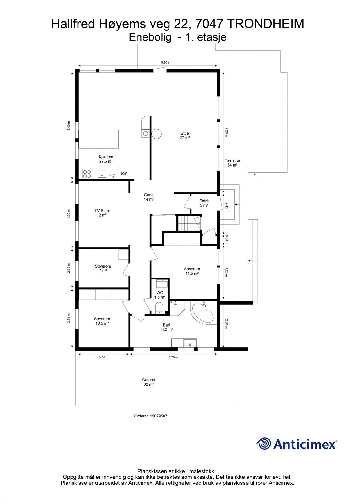
- Internt bruksareal
- 262 m² (BRA-i)
- Bruksareal
- 265 m²
- Eksternt bruksareal
- 3 m² (BRA-e)
- Balkong/Terrasse
- 54 m² (TBA)
- Etasje
- 2
- Byggeår
- 1968
- Energimerking
- D - Gul
- Rom
- 4
- Tomteareal
- 712 m² (eiet)
Om boligen
Velkommen til Hallfred Høyems veg 22 - og denne flotte eneboligen beliggende i et veletablert og rolig område i Nedre Granåslia. Her bor man mer kort vei til en rekke dagligdagse servicetilbud, gode kollektivmuligheter og fantastiske turområder.
Verdt å nevne:
- Delikat HTH-kjøkken fra 2016 med integrerte hvitevarer
- Romslig stue- og kjøkkenløsning med gode møbleringsmuligheter
- Utgang fra stuen til solrik terrasse på hele 54 kvm
- Pent, flislagt bad med gulvvarme (delvis godkjent)
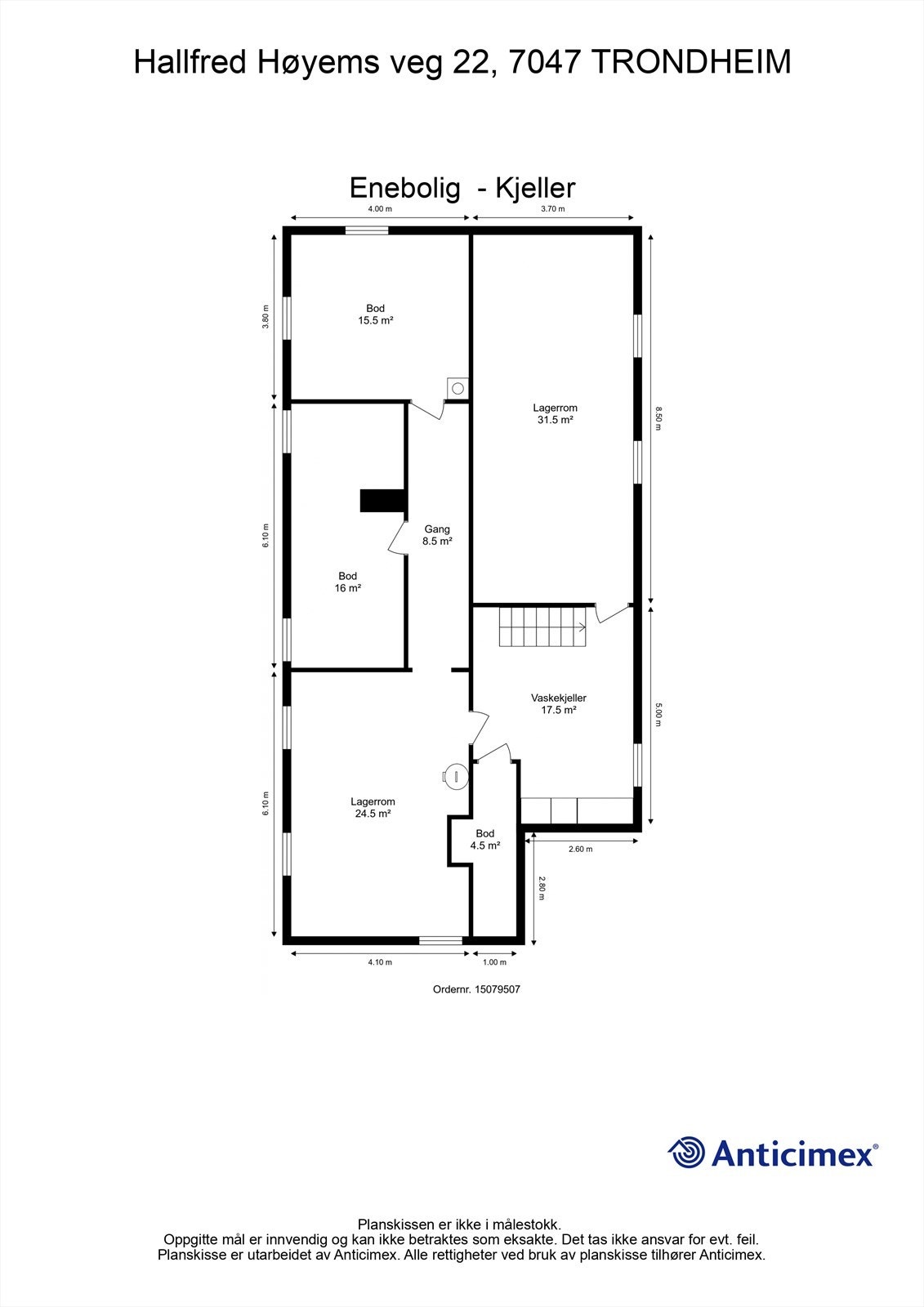
- Praktisk vaskekjeller (ikke godkjent)
- Tre store soverom, opprinnelig byggemeldt med et ekstra
- Rikelig med bodareal i godkjent del av kjelleren
- Carport og flere biloppstillingsplasser på tomten
- Kort vei til barnehage, skole og dagligvare
- Rolig og barnevennlig område med lite trafikk pga. blindvei
Verdt å nevne:
- Delikat HTH-kjøkken fra 2016 med integrerte hvitevarer
- Romslig stue- og kjøkkenløsning med gode møbleringsmuligheter
- Utgang fra stuen til solrik terrasse på hele 54 kvm
- Pent, flislagt bad med gulvvarme (delvis godkjent)
- Praktisk vaskekjeller (ikke godkjent)
- Tre store soverom, opprinnelig byggemeldt med et ekstra
- Rikelig med bodareal i godkjent del av kjelleren
- Carport og flere biloppstillingsplasser på tomten
- Kort vei til barnehage, skole og dagligvare
- Rolig og barnevennlig område med lite trafikk pga. blindvei
NB: Knappen for å vise hele beskrivelsen har kun en visuell effekt.
NB: Knappen for å vise hele beskrivelsen har kun en visuell effekt.
Salgsoppgaven beskriver vesentlig og lovpålagt informasjon om eiendommen
Se komplett salgsoppgaveNyttige lenker
Nærområdet
Krogsveen Trondheim
Verdien av en god megler.
Annonseinformasjon
| FINN-kode | 454828330 |
|---|---|
| Sist endret | 19. mars 2026 11:13 |
| Referanse | KR68.2620 |
Annonsene kan være mangelfulle i forhold til lovpålagt opplysningsplikt. Før bindende avtale inngås oppfordres interessenter til å innhente komplett informasjon fra meglerforetaket, selger eller utleier.
























