Bildegalleri

Velkommen til Midteggen 4A - En innholdsrik 3-roms leilighet i toppetasje med hjørnebeliggenhet. Foto: Harald Wanvik.
Saupstad
Flott 3-roms leilighet i toppetasje med hjørnebeliggenhet | Barnevennlig og rolig område | Vestvendt balkong | Parkering
Prisantydning2 690 000 kr
Nøkkelinfo
- Boligtype
- Leilighet
- Eieform
- Andel
- Soverom
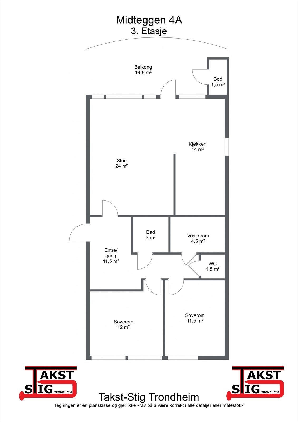
- 2
- Internt bruksareal
- 85 m² (BRA-i)
- Bruksareal
- 101 m²
- Eksternt bruksareal
- 16 m² (BRA-e)
- Balkong/Terrasse
- 14 m² (TBA)
- Etasje
- 3
- Byggeår
- 1975
- Energimerking
- Rom
- 3
- Tomteareal
- 20 333 m² (eiet)
Fasiliteter
Balkong/Terrasse
Barnevennlig
Bredbåndstilknytning
Garasje/P-plass
Kjæledyr tillatt
Ingen gjenboere
Kabel-TV
Offentlig vann/kloakk
Rolig
Sentralt
Turterreng
Visning
mandag, 23. mars
16:30 – 17:30
Alle våre visninger har påmelding. Meld deg opp til ønsket visningstidspunkt via linken visningspåmelding , eller kontakt megler på telefon, SMS eller mail. Vi anbefaler at salgsoppgaven lastes ned digitalt, og oppfordrer alle til å lese komplett salgsoppgave før visning. Skulle det mot formodning ikke være påmeldte til angitt visningstidspunkt vil ikke visning bli gjennomført.
VisningspåmeldingOm boligen
Velkommen til Midteggen 4A!
En lys og åpen 3-roms leilighet med attraktiv hjørnebeliggenhet. Leiligheten byr på en god planløsning med åpen stue-/kjøkkenløsning, 2 soverom av god størrelse, bad, separat toalett og vaskerom. Boligen har også en romslig vestvendt balkong med gode solforhold. Her bor man i et rolig og barnevennlig område på Saupstad med nærhet til Bymarka.
Verdt å merke seg:
En lys og åpen 3-roms leilighet med attraktiv hjørnebeliggenhet. Leiligheten byr på en god planløsning med åpen stue-/kjøkkenløsning, 2 soverom av god størrelse, bad, separat toalett og vaskerom. Boligen har også en romslig vestvendt balkong med gode solforhold. Her bor man i et rolig og barnevennlig område på Saupstad med nærhet til Bymarka.
Verdt å merke seg:
- Toppetasje og hjørnebeliggenhet
- Vestvendt balkong
- Parkering
- Barnevennlig område
- Rause vindusflater som gir mye naturlig lysinnslipp
- Nærhet til skog og mark
Velkommen til visning!
NB: Knappen for å vise hele beskrivelsen har kun en visuell effekt.
NB: Knappen for å vise hele beskrivelsen har kun en visuell effekt.
Salgsoppgaven beskriver vesentlig og lovpålagt informasjon om eiendommen
Se komplett salgsoppgaveNyttige lenker
Nærområdet
Heimdal Eiendomsmegling avd. Heimdal
Annonseinformasjon
| FINN-kode | 454812616 |
|---|---|
| Sist endret | 18. mars 2026 08:54 |
| Referanse | 8-26-0041 |
Annonsene kan være mangelfulle i forhold til lovpålagt opplysningsplikt. Før bindende avtale inngås oppfordres interessenter til å innhente komplett informasjon fra meglerforetaket, selger eller utleier.





















