Bildegalleri

Velkommen til Prestetjørnvegen 8
Enebolig med fantastisk utsikt og barnevennlig beliggenhet
Prisantydning3 990 000 kr
Nøkkelinfo
- Boligtype
- Enebolig
- Eieform
- Eier (Selveier)
- Soverom
- 2
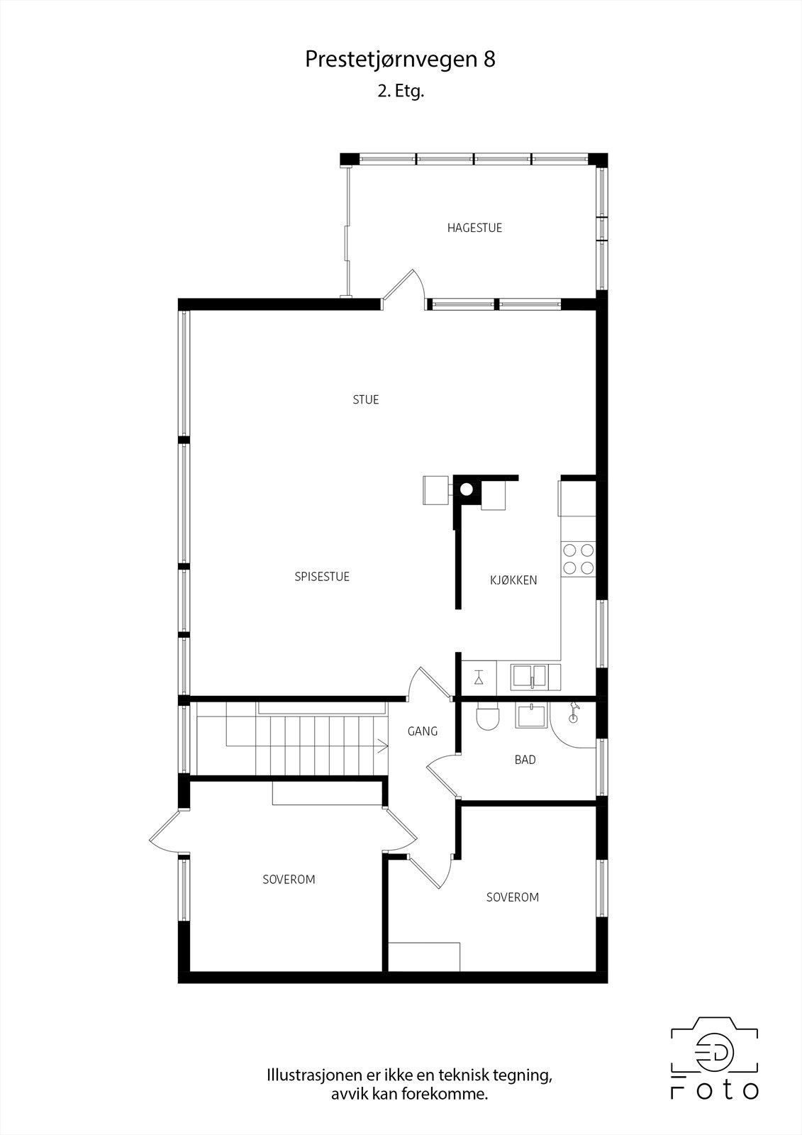
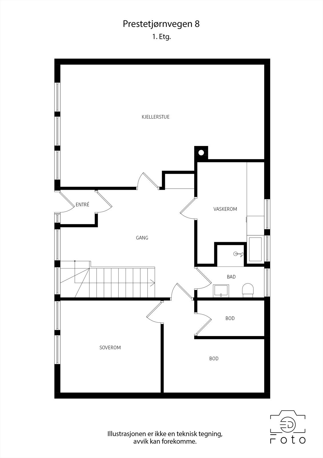
- Internt bruksareal
- 164 m² (BRA-i)
- Bruksareal
- 177 m²
- Innglasset balkong
- 13 m² (BRA-b)
- Balkong/Terrasse
- 65 m² (TBA)
- Etasje
- 2
- Byggeår
- 1971
- Energimerking
- Rom
- 4
- Tomteareal
- 993 m² (eiet)
Fasiliteter
Balkong/Terrasse
Barnevennlig
Bredbåndstilknytning
Garasje/P-plass
Hage
Kjæledyr tillatt
Offentlig vann/kloakk
Peis/Ildsted
Rolig
Sentralt
Utsikt
Turterreng
Visning
mandag, 23. mars
16:00 – 17:00
Ønsker du å delta på visningen ber vi deg melde deg på slik at vi vet at du kommer. Da kan vi bistå alle best mulig og gi deg tiden du trenger på visningen. Kontakt gjerne megler før visning hvis du har spørsmål. Visningen avholdes bare dersom det er påmeldte. Hvis det ikke er oppsatt visningstidspunkt eller tidspunkt ikke passer, kontakt megler.
VisningspåmeldingOm boligen
Velkommen til Prestetjørnevegen 8 en enebolig fra 1971 som er jevnlig vedlikeholdt og delvis oppgradert. Boligen holder en god standard i henhold til byggeåret, men oppgraderinger og modernisering må påregnes grunnet alder. Både bad og kjøkken er pusset opp én gang siden byggeåret, og enkelte vinduer er byttet ut. Boligen gir dermed et godt utgangspunkt for videre tilpasninger.
Eiendommen ligger i et rolig og etablert boligstrøk i Prestamarka på Tau, med kort avstand til butikk, ungdomsskole, barneskole og barnehage. Boligen er flott plassert og byr på en nydelig utsikt over fjorden
Eiendommen ligger i et rolig og etablert boligstrøk i Prestamarka på Tau, med kort avstand til butikk, ungdomsskole, barneskole og barnehage. Boligen er flott plassert og byr på en nydelig utsikt over fjorden
NB: Knappen for å vise hele beskrivelsen har kun en visuell effekt.
NB: Knappen for å vise hele beskrivelsen har kun en visuell effekt.
Salgsoppgaven beskriver vesentlig og lovpålagt informasjon om eiendommen
Se komplett salgsoppgaveNyttige lenker
Nærområdet
EiendomsMegler 1 Ryfylke
En del av Sparebank 1 Sør-Norge
Annonseinformasjon
| FINN-kode | 454799801 |
|---|---|
| Sist endret | 12. mars 2026 08:59 |
| Referanse | 2209260011 |
Annonsene kan være mangelfulle i forhold til lovpålagt opplysningsplikt. Før bindende avtale inngås oppfordres interessenter til å innhente komplett informasjon fra meglerforetaket, selger eller utleier.











































