Bildegalleri

Velkommen til en strøken 2-roms med glimrende beliggenhet på Sverresborg.
Sverresborg
Strøken 2-roms endeleilighet i 2.etg. Omfattende oppusset i 2026. P-plass. Solrik, innglasset balkong. Like ved Bymarka.
Prisantydning2 990 000 kr
Nøkkelinfo
- Boligtype
- Leilighet
- Eieform
- Aksje
- Soverom
- 1
- Internt bruksareal
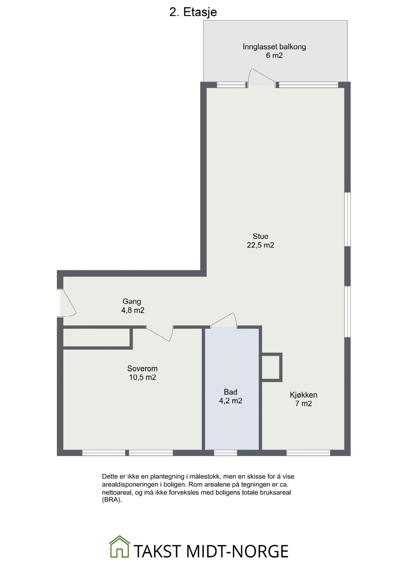
- 54 m² (BRA-i)
- Bruksareal
- 74 m²
- Eksternt bruksareal
- 14 m² (BRA-e)
- Innglasset balkong
- 6 m² (BRA-b)
- Etasje
- 2
- Byggeår
- 1954
- Energimerking
- E - Oransje
- Rom
- 2
- Tomteareal
- 2 224 m² (eiet)
Fasiliteter
Balkong/Terrasse
Barnevennlig
Bredbåndstilknytning
Garasje/P-plass
Ingen gjenboere
Kabel-TV
Lademulighet
Moderne
Offentlig vann/kloakk
Peis/Ildsted
Rolig
Sentralt
Utsikt
Vaktmester-/vektertjeneste
Turterreng
Visning
onsdag, 18. mars
17:30 – 18:15
Velkommen til visning!Alle våre visninger har påmelding. På denne måten sikrer vi at megler har god oversikt og tid til å imøtekomme alle interessenter på beste måte. Dette er veldig verdifullt for boligkjøpere og for oss. Det er enkelt å melde seg på, og du kan like enkelt melde deg av. Kontakt også gjerne megler i forkant av visning dersom du har spørsmål.
Om boligen
Strøken 2-roms endeleilighet med glimrende beliggenhet på Sverresborg. Leiligheten fremstår med en høy moderne standard og er totalrenovert av fagfolk i 2026 med kvalitetsmaterialer og flotte detaljer.
Her bor man like ved Bymarka, tilbaketrukket fra bybildet, likevel sentralt med gangavstand inn til bykjernen av Trondheim. Bygget har gått gjennom en omfattende renovering med blant annet nytt tak, fasade, vinduer og rør i 2020.
- Romslig leilighet med godt utnyttet planløsning.
- Endeplassering med ekstra vindu og gode lysforhold.
- Lekkert, flislagt bad som er totalrenovert i 2026.
- Nydelig kjøkken fra 2026 med integrerte hvitevarer.
- Behagelig oppvarming i gulv.
- Mulighet for å sette inn vedovn.
- Innglasset balkong med fine solforhold.
- Soverom på 10,5 kvm med vindu mot rolig område.
- Egen p-plass like utenfor bygget.
- God lagring med to boder i kjeller og én på loft.
- 2 min gange til nærmeste bussholdeplass.
- Byåsen Butikksenter og Sverresborg Senter innen 5 min.
Her bor man like ved Bymarka, tilbaketrukket fra bybildet, likevel sentralt med gangavstand inn til bykjernen av Trondheim. Bygget har gått gjennom en omfattende renovering med blant annet nytt tak, fasade, vinduer og rør i 2020.
- Romslig leilighet med godt utnyttet planløsning.
- Endeplassering med ekstra vindu og gode lysforhold.
- Lekkert, flislagt bad som er totalrenovert i 2026.
- Nydelig kjøkken fra 2026 med integrerte hvitevarer.
- Behagelig oppvarming i gulv.
- Mulighet for å sette inn vedovn.
- Innglasset balkong med fine solforhold.
- Soverom på 10,5 kvm med vindu mot rolig område.
- Egen p-plass like utenfor bygget.
- God lagring med to boder i kjeller og én på loft.
- 2 min gange til nærmeste bussholdeplass.
- Byåsen Butikksenter og Sverresborg Senter innen 5 min.
NB: Knappen for å vise hele beskrivelsen har kun en visuell effekt.
NB: Knappen for å vise hele beskrivelsen har kun en visuell effekt.
Salgsoppgaven beskriver vesentlig og lovpålagt informasjon om eiendommen
Se komplett salgsoppgaveNyttige lenker
Nærområdet

PrivatMegleren Trondheim
Kun det beste på dine vegne
Annonseinformasjon
| FINN-kode | 454781362 |
|---|---|
| Sist endret | 11. mars 2026 11:46 |
| Referanse | 114260069 |
Annonsene kan være mangelfulle i forhold til lovpålagt opplysningsplikt. Før bindende avtale inngås oppfordres interessenter til å innhente komplett informasjon fra meglerforetaket, selger eller utleier.





































