Bildegalleri

EiendomsMegler 1 v/Martin Grodås Alnes har gleden av å presentere Sætresvingane 86! Foto - Svein Olav Humberset v/EFKT
Bøanedsetra
Fantastisk fritidsbolig over to plan med attraktiv beliggenhet | 4 Soverom | God utsikt & Solforhold | Ski-in/ski-out
Prisantydning4 850 000 kr
- Omkostninger
- 122 340 kr
- Totalpris
- 4 972 340 kr
- Kommunale avg.
- 14 080 kr per år
- Formuesverdi
- 696 913 kr
- Verditakst
- 4 800 000 kr
Nøkkelinfo
- Boligtype
- Hytte
- Eieform
- Eier (Selveier)
- Internt bruksareal
- 131 m² (BRA-i)
- Bruksareal
- 135 m²
- Eksternt bruksareal
- 4 m² (BRA-e)
- Balkong/Terrasse
- 58 m² (TBA)
- Tomteareal
- 863 m² (eiet)
- Byggeår
- 2009
- Soverom
- 4
- Rom
- 5
- Sengeplasser
- 10
- Energimerking
- C - Lysegrønn
Fasiliteter
Balkong/Terrasse
Garasje/P-plass
Offentlig vann/kloakk
Peis/Ildsted
Turterreng
Utsikt
Bilvei frem
Innlagt strøm
Visning
søndag, 29. mars
14:00 – 15:00
Våre visninger har påmelding. Dette gjør vi for å kunne yte bedre service for våre kunder. Verdifullt for boligkjøper og for oss. Vi anbefaler at salgsoppgaven lastes ned digitalt før visning, og ring oss gjerne på forhånd for spørsmål om boligen. Passer ikke angitt tidspunkt, ta kontakt så finner vi en løsning. Skulle det mot formodning ikke være påmeldte til angitt visningstidspunkt vil ikke visning bli gjennomført.
Husk å lese komplett salgsoppgave før visning. Bestill komplett, utskriftsvennlig salgsoppgave.
VisningspåmeldingOm boligen
EiendomsMegler 1 v/Martin Grodås Alnes har gleden av å presentere denne flotte fritidsboligen! Hytten ble oppført i 2009 og holder gjennomgående god standard.
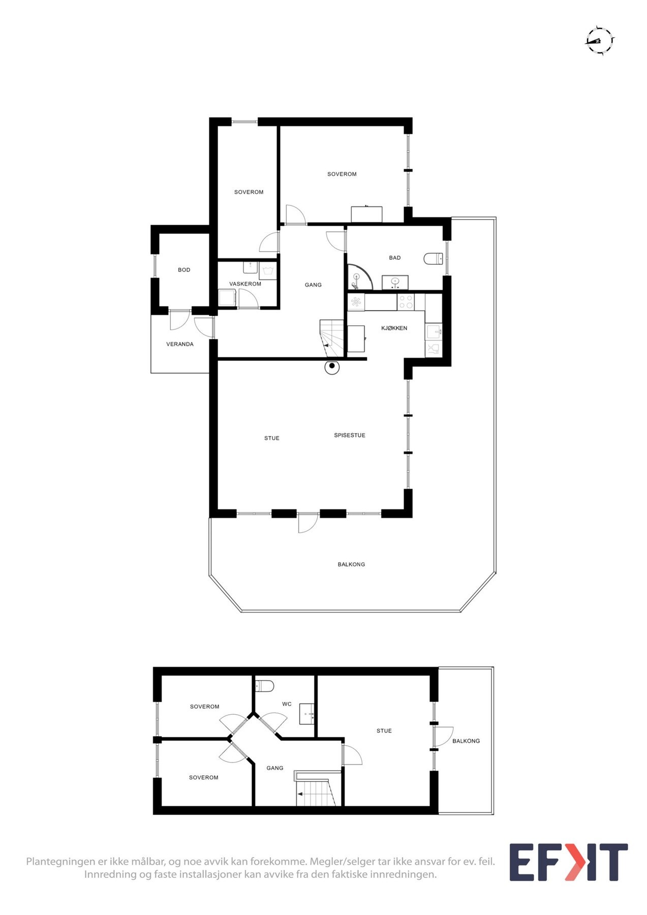
Boligen går over to plan og har en praktisk og innholdsrik planløsning.
Hovedetasje: Entré, gang, vaskerom, to soverom, bad, stue og kjøkken.
Loftsetasje: Loftstue, to soverom og bad.
Utvendig har du bod på ca. 4.4 m² og en stor terrasse på hele 50 m². Du har også en balkong på loftetasjen på 8 m².
Eiendommen er beliggende i Bøanedsetra Hyttegrend i Stryn, i naturskjønne omgivelser med gode rekreasjonsmuligheter året rundt. Fra eiendommen er det ski in/ski out til Stryn alpinanlegg sitt løypenett og kort avstand til turløper, klartepark og Hydlastova.
Hytten har vært godt vedlikeholdt gjennom årene og har aldri blitt brukt som utleie, den er også blitt levert av lokal leverandør og har påkostet med flott naturstein mur for å optimalisere tomten.
Velkommen til visning - husk påmelding!
Boligen går over to plan og har en praktisk og innholdsrik planløsning.
Hovedetasje: Entré, gang, vaskerom, to soverom, bad, stue og kjøkken.
Loftsetasje: Loftstue, to soverom og bad.
Utvendig har du bod på ca. 4.4 m² og en stor terrasse på hele 50 m². Du har også en balkong på loftetasjen på 8 m².
Eiendommen er beliggende i Bøanedsetra Hyttegrend i Stryn, i naturskjønne omgivelser med gode rekreasjonsmuligheter året rundt. Fra eiendommen er det ski in/ski out til Stryn alpinanlegg sitt løypenett og kort avstand til turløper, klartepark og Hydlastova.
Hytten har vært godt vedlikeholdt gjennom årene og har aldri blitt brukt som utleie, den er også blitt levert av lokal leverandør og har påkostet med flott naturstein mur for å optimalisere tomten.
Velkommen til visning - husk påmelding!
NB: Knappen for å vise hele beskrivelsen har kun en visuell effekt.
NB: Knappen for å vise hele beskrivelsen har kun en visuell effekt.
Salgsoppgaven beskriver vesentlig og lovpålagt informasjon om eiendommen
Se komplett salgsoppgaveNyttige lenker
Nærområdet
EiendomsMegler 1 Søre Sunnmøre
Vi loser deg trygt gjennom hele boligsalget
Annonseinformasjon
| FINN-kode | 454774632 |
|---|---|
| Sist endret | 14. mars 2026 12:00 |
| Referanse | 22260022 |
Annonsene kan være mangelfulle i forhold til lovpålagt opplysningsplikt. Før bindende avtale inngås oppfordres interessenter til å innhente komplett informasjon fra meglerforetaket, selger eller utleier.










































