Bildegalleri

Velkommen til Lauvåsen 34!
Fevik
Fantastisk beliggende enebolig med stor tomt og idyllisk hage - Vakker utsikt mot Skagerrak - Garasje fra 2014
Prisantydning7 990 000 kr
Nøkkelinfo
- Boligtype
- Enebolig
- Eieform
- Eier (Selveier)
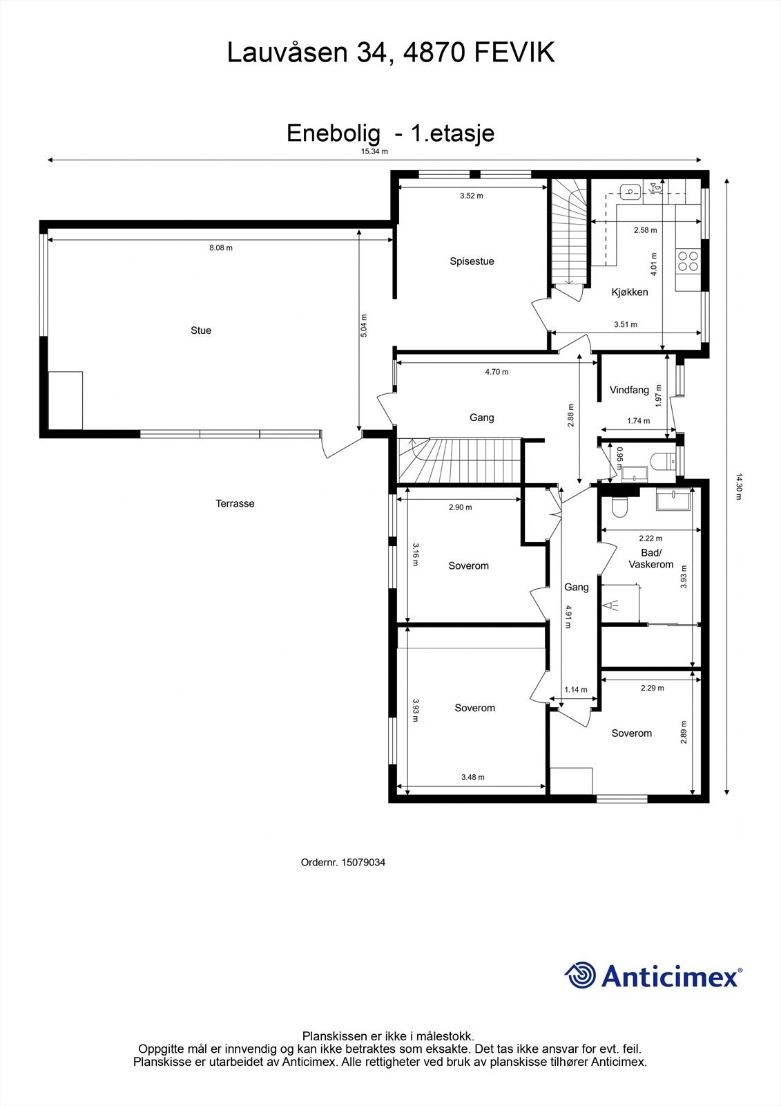
- Soverom
- 3
- Internt bruksareal
- 235 m² (BRA-i)
- Bruksareal
- 266 m²
- Eksternt bruksareal
- 31 m² (BRA-e)
- Balkong/Terrasse
- 41 m² (TBA)
- Etasje
- 2
- Byggeår
- 1967
- Rom
- 6
- Tomteareal
- 1 494 m² (eiet)
Fasiliteter
Balkong/Terrasse
Barnevennlig
Bredbåndstilknytning
Garasje/P-plass
Hage
Kjæledyr tillatt
Ingen gjenboere
Offentlig vann/kloakk
Parkett
Peis/Ildsted
Rolig
Sentralt
Utsikt
Bademulighet
Turterreng
Lademulighet
Visning
tirsdag, 24. mars
16:00 – 17:00
For å delta på visning, ber vi om at du melder deg på. Da sikrer vi at du får nødvendig informasjon og at det er satt av tilstrekkelig med tid. Kontakt megler dersom annet tidspunkt ønskes. Husk å lese salgsoppgaven før visningen, så du stiller forberedt. NB. Visning utgår dersom det ikke er noen påmeldte. Ønsker du kun å bli holdt orientert, kan du fra eiendommens hjemmeside få varsel om solgtpris, eller kontakte megler.
VisningspåmeldingOm boligen
Velkommen til Lauvåsen 34! Her får du en stor, skjermet enebolig med nydelig utsikt mot havet og gode solforhold.
Lauvåsen 34 ligger sentralt og barnevennlig til på Fevik, med kort vei til alt du trenger i hverdagen. Like nedenfor bakken finner man skoler, barnehager og Feviktoppen med butikker og apotek. Området byr på flotte turmuligheter i Fevikmarka og idylliske badeplasser som Storesand, perfekt for en aktiv og familievennlig livsstil.
Høydepunkter:
Lauvåsen 34 ligger sentralt og barnevennlig til på Fevik, med kort vei til alt du trenger i hverdagen. Like nedenfor bakken finner man skoler, barnehager og Feviktoppen med butikker og apotek. Området byr på flotte turmuligheter i Fevikmarka og idylliske badeplasser som Storesand, perfekt for en aktiv og familievennlig livsstil.
Høydepunkter:
- Flott utsikt mot havet og skipsleia
- Stor og pent opparbeidet tomt på ca. 1,5 mål
- Idyllisk og usjenert hage
- Terrasse på 41 m² med utgang fra stuen
- Garasje på 31 m² fra 2014
- Sol fra ca. kl. 05-21:00 midtsommers.
NB: Knappen for å vise hele beskrivelsen har kun en visuell effekt.
NB: Knappen for å vise hele beskrivelsen har kun en visuell effekt.
Salgsoppgaven beskriver vesentlig og lovpålagt informasjon om eiendommen
Se komplett salgsoppgaveNyttige lenker
Nærområdet
Krogsveen Arendal
Verdien av en god megler.
Annonseinformasjon
| FINN-kode | 454771011 |
|---|---|
| Sist endret | 13. mars 2026 07:40 |
| Referanse | KR47.269 |
Annonsene kan være mangelfulle i forhold til lovpålagt opplysningsplikt. Før bindende avtale inngås oppfordres interessenter til å innhente komplett informasjon fra meglerforetaket, selger eller utleier.

















































