Bildegalleri

EiendomsMegler 1 v/ Rikke Pernille Pettersen ønsker deg velkommen til Kveldroveien 23! Foto: Lunde Images AS
ANDØY
enebolig m. utleiedel | Vedfyring og varmepumpe | Barnevennlig beliggenhet | Gode parkeringsmuligheter
Prisantydning2 300 000 kr
Nøkkelinfo
- Boligtype
- Enebolig
- Eieform
- Selveier
- Soverom
- 2
- Internt bruksareal
- 246 m² (BRA-i)
- Bruksareal
- 326 m²
- Eksternt bruksareal
- 80 m² (BRA-e)
- Balkong/Terrasse
- 32 m² (TBA)
- Etasje
- 3
- Byggeår
- 1971
- Energimerking
- Rom
- 4
- Tomteareal
- 1 085 m² (eiet)
Fasiliteter
Barnevennlig
Balkong/Terrasse
Garasje/P-plass
Fiskemulighet
Peis/Ildsted
Turterreng
Utsikt
Sentralt
Rolig
Bademulighet
Om boligen
EiendomsMegler1 v/ Rikke Pernille Pettersen ønsker deg velkommen til Kveldroveien 23 - en innholdsrik enebolig i attraktive og barnevennlige omgivelser i Risøyhamn. Her bor du sentralt til med kort vei til barnehage, skole og dagligvarebutikk. Rolig boligområde med naturen rett utenfor døren, og flott utsikt i flere retninger.
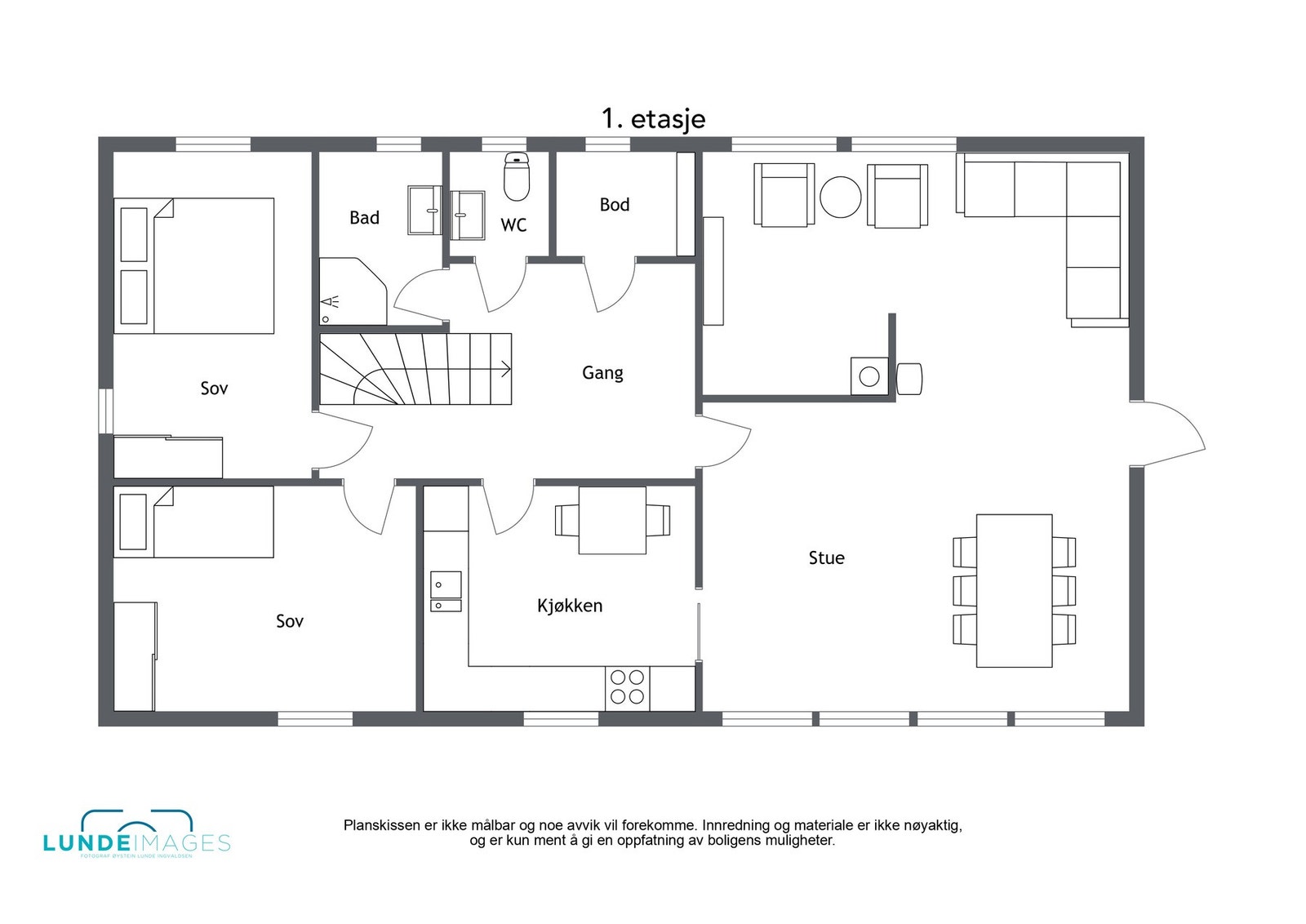
Boligen fra 1971 går over tre plan og byr på en romslig og praktisk planløsning med flere oppholdsrom, gode lagringsmuligheter, hyggelig uteplass og egen utleiedel - perfekt for deg som ønsker fleksibilitet i hverdagen eller ekstra inntektsmulighet. I tillegg får du gode parkeringsmuligheter med integrert garasje, biloppstillingsplasser, samt frittstående garasje på tilleggstomt.
Boligen har normal standard, men det kan påregnes noe modernisering og vedlikehold. Her har du mulighet til å forme ditt eget drømmehjem i naturskjønne omgivelser, med det meste innen gangavstand.
Velkommen til visning!
Boligen fra 1971 går over tre plan og byr på en romslig og praktisk planløsning med flere oppholdsrom, gode lagringsmuligheter, hyggelig uteplass og egen utleiedel - perfekt for deg som ønsker fleksibilitet i hverdagen eller ekstra inntektsmulighet. I tillegg får du gode parkeringsmuligheter med integrert garasje, biloppstillingsplasser, samt frittstående garasje på tilleggstomt.
Boligen har normal standard, men det kan påregnes noe modernisering og vedlikehold. Her har du mulighet til å forme ditt eget drømmehjem i naturskjønne omgivelser, med det meste innen gangavstand.
Velkommen til visning!
NB: Knappen for å vise hele beskrivelsen har kun en visuell effekt.
NB: Knappen for å vise hele beskrivelsen har kun en visuell effekt.
Salgsoppgaven beskriver vesentlig og lovpålagt informasjon om eiendommen
Se komplett salgsoppgaveNyttige lenker
Nærområdet
EiendomsMegler 1 Andenes
Vi er der du er - EiendomsMegler 1
Annonseinformasjon
| FINN-kode | 454769501 |
|---|---|
| Sist endret | 30. mars 2026 07:51 |
| Referanse | 28260005 |
Annonsene kan være mangelfulle i forhold til lovpålagt opplysningsplikt. Før bindende avtale inngås oppfordres interessenter til å innhente komplett informasjon fra meglerforetaket, selger eller utleier.

























































