Bildegalleri

EiendomsMegler1 v/Are Olsen presenterer Svevalivegen 62A! Foto: Inbovi.
Nordagutu
Enebolig med stor tomt og gode solforhold. Stort potensiale, men oppgraderingsbehov.
Prisantydning1 550 000 kr
Nøkkelinfo
- Boligtype
- Enebolig
- Eieform
- Eier (Selveier)
- Soverom
- 3
- Internt bruksareal
- 147 m² (BRA-i)
- Bruksareal
- 147 m²
- Balkong/Terrasse
- 10 m² (TBA)
- Byggeår
- 1963
- Tomteareal
- 1 321 m² (eiet)
Fasiliteter
Balkong/Terrasse
Barnevennlig
Bredbåndstilknytning
Garasje/P-plass
Hage
Parkett
Peis/Ildsted
Rolig
Utsikt
Turterreng
Visning
onsdag, 25. mars
16:00 – 17:00
Ønsker du å delta på visning så ber vi om at du melder deg på slik at vi vet at du kommer og slik at vi kan orientere deg om bud. Visninger hvor det ikke er påmeldte på forhånd vil ikke bli avholdt.
VisningspåmeldingOm boligen
Koselig og innholdsrik enebolig beliggende fint og sentralt til på Nordagutu, i et veletablert og barnevennlig boligområde. Boligen ligger høyt og fritt til, på stor tomt, med sydvestvendt veranda. Gode solforhold og nydelig utsikt!
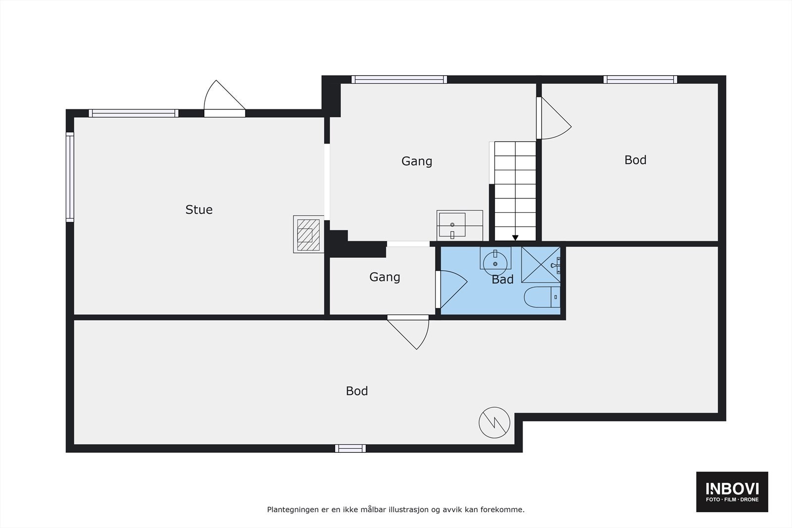
Boligen inneholder entré, gang, stue, kjøkken, bad og tre soverom i hovedetasjen, samt kjellerstue, bad, vaskerom, gang og to boder i underetasjen. Tomten er på hele 1 321,2 m² og er pent opparbeidet med plen, variert beplantning og gruset gårdsplass.
Boligområdet er rolig og barnevennlig, med barnehage og pent opparbeidet idrettsanlegg med fotballbaner rett i nærheten. Dagligvare ved Joker Nordagutu, som ligger innen gangavstand. Gangavstand er det også Nordagutu stasjon. Det er ca. 8 minutter med bil til Akkerhaugen, som er et populært sted sommerstid.
Boligen inneholder entré, gang, stue, kjøkken, bad og tre soverom i hovedetasjen, samt kjellerstue, bad, vaskerom, gang og to boder i underetasjen. Tomten er på hele 1 321,2 m² og er pent opparbeidet med plen, variert beplantning og gruset gårdsplass.
Boligområdet er rolig og barnevennlig, med barnehage og pent opparbeidet idrettsanlegg med fotballbaner rett i nærheten. Dagligvare ved Joker Nordagutu, som ligger innen gangavstand. Gangavstand er det også Nordagutu stasjon. Det er ca. 8 minutter med bil til Akkerhaugen, som er et populært sted sommerstid.
NB: Knappen for å vise hele beskrivelsen har kun en visuell effekt.
NB: Knappen for å vise hele beskrivelsen har kun en visuell effekt.
Salgsoppgaven beskriver vesentlig og lovpålagt informasjon om eiendommen
Se komplett salgsoppgaveNyttige lenker
Nærområdet
Eiendomsmegler 1 Midt-Telemark og Notodden
et foretak i SpareBank 1 Sør-Norge konsernet
Annonseinformasjon
| FINN-kode | 454764214 |
|---|---|
| Sist endret | 17. mars 2026 17:56 |
| Referanse | 1414260007 |
Annonsene kan være mangelfulle i forhold til lovpålagt opplysningsplikt. Før bindende avtale inngås oppfordres interessenter til å innhente komplett informasjon fra meglerforetaket, selger eller utleier.
































