Bildegalleri

Velkommen Lønnvegen 2A!
RIDABU
Familievennlig og innholdsrik bolig. 4 soverom. Hyggelig og barnevennlig område.
Prisantydning4 990 000 kr
Nøkkelinfo
- Boligtype
- Enebolig
- Eieform
- Selveier
- Soverom
- 4
- Internt bruksareal
- 212 m² (BRA-i)
- Bruksareal
- 216 m²
- Eksternt bruksareal
- 20 m² (BRA-e)
- Balkong/Terrasse
- 5 m² (TBA)
- Byggeår
- 1963
- Energimerking
- G - Rød
- Tomteareal
- 666 m² (eiet)
Fasiliteter
Barnevennlig
Balkong/Terrasse
Garasje/P-plass
Kabel-TV
Offentlig vann/kloakk
Peis/Ildsted
Turterreng
Bredbåndstilknytning
Rolig
Om boligen
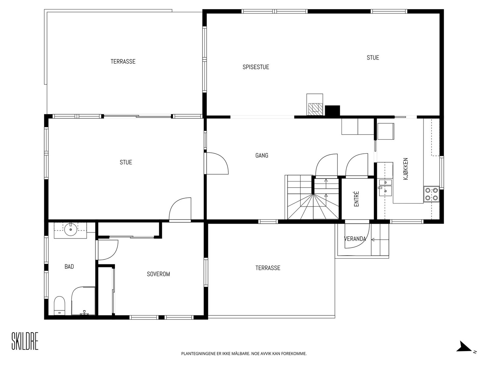
Romslig enebolig over to plan med kjeller, beliggende i et etablert og rolig boligområde på Ridabu. Boligen har en praktisk og familievennlig planløsning med flere oppholdsrom og gode oppbevaringsmuligheter.
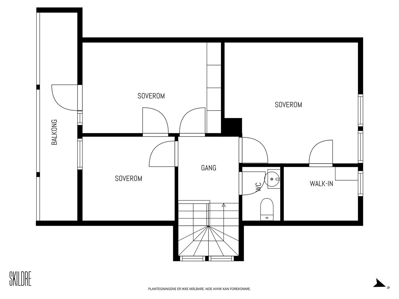
På hovedplanet finner man kjøkken med tilknytning til stue og spisestue, som gir et naturlig samlingspunkt i boligen. I tillegg er det en ekstra stue som kan benyttes som TV-stue, oppholdsrom eller hjemmekontor. Etasjen inneholder også ett soverom samt bad. Boligens 2. etasje består av tre soverom, toalettrom og bod. Planløsningen gir gode muligheter for en egen soveromsavdeling i etasjen.
Kjelleren inneholder kjellerstue, vaskerom og bad, samt flere boder som gir gode lagringsmuligheter.
Kjellerstuen kan fungere som et ekstra oppholdsrom, hobbyrom eller som oppholdsrom for ungdom eller gjester.
På eiendommen står også en garasje med plass til én bil.
Praktisk familiebolig med god planløsning og flere oppholdsrom fordelt over tre plan.
Velkommen til visning - husk påmelding!
På hovedplanet finner man kjøkken med tilknytning til stue og spisestue, som gir et naturlig samlingspunkt i boligen. I tillegg er det en ekstra stue som kan benyttes som TV-stue, oppholdsrom eller hjemmekontor. Etasjen inneholder også ett soverom samt bad. Boligens 2. etasje består av tre soverom, toalettrom og bod. Planløsningen gir gode muligheter for en egen soveromsavdeling i etasjen.
Kjelleren inneholder kjellerstue, vaskerom og bad, samt flere boder som gir gode lagringsmuligheter.
Kjellerstuen kan fungere som et ekstra oppholdsrom, hobbyrom eller som oppholdsrom for ungdom eller gjester.
På eiendommen står også en garasje med plass til én bil.
Praktisk familiebolig med god planløsning og flere oppholdsrom fordelt over tre plan.
Velkommen til visning - husk påmelding!
NB: Knappen for å vise hele beskrivelsen har kun en visuell effekt.
NB: Knappen for å vise hele beskrivelsen har kun en visuell effekt.
Salgsoppgaven beskriver vesentlig og lovpålagt informasjon om eiendommen
Se komplett salgsoppgaveNærområdet
Partners Eiendomsmegling
Verdien av lokalkunnskap
Annonseinformasjon
| FINN-kode | 454761143 |
|---|---|
| Sist endret | 19. mars 2026 11:39 |
| Referanse | 95260008 |
Annonsene kan være mangelfulle i forhold til lovpålagt opplysningsplikt. Før bindende avtale inngås oppfordres interessenter til å innhente komplett informasjon fra meglerforetaket, selger eller utleier.











































