Bildegalleri

Enebolig med fine utesoner og dobbel garasje.
Aspervika
Kjekk og romslig, vertikaldelt familiebolig | Gode uteplasser | Dobbel garasje | Barnevennlig område
Prisantydning4 950 000 kr
Nøkkelinfo
- Boligtype
- Tomannsbolig
- Eieform
- Eier (Selveier)
- Soverom
- 3
- Internt bruksareal
- 155 m² (BRA-i)
- Bruksareal
- 190 m²
- Eksternt bruksareal
- 35 m² (BRA-e)
- Balkong/Terrasse
- 72 m² (TBA)
- Byggeår
- 1989
- Energimerking
- Rom
- 1
- Tomteareal
- 338 m² (eiet)
Fasiliteter
Balkong/Terrasse
Barnevennlig
Garasje/P-plass
Peis/Ildsted
Rolig
Turterreng
Lademulighet
Visning
onsdag, 18. mars
16:00 – 17:00
For at vår megler og selger skal kunne gi deg den beste oppfølgingen og kjøpsopplevelsen er det obligatorisk påmelding til alle våre visninger. Dersom ditt reserverte tidspunkt likevel ikke kan benyttes trenger vi beskjed så tidlig som mulig sånn at vi kan finne en alternativ løsning. Vi har alltid tid til deg. Visninger uten påmeldte deltagere avlyses.
VisningspåmeldingOm boligen
Velkommen til et trivelig hjem i rolige og naturskjønne omgivelser.
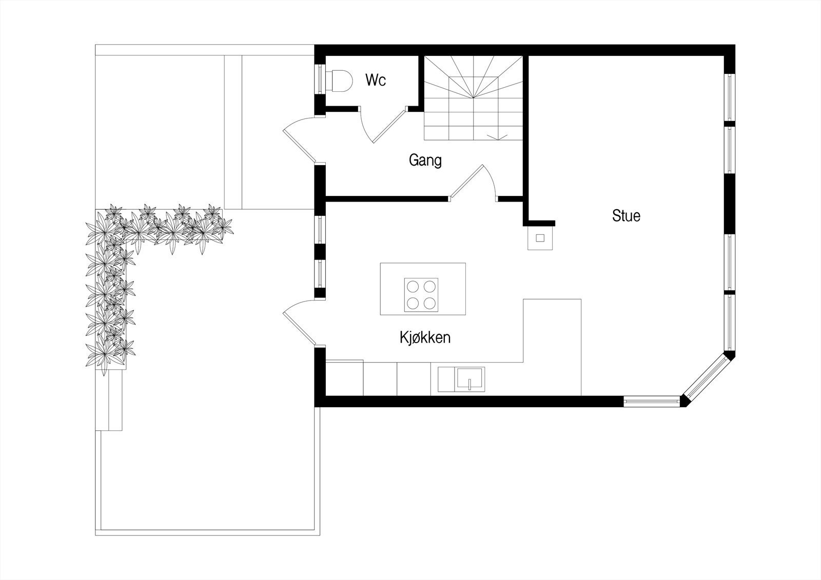
Boligen går over tre etasjer og har en god planløsning tilpasset både hverdag og sosiale sammenkomster.
Lys stue med åpen kjøkkenløsning og god plass til spisebord i karnapp med utsikt mot fjellene. Entré med gjestetoalett. Fra kjøkken er det utgang uteområder med nyere terrasse og pergola. På nedsiden finner du en skjermet terrasse med innfelt jacuzzi.
I 2. etasje er det baderom og tre soverom, hvor hovedsoverommet har balkong med flott utsikt mot Gandsfjorden.
Sokkeletasjen inneholder stue, bad og vaskerom (rom for varig opphold ikke byggemeldt).
Lettstelt uteområde med fine soner og dobbel garasje.
Trygge og rolige omgivelser i populære Aspervika. Omringet av fjord og fjell, kun 5 minutter fra sentrum.
Boligen går over tre etasjer og har en god planløsning tilpasset både hverdag og sosiale sammenkomster.
Lys stue med åpen kjøkkenløsning og god plass til spisebord i karnapp med utsikt mot fjellene. Entré med gjestetoalett. Fra kjøkken er det utgang uteområder med nyere terrasse og pergola. På nedsiden finner du en skjermet terrasse med innfelt jacuzzi.
I 2. etasje er det baderom og tre soverom, hvor hovedsoverommet har balkong med flott utsikt mot Gandsfjorden.
Sokkeletasjen inneholder stue, bad og vaskerom (rom for varig opphold ikke byggemeldt).
Lettstelt uteområde med fine soner og dobbel garasje.
Trygge og rolige omgivelser i populære Aspervika. Omringet av fjord og fjell, kun 5 minutter fra sentrum.
NB: Knappen for å vise hele beskrivelsen har kun en visuell effekt.
NB: Knappen for å vise hele beskrivelsen har kun en visuell effekt.
Salgsoppgaven beskriver vesentlig og lovpålagt informasjon om eiendommen
Se komplett salgsoppgaveNyttige lenker
Nærområdet
Proaktiv Eiendomsmegling Sandnes
Alltid tid til deg
Annonseinformasjon
| FINN-kode | 454758158 |
|---|---|
| Sist endret | 10. mars 2026 11:29 |
| Referanse | 1200260039 |
Annonsene kan være mangelfulle i forhold til lovpålagt opplysningsplikt. Før bindende avtale inngås oppfordres interessenter til å innhente komplett informasjon fra meglerforetaket, selger eller utleier.















































