Bildegalleri

Kristin Kjeksli v/EIE Jessheim har gleden presentere Kongletoppen 45B! Fotografert av: Bjørn Sørheim v/EFKT
Nydelig familiebolig med attraktiv beliggenhet innerst på Skogmo! | Carport m/ elbillader og bod| Usjenert hage!
Prisantydning5 690 000 kr
Nøkkelinfo
- Boligtype
- Tomannsbolig
- Eieform
- Eier (Selveier)
- Soverom
- 3
- Internt bruksareal
- 85 m² (BRA-i)
- Bruksareal
- 97 m²
- Eksternt bruksareal
- 12 m² (BRA-e)
- Byggeår
- 2005
- Energimerking
- D - Gul
- Rom
- 4
- Tomteareal
- 874 m² (eiet)
Fasiliteter
Barnevennlig
Balkong/Terrasse
Garasje/P-plass
Offentlig vann/kloakk
Peis/Ildsted
Turterreng
Sentralt
Rolig
Lademulighet
Om boligen
EIE Jessheim v/ Kristin Kjeksli (45445872) har gleden av å presentere Kongletoppen 45B!
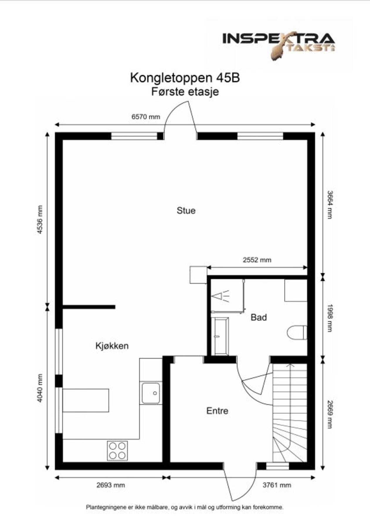
Kongletoppen 45B er en pen halvpart av tomannsbolig med god planløsning og nydelige uteplasser. Boligen strekker seg over to plan og har entrè, stue og kjøkken samt bad i 1. etasje. I 2. etasje er det trappegang, tre gode soverom og wc. Eiendommen ligger på en solrik og pent opparbeidet tomt med lune uteplasser, frodig beplantning og en skjermet hage som byr på både privatliv og gode rammer for lek, selskapelighet og late sommerdager.
Boligen fremstår lys, praktisk og moderne, med en god planløsning som passer perfekt for både barnefamilier og par i ulike livsfaser.
Her bor du i rolige omgivelser med kort vei til flotte tur- og rekreasjonsområder, samtidig som barnehage, skole, butikker og Jessheim sentrum ligger innen komfortabel rekkevidde. En sjeldent trivelig bolig med en beliggenhet som kombinerer det beste av natur, nærmiljø og bekvemmelighet.
Kongletoppen 45B er en pen halvpart av tomannsbolig med god planløsning og nydelige uteplasser. Boligen strekker seg over to plan og har entrè, stue og kjøkken samt bad i 1. etasje. I 2. etasje er det trappegang, tre gode soverom og wc. Eiendommen ligger på en solrik og pent opparbeidet tomt med lune uteplasser, frodig beplantning og en skjermet hage som byr på både privatliv og gode rammer for lek, selskapelighet og late sommerdager.
Boligen fremstår lys, praktisk og moderne, med en god planløsning som passer perfekt for både barnefamilier og par i ulike livsfaser.
Her bor du i rolige omgivelser med kort vei til flotte tur- og rekreasjonsområder, samtidig som barnehage, skole, butikker og Jessheim sentrum ligger innen komfortabel rekkevidde. En sjeldent trivelig bolig med en beliggenhet som kombinerer det beste av natur, nærmiljø og bekvemmelighet.
NB: Knappen for å vise hele beskrivelsen har kun en visuell effekt.
NB: Knappen for å vise hele beskrivelsen har kun en visuell effekt.
Salgsoppgaven beskriver vesentlig og lovpålagt informasjon om eiendommen
Se komplett salgsoppgaveNyttige lenker
Nærområdet
EIE eiendomsmegling Jessheim
Annonseinformasjon
| FINN-kode | 454757639 |
|---|---|
| Sist endret | 13. mars 2026 12:59 |
| Referanse | 20260051 |
Annonsene kan være mangelfulle i forhold til lovpålagt opplysningsplikt. Før bindende avtale inngås oppfordres interessenter til å innhente komplett informasjon fra meglerforetaket, selger eller utleier.




















































