Bildegalleri

Velkommen til Dynekilgata 15 - Presentert av Christer Sebbah ved EIE Løren. Foto: Borowiak AS (Chris Borowiak).
Rosenhoff
Lys og moderne 2-roms leilighet - Bad fra 2023 og kjøkken oppgradert i 2025 - Innglasset balkong på 10 kvm - Vv. inkl.
Prisantydning4 650 000 kr
Nøkkelinfo
- Boligtype
- Leilighet
- Eieform
- Andel
- Soverom
- 1
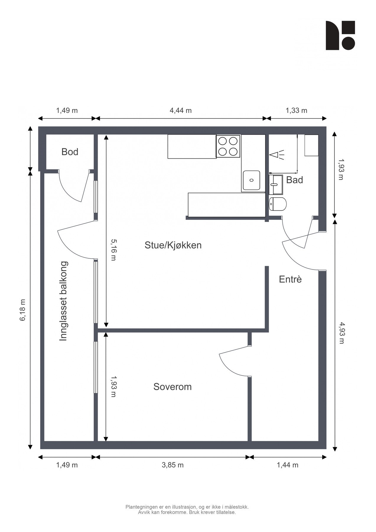
- Internt bruksareal
- 43 m² (BRA-i)
- Bruksareal
- 54 m²
- Eksternt bruksareal
- 1 m² (BRA-e)
- Innglasset balkong
- 10 m² (BRA-b)
- Etasje
- 4
- Byggeår
- 1967
- Energimerking
- D - Rød
- Rom
- 2
- Tomteareal
- 9 060 m²
Fasiliteter
Balkong/Terrasse
Heis
Offentlig vann/kloakk
Parkett
Turterreng
Vaktmester-/vektertjeneste
Fellesvaskeri
Sentralt
Bredbåndstilknytning
Moderne
Rolig
Visning
tirsdag, 24. mars
16:30 – 17:30
For å yte premium rådgivning, har alle våre visninger påmelding. Dette sikrer at megler har god oversikt og tid til å imøtekomme alle interessenter på aller beste måte. Dersom ingen interessenter er påmeldt, kan visningen bli avlyst.
Om boligen
Velkommen til Dynekilgata 15!
Dette er en attraktiv og moderne 2-roms leilighet som er gjennomgående pusset opp i senere tid. Boligen holder en god standard med tidsriktige materialvalg og en funksjonell planløsning som gir en god romfølelse. Leiligheten har en arealeffektiv planløsning som består av en innbydende entré, delvis åpen stue- og kjøkkenløsning, flislagt bad og et koselig soverom.
Leiligheten har en attraktiv beliggenhet på Rosenhoff i et sentralt, men rolig område. Det er kort vei til servicetilbud, kollektivtransport og flotte rekreasjonsområder.
Verdt å merke seg:
- Bad totalrenovert i 2023
- Kjøkkenet ble oppgradert i 2025 med nye fronter, ny benkeplate, ventilator, vask og armatur
- Innglasset balkong på 10 kvm med morgen- og formiddagssol
- Moderne fargevalg og pent 1-stavs parkettgulv
- Fint og luftig beliggende i 4.etasje med heisadkomst
- Varmtvann og internett inkl. i felleskostnadene
- Mulig parkeringsleie for 495kr/mnd (venteliste)*.
- Veldrevet borettslag
Dette er en attraktiv og moderne 2-roms leilighet som er gjennomgående pusset opp i senere tid. Boligen holder en god standard med tidsriktige materialvalg og en funksjonell planløsning som gir en god romfølelse. Leiligheten har en arealeffektiv planløsning som består av en innbydende entré, delvis åpen stue- og kjøkkenløsning, flislagt bad og et koselig soverom.
Leiligheten har en attraktiv beliggenhet på Rosenhoff i et sentralt, men rolig område. Det er kort vei til servicetilbud, kollektivtransport og flotte rekreasjonsområder.
Verdt å merke seg:
- Bad totalrenovert i 2023
- Kjøkkenet ble oppgradert i 2025 med nye fronter, ny benkeplate, ventilator, vask og armatur
- Innglasset balkong på 10 kvm med morgen- og formiddagssol
- Moderne fargevalg og pent 1-stavs parkettgulv
- Fint og luftig beliggende i 4.etasje med heisadkomst
- Varmtvann og internett inkl. i felleskostnadene
- Mulig parkeringsleie for 495kr/mnd (venteliste)*.
- Veldrevet borettslag
NB: Knappen for å vise hele beskrivelsen har kun en visuell effekt.
NB: Knappen for å vise hele beskrivelsen har kun en visuell effekt.
Salgsoppgaven beskriver vesentlig og lovpålagt informasjon om eiendommen
Se komplett salgsoppgaveNyttige lenker
Nærområdet
EIE eiendomsmegling Løren
Annonseinformasjon
| FINN-kode | 454751980 |
|---|---|
| Sist endret | 18. mars 2026 15:12 |
| Referanse | 71260052 |
Annonsene kan være mangelfulle i forhold til lovpålagt opplysningsplikt. Før bindende avtale inngås oppfordres interessenter til å innhente komplett informasjon fra meglerforetaket, selger eller utleier.




































