Bildegalleri

Ottestad
Enebolig med stor og solrik tomt, romslig uthus/garasje og barnevennlig beliggenhet.
Prisantydning4 100 000 kr
Nøkkelinfo
- Boligtype
- Enebolig
- Eieform
- Eier (Selveier)
- Soverom
- 4
- Internt bruksareal
- 169 m² (BRA-i)
- Bruksareal
- 249 m²
- Eksternt bruksareal
- 80 m² (BRA-e)
- Balkong/Terrasse
- 16 m² (TBA)
- Byggeår
- 1912
- Energimerking
- G - Rød
- Tomteareal
- 1 094 m² (eiet)
Fasiliteter
Balkong/Terrasse
Barnevennlig
Garasje/P-plass
Hage
Parkett
Peis/Ildsted
Visning
For å delta på visning, ber vi om at du melder deg på. Da sikrer vi at du får nødvendig informasjon og at det er satt av tilstrekkelig med tid. Husk å lese salgsoppgaven før visningen, så du stiller forberedt. Dersom det ikke er påmeldte innen klokka 12.00 på visningsdagen, vil ikke annonsert visning bli avholdt. Ønsker du kun å bli holdt orientert, kan du fra eiendommens hjemmeside få varsel om solgtpris, eller kontakte megler.
VisningspåmeldingOm boligen
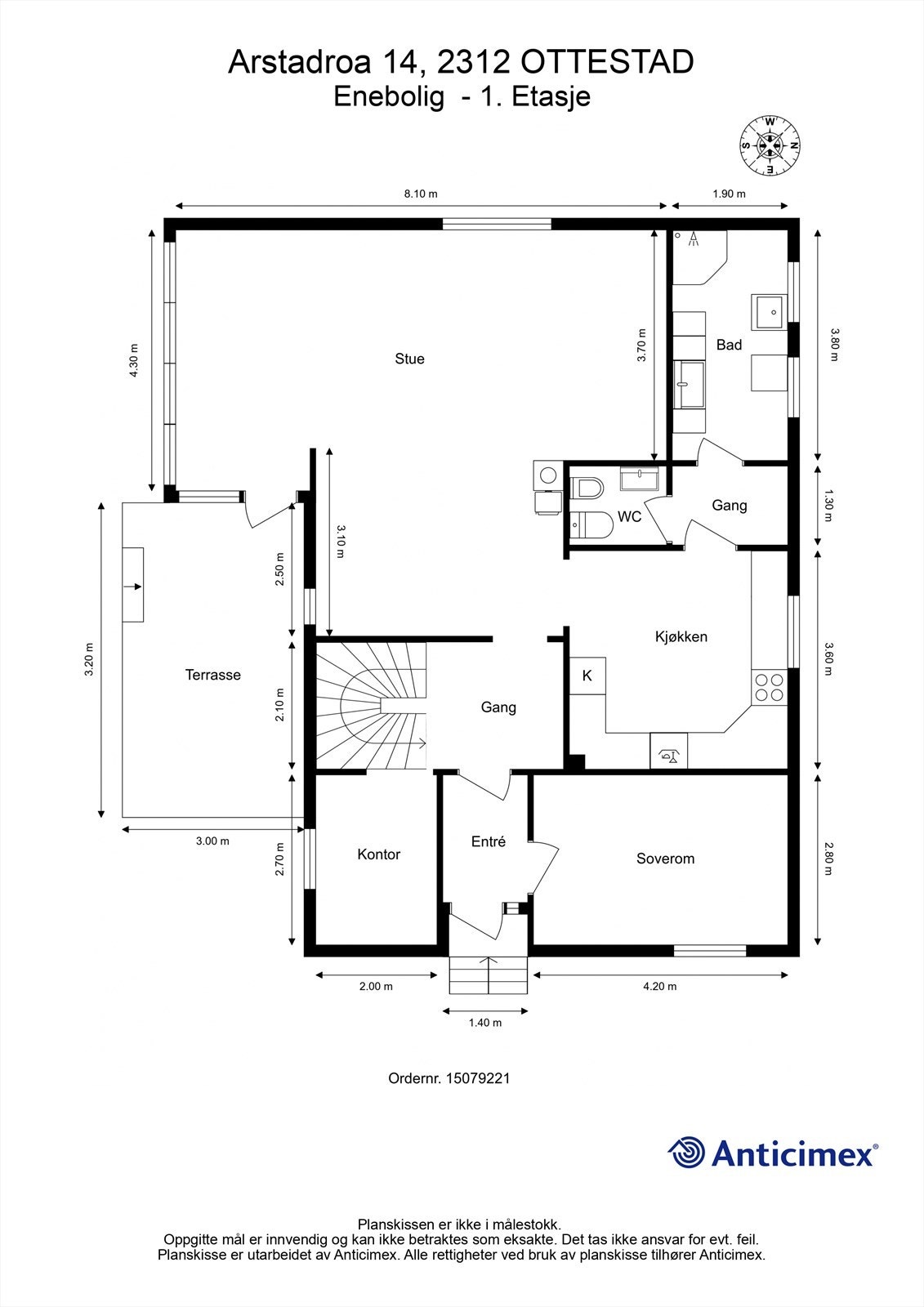
Arstadroa 14 er en enebolig med barnevennlig og flott beliggenhet i øvre Bekkelaget med nærhet til "alt". Enebolig som går over to plass, pluss grovkjeller, hvor 1. etasje inneholder bl.a. romslig stue med plass til flere møbleringssoner, stort og lyst kjøkken, bad med behov for renovering, toalettrom, kontor og soverom. I stuen er det varmepumpe som er montert i 2024. 2. etasje inneholder 3 soverom og 2 kott.
- Sentral beliggenhet i stille og rolig nabolag i øvre del av Bekkelaget i Ottestad
- Kort veg til både barne- og ungdomsskole, idrettshall og svømmehall
- Barnevennlig hage med gode solforhold
- Stort uthus med garasjeplass
- Kort veg til Hamar
- Rom med moderniseringsbehov
Velkommen til en hyggelig visning!
- Sentral beliggenhet i stille og rolig nabolag i øvre del av Bekkelaget i Ottestad
- Kort veg til både barne- og ungdomsskole, idrettshall og svømmehall
- Barnevennlig hage med gode solforhold
- Stort uthus med garasjeplass
- Kort veg til Hamar
- Rom med moderniseringsbehov
Velkommen til en hyggelig visning!
NB: Knappen for å vise hele beskrivelsen har kun en visuell effekt.
NB: Knappen for å vise hele beskrivelsen har kun en visuell effekt.
Salgsoppgaven beskriver vesentlig og lovpålagt informasjon om eiendommen
Se komplett salgsoppgaveNyttige lenker
Nærområdet
Krogsveen Hamar
Verdien av en god megler.
Annonseinformasjon
| FINN-kode | 454729984 |
|---|---|
| Sist endret | 17. mars 2026 12:43 |
| Referanse | KR65.24190 |
Annonsene kan være mangelfulle i forhold til lovpålagt opplysningsplikt. Før bindende avtale inngås oppfordres interessenter til å innhente komplett informasjon fra meglerforetaket, selger eller utleier.


































