Bildegalleri

EiendomsMegler 1 ved Markus Tangvik har gleden av å presentere en nydelig 2-roms leilighet i Falkenborgvegen 17. Bildet er virtuelt møblert.
Strindheim
LEKKER 2-ROMS LEILIGHET FRA 2012 I 4.ETG MED FIN UTSIKT. Parkering i kjeller. Fransk balkong. Felles takterrasse. Heis.
Prisantydning3 790 000 kr
Nøkkelinfo
- Boligtype
- Leilighet
- Eieform
- Eier (Selveier)
- Soverom
- 1
- Internt bruksareal
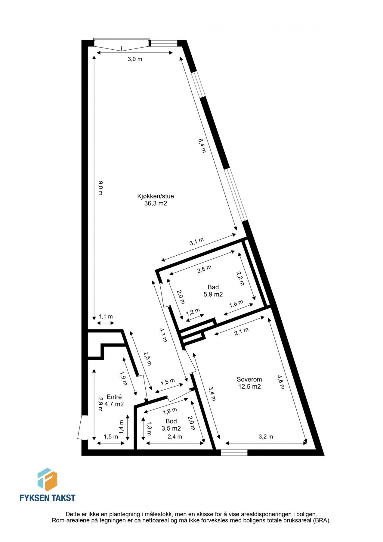
- 65 m² (BRA-i)
- Bruksareal
- 70 m²
- Eksternt bruksareal
- 5 m² (BRA-e)
- Etasje
- 4
- Byggeår
- 2012
- Energimerking
- B - Mørkegrønn
- Rom
- 2
- Tomt
- Eiet
Fasiliteter
Barnevennlig
Balkong/Terrasse
Garasje/P-plass
Kabel-TV
Heis
Offentlig vann/kloakk
Parkett
Turterreng
Utsikt
Vaktmester-/vektertjeneste
Sentralt
Bredbåndstilknytning
Moderne
Rolig
Lademulighet
Balansert ventilasjon
Om boligen
EiendomsMegler 1 ved Markus Tangvik har gleden av å presentere en moderne 2-roms leilighet i Falkenborgvegen 17, på taket av Sirkus Shopping.
Leiligheten har en attraktiv beliggenhet i byggets 4.etasje med gode lysforhold, fransk balkong og en praktisk planløsning som passer godt både for førstegangskjøpere, par og enslige. Boligen fremstår med gjennomgående lyse flater, store vindusflater og en åpen stue- og kjøkkenløsning som gir en luftig og trivelig romfølelse. Sameiet byr på pent opparbeidede fellesarealer og et moderne bomiljø med nærhet til servicefasiliteter, kollektivtransport og byens tilbud.
Kvaliteter ved boligen:
- Nydelig 2-roms leilighet i 4.etg med byggeår fra 2012.
- Fransk balkong med utsikt og fine soloforhold.
- Egen parkeringsplass i kjeller.
- Pent kjøkken med integrerte hvitevarer
- Stort baderom med opplegg for vaskemaskin.
- Fjernvarme, kabel-TV og internett ink. i felleskost.
- Bod i leiligheten og i kjeller.
- Heis.
Velkommen!
Leiligheten har en attraktiv beliggenhet i byggets 4.etasje med gode lysforhold, fransk balkong og en praktisk planløsning som passer godt både for førstegangskjøpere, par og enslige. Boligen fremstår med gjennomgående lyse flater, store vindusflater og en åpen stue- og kjøkkenløsning som gir en luftig og trivelig romfølelse. Sameiet byr på pent opparbeidede fellesarealer og et moderne bomiljø med nærhet til servicefasiliteter, kollektivtransport og byens tilbud.
Kvaliteter ved boligen:
- Nydelig 2-roms leilighet i 4.etg med byggeår fra 2012.
- Fransk balkong med utsikt og fine soloforhold.
- Egen parkeringsplass i kjeller.
- Pent kjøkken med integrerte hvitevarer
- Stort baderom med opplegg for vaskemaskin.
- Fjernvarme, kabel-TV og internett ink. i felleskost.
- Bod i leiligheten og i kjeller.
- Heis.
Velkommen!
NB: Knappen for å vise hele beskrivelsen har kun en visuell effekt.
NB: Knappen for å vise hele beskrivelsen har kun en visuell effekt.
Salgsoppgaven beskriver vesentlig og lovpålagt informasjon om eiendommen
Se komplett salgsoppgaveNærområdet
EiendomsMegler 1 Trondheim sentrum, Kongens gate
Vi loser deg trygt gjennom hele boligsalget
Annonseinformasjon
| FINN-kode | 454676345 |
|---|---|
| Sist endret | 19. mars 2026 05:02 |
| Referanse | 32260012 |
Annonsene kan være mangelfulle i forhold til lovpålagt opplysningsplikt. Før bindende avtale inngås oppfordres interessenter til å innhente komplett informasjon fra meglerforetaket, selger eller utleier.





























