Bildegalleri

EiendomsMegler1 v/Sjur Svihus presenterer dette meget innholdsrike og utbygde selveier rekkehuset. Stor, solrik terrasse med nedgang til hagen.
Åsen/Auglend
BUD på 4 mnok til 19/3 kl 12. Meget innholdsrikt, praktisk og utbygget selveier rekkehus over fire etasjer. 3 soverom.
Prisantydning3 750 000 kr
Nøkkelinfo
- Boligtype
- Rekkehus
- Eieform
- Eier (Selveier)
- Soverom
- 3
- Internt bruksareal
- 126 m² (BRA-i)
- Bruksareal
- 126 m²
- Balkong/Terrasse
- 28 m² (TBA)
- Byggeår
- 1958
- Energimerking
- Rom
- 6
- Tomteareal
- 97 m² (eiet)
Fasiliteter
Takterrasse
Balkong/Terrasse
Barnevennlig
Hage
Kjæledyr tillatt
Parkett
Peis/Ildsted
Sentralt
Balansert ventilasjon
Visning
onsdag, 18. mars
16:00 – 17:00
Ønsker du å delta på visningen ber vi deg melde deg på slik at vi vet at du kommer. Da kan vi bistå alle best mulig og gi deg tiden du trenger på visningen. Kontakt gjerne megler før visning hvis du har spørsmål. Visningen avholdes bare dersom det er påmeldte.
For visning utover de annonserte visningene, ta kontakt med selger, på sms 416 77 146.
VisningspåmeldingOm boligen
Velkommen til Kon-Tiki-Svingen 29.
En meget innholdsrik og praktisk familiebolig.
Utbygget hovedetasje med utgang til solrik terrasse og hage.
Vinduene samt kledning ble skiftet i 2005. Nytt vindu på kjøkken og bad i 2025.
Ventilasjonsanlegg fra 2005.
Ny kledning og ny dekke på takterrasse 2024.
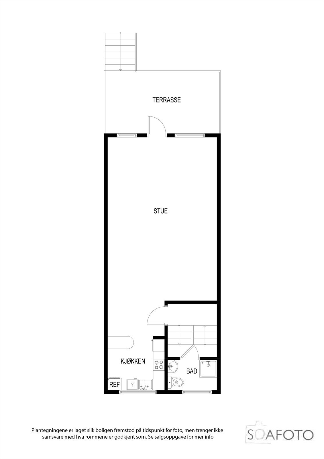
1 etasje:
Entré, kjøkken med hvitevarer og delvis åpen løsning. Stor påbygget stue med peis og utbygget terrasse og hage.
2 etasje:
Gang, bad og 3 soverom. Utgang til solrik altan/takterrasse
3. etasje:
Diverse loftsrom.
Kjeller:
Trapperom, gang, vaskerom, kott/bod og kjellerstue (ikke byggemeldt)
Beliggende i veletablerte omgivelser nær skoler, barnehager, turområder, off. kommunikasjon mm.
Ledig for overtagelse.
En meget innholdsrik og praktisk familiebolig.
Utbygget hovedetasje med utgang til solrik terrasse og hage.
Vinduene samt kledning ble skiftet i 2005. Nytt vindu på kjøkken og bad i 2025.
Ventilasjonsanlegg fra 2005.
Ny kledning og ny dekke på takterrasse 2024.
1 etasje:
Entré, kjøkken med hvitevarer og delvis åpen løsning. Stor påbygget stue med peis og utbygget terrasse og hage.
2 etasje:
Gang, bad og 3 soverom. Utgang til solrik altan/takterrasse
3. etasje:
Diverse loftsrom.
Kjeller:
Trapperom, gang, vaskerom, kott/bod og kjellerstue (ikke byggemeldt)
Beliggende i veletablerte omgivelser nær skoler, barnehager, turområder, off. kommunikasjon mm.
Ledig for overtagelse.
NB: Knappen for å vise hele beskrivelsen har kun en visuell effekt.
NB: Knappen for å vise hele beskrivelsen har kun en visuell effekt.
Salgsoppgaven beskriver vesentlig og lovpålagt informasjon om eiendommen
Se komplett salgsoppgaveNyttige lenker
Nærområdet
EiendomsMegler 1 Stavanger
En del av Sparebank 1 Sør-Norge
Annonseinformasjon
| FINN-kode | 454658686 |
|---|---|
| Sist endret | 14. mars 2026 12:49 |
| Referanse | 2211250104 |
Annonsene kan være mangelfulle i forhold til lovpålagt opplysningsplikt. Før bindende avtale inngås oppfordres interessenter til å innhente komplett informasjon fra meglerforetaket, selger eller utleier.










































