Bildegalleri

Velkommen til en innholdsrik enebolig på stor tomt, med dobbeltgarasje og flott utsikt.
Gullhaug
Innholdsrik og pen enebolig. Flott beliggenhet. Kjøkken 2019. Bad, kledning, tak, vinduer i 2021. Dobbelgarasje. Utsikt
Prisantydning5 250 000 kr
Nøkkelinfo
- Boligtype
- Enebolig
- Eieform
- Eier (Selveier)
- Soverom
- 2
- Internt bruksareal
- 246 m² (BRA-i)
- Bruksareal
- 246 m²
- Balkong/Terrasse
- 30 m² (TBA)
- Byggeår
- 1979
- Energimerking
- Rom
- 3
- Tomteareal
- 1 476 m² (eiet)
Fasiliteter
Balkong/Terrasse
Barnevennlig
Garasje/P-plass
Hage
Offentlig vann/kloakk
Parkett
Peis/Ildsted
Rolig
Sentralt
Utsikt
Turterreng
Visning
onsdag, 18. mars
17:00 – 17:45
For at vår megler og selger skal kunne gi deg den beste oppfølgingen og kjøpsopplevelsen er det obligatorisk påmelding til alle våre visninger. Dersom ditt reserverte tidspunkt likevel ikke kan benyttes trenger vi beskjed så tidlig som mulig sånn at vi kan finne en alternativ løsning. Vi har alltid tid til deg. Visninger uten påmeldte deltagere avlyses.
VisningspåmeldingOm boligen
Dette er en innholdsrik og flott enebolig som ligger i et populært nabolag på solsiden av Gullhaug. Her får du fine fasiliteter for familier med stor eiet tomt, god plass, flott utsikt, samt kort vei til marka og nødvendige fasiliteter. Kun 10 minutters kjøretur til Holmestrand sentrum og togstasjonen.
Boligen er velholdt og vesentlig oppgradert de siste årene, med bla. nytt kjøkken i 2019. Nytt bad og alle vinduer og dører i 2021.
Kledningen ble også byttet og etterisolert og inner- og yttertak ble byttet. Vaskerom oppgradert i 2025.
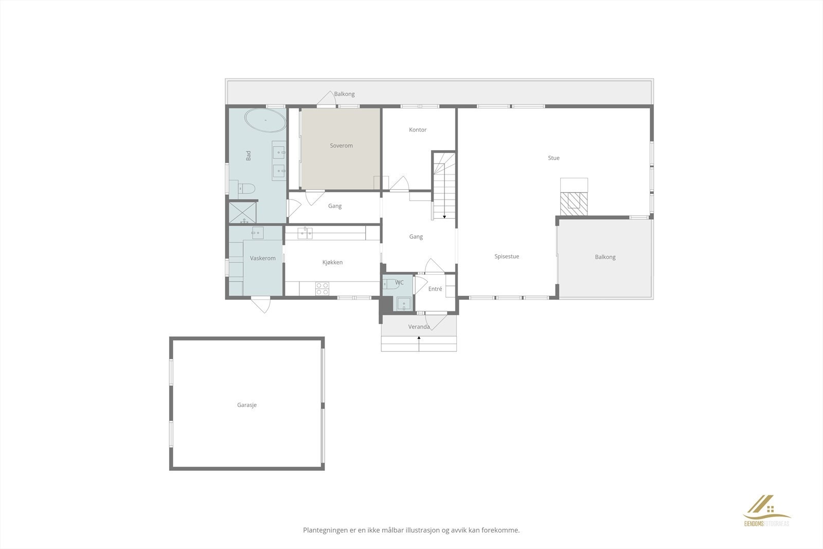
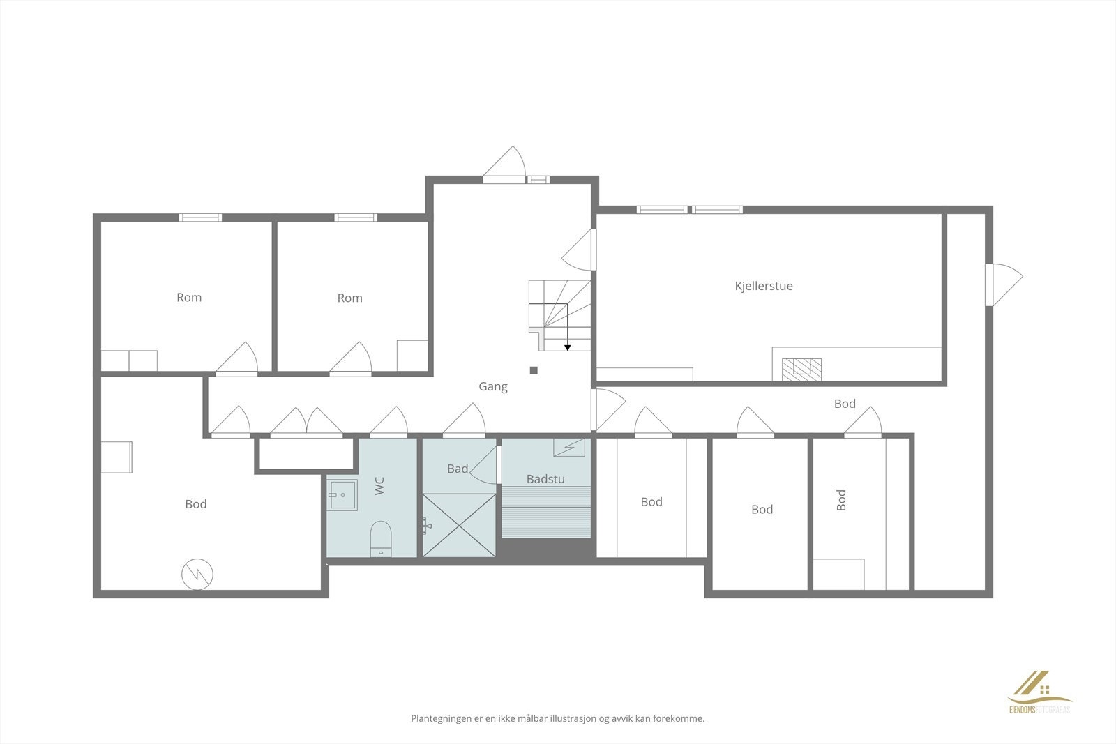
Boligen er fordelt på to flater og består av entré/gang, wc, stue/spisestue med peis, flott kjøkken m/nytt vaskerom, lekkert bad, og 2 soverom i 1.etg. U.etg med 3 innredede rom (ett benyttet som stue), bad/badstue/wc, 5 boder. Terrasse med flott utsikt.
Boligen er velholdt og vesentlig oppgradert de siste årene, med bla. nytt kjøkken i 2019. Nytt bad og alle vinduer og dører i 2021.
Kledningen ble også byttet og etterisolert og inner- og yttertak ble byttet. Vaskerom oppgradert i 2025.
Boligen er fordelt på to flater og består av entré/gang, wc, stue/spisestue med peis, flott kjøkken m/nytt vaskerom, lekkert bad, og 2 soverom i 1.etg. U.etg med 3 innredede rom (ett benyttet som stue), bad/badstue/wc, 5 boder. Terrasse med flott utsikt.
NB: Knappen for å vise hele beskrivelsen har kun en visuell effekt.
NB: Knappen for å vise hele beskrivelsen har kun en visuell effekt.
Salgsoppgaven beskriver vesentlig og lovpålagt informasjon om eiendommen
Se komplett salgsoppgaveNyttige lenker
Nærområdet
Proaktiv Eiendomsmegling Drammen, Lier & Holmestrand
Alltid tid til deg
Annonseinformasjon
| FINN-kode | 454630662 |
|---|---|
| Sist endret | 10. mars 2026 15:05 |
| Referanse | 1600260057 |
Annonsene kan være mangelfulle i forhold til lovpålagt opplysningsplikt. Før bindende avtale inngås oppfordres interessenter til å innhente komplett informasjon fra meglerforetaket, selger eller utleier.






























































